Prodej rodinného domu, Vyškov - Nosálovice, Karla Čapka, 150 m2 (ID: 4076419)

Karla Čapka, Vyškov, Nosálovice

Prémioví partneři v Vyškově

Informace k domu

Prodej rodinného domu 5+1 Vyškov

Ve výhradním zastoupení nabízíme k prodeji rodinný dům o velikosti 5+1 s dvojgaráží a zahradou na ulici Karla Čapka ve městě Vyškov.

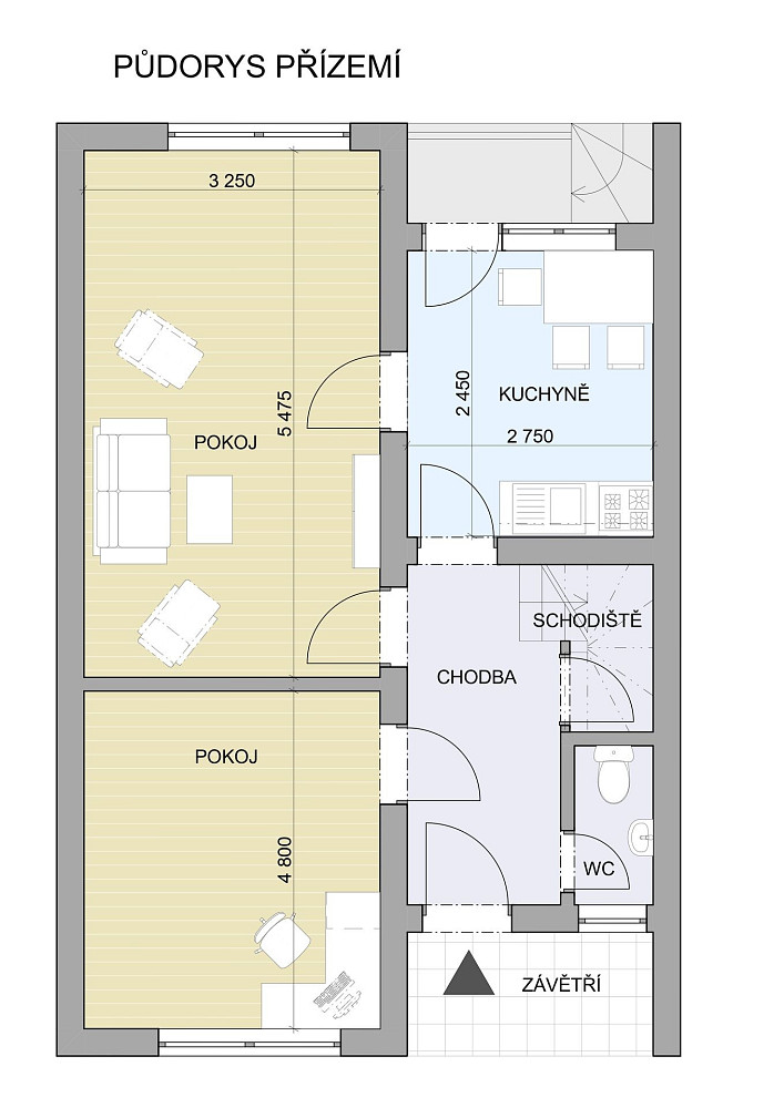
V přízemí jsou k dispozici dva pokoje, kuchyně a WC. Z kuchyně se vchází balkonovými dveřmi na přilehlý dvůr a zahradu. Jedna z přízemních místností byla upravená na bezbariérové bydlení se sprchovým koutem. V prvním patře domu se nachází tři pokoje a koupelna s vanou.
Dům je podsklepený.

V zahradě byla vystavěna prostorná dvojgaráž, před kterou pohodlně zaparkujete další dvě auta.

Nemovitost, kterou Vám nabízíme, se nachází v klidné a žádané lokalitě. V dosahu je veškerá občanská vybavenost ( základní škola, mateřská škola, nemocnice, hypermarkety, vlakové i autobusové nádraží, restaurace aj. ) Vzdálenost od centra cca 1 km.
Velkou výhodou je dobrá dostupnost dálnice D1 a D46 kdy cesta do Brna i Olomouce trvá cca 30minut.

Pomůžeme zajistit financování, doporučujeme prohlídku.

Parametry domu

Cena
6 200 000 Kč Spočítat hypotéku
Aktualizováno
16. 10. 2025
Adresa
Karla Čapka, Vyškov, Nosálovice
ID
N00017
Stavba
Cihlová
Stav objektu
Dobrý
Druh objektu
Rohový
Vlastnictví
Osobní
Užitná plocha
150 m2
Zastavěná plocha
110 m2
Plocha pozemku
358 m2
Třída energetické náročnosti
G - Mimořádně nehospodárná

Kontaktovat makléře

Realitní kancelář

Petra Robová

Na Hraničkách 567/52, Vyškov

Chystáte se prodat nemovitost?
Pomůžeme Vám!

Máte zájem o tento dům?

Tímto, v souladu s nařízením Evropského parlamentu a Rady (EU) 2016/679, v platném znění, prohlašuji, že mi je alespoň 16 let a uděluji tak svůj souhlas se zpracováním zadaných údajů (jméno, telefon, e-mail, ip adresa) společnosti B3 Technology, s.r.o., IČ: 07330600, se sídlem Novostavby 126/23, 435 11 Lom (správce dat), za účelem předání dotazu z tohoto formuláře Vámi vybranému inzerentovi a zpětného kontaktování mé osoby. Osobní údaje bude správce zpracovávat manuálně i automaticky přímo prostřednictvím svých zaměstnanců. Informace předané tímto formulářem budou uloženy v databázi správce maximálně po dobu 10 let. Odvolání souhlasu s uložením a zpracováním poskytnutých dat lze e-mailem na info@videobydleni.cz. V případě podezření na neoprávněné použití Vámi poskytnutých údajů máte právo předat podnět k šetření Úřadu pro ochranu osobních údajů. Více informací
Chystáte se prodat nemovitost?
Pomůžeme Vám!

Inzerát si prohlédlo 2 lidí

Prodejce

Petra Robová

Petra Robová

Hlídací pes

Chcete dostávat emailem podobné nabídky prodeje rodinných domů v Vyškově?

Podobné nemovitosti


Nevyhovuje Vám typ domu? Podívejte se na jiné kategorie domů.


Vybrané články z našeho blogu