Pronájem bytu 1+kk, Praha - Strašnice, V Rybníčkách, 17 m2

V Rybníčkách, Praha 10 - Strašnice

10 000 Kč /za měsíc Získejte výhodnou HYPOTÉKU

(za měsíc)

Prémioví partneři v Praze 10

Stěhovací služby

Výkup a prodej starého nábytku

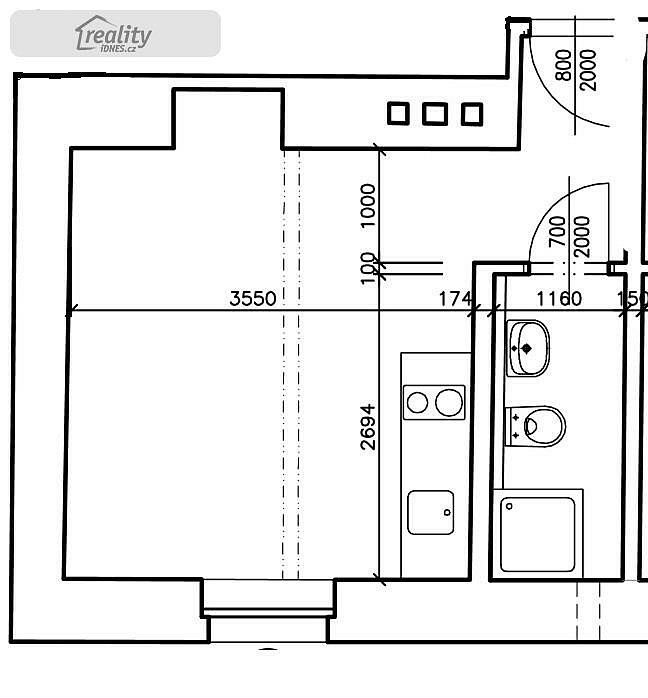
Informace k bytu

Pronájem bytu 1+kk 17 m² (Jednopodlažní)

Nabízíme pronájem bytu 1+kk/ 17 m² v domě s nájemními byty a vlastním pozemkem/zahradou v Praze 10 Strašnicích. Všechny byty a společné prostory jsou po nedávné kompletní rekonstrukci. Klidná lokalita, parkování na ulici, v docházkové vzdálenosti metro A Strašnická a Skalka, vlak, autobus a tramvaj. V bytě je kuchyňská linka včetně lednice, el. trouby a varné desky, koupelna se sprchovým koutem a WC . Byt se nachází ve sníženém přízemí. K dispozici komunální pračka a sušička za poplatek v domě V celém domě je možné internetové připojení.
Měsíční nájemné 10 000,-Kč, kompletní poplatky cca 4 000,-Kč, vratná kauce 14 000,-Kč, provize RK
Realitní společnost nemá k dispozici energetický štítek, proto je prozatím uváděna PENB třídy: G

Parametry bytu

Cena
10 000 Kč /za měsíc
Poznámka k ceně
za měsíc
Aktualizováno
16. 10. 2025
Adresa
V Rybníčkách, Praha 10 - Strašnice
ID
2835137356
Stavba
Cihlová
Stav objektu
Dobrý
Vlastnictví
Osobní
Užitná plocha
17 m2
Třída energetické náročnosti
G - Mimořádně nehospodárná

Kontaktovat makléře

Realitní kancelář

Eva Kudějová

Kubelíkova 827/55, Praha 3

Chystáte se prodat nemovitost?
Pomůžeme Vám!

Máte zájem o tento byt?

Tímto, v souladu s nařízením Evropského parlamentu a Rady (EU) 2016/679, v platném znění, prohlašuji, že mi je alespoň 16 let a uděluji tak svůj souhlas se zpracováním zadaných údajů (jméno, telefon, e-mail, ip adresa) společnosti B3 Technology, s.r.o., IČ: 07330600, se sídlem Novostavby 126/23, 435 11 Lom (správce dat), za účelem předání dotazu z tohoto formuláře Vámi vybranému inzerentovi a zpětného kontaktování mé osoby. Osobní údaje bude správce zpracovávat manuálně i automaticky přímo prostřednictvím svých zaměstnanců. Informace předané tímto formulářem budou uloženy v databázi správce maximálně po dobu 10 let. Odvolání souhlasu s uložením a zpracováním poskytnutých dat lze e-mailem na info@videobydleni.cz. V případě podezření na neoprávněné použití Vámi poskytnutých údajů máte právo předat podnět k šetření Úřadu pro ochranu osobních údajů. Více informací
Chystáte se prodat nemovitost?
Pomůžeme Vám!

Inzerát si prohlédlo 5 lidí

Prodejce

Eva Kudějová

Eva Kudějová

Hlídací pes

Chcete dostávat emailem podobné nabídky pronájmu bytů 1+kk v Praze 10?

Podobné nemovitosti


Nevyhovuje Vám typ bytu? Podívejte se na jiné kategorie bytů.


Vybrané články z našeho blogu