Prodej domu na klíč, Průhonice, 105 m2

Průhonice

3 395 700 Kč /za nemovitost HYPOTÉKA od 15 177 Kč /za měsíc

(Ceny domů na klíč se odvíjí podle typu domu, více informací a katalog a ceník domů u makléře)

Prémioví partneři v Průhonicích

Informace k domu

Domov přesně podle vašich představ

Váš sen o moderním a kvalitním bydlení se může stát skutečností.
Ve spolupráci se stavební společností R-DOMY s.r.o. realizujeme rodinné domy na klíč – rychle, precizně a s důrazem na detail.

R-DOMY s.r.o. patří mezi ověřené stavební firmy, které se zaměřují na výstavbu dřevostaveb i zděných domů po celé České republice. Každý projekt je výsledkem poctivé práce, promyšleného návrhu a použití kvalitních, ekologických materiálů.
Naším cílem je, abyste se do nového domova mohli s radostí nastěhovat a už od prvního dne si užívali jeho pohodlí – ať už toužíte po bungalovu, patrovém domě nebo menším rodinném sídle v přírodě.

Stavíme domy na míru

Máte konkrétní představu o svém vysněném domě?
Nakreslili jste si vlastní půdorys nebo chcete upravit typový projekt?
S námi máte volnou ruku.

V nabídce najdete více než 15 typových domů, které lze přizpůsobit podle vašich přání, nebo vám připravíme zcela individuální projekt. Každý dům přizpůsobíme vašemu pozemku, rozpočtu i životnímu stylu.
Dbáme na praktické dispozice, nadčasový design a kvalitní zpracování, které obstojí i po letech.

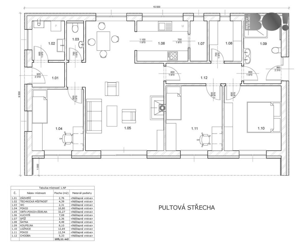
Ukázka z nabídky – bungalov RD 147

Elegantní bungalov RD 147 nabízí komfortní a úsporné bydlení v harmonii s přírodou.
Dispozice 4+kk a užitná plocha 105,11 m² zaručí dostatek prostoru pro celou rodinu. Interiér je světlý, vzdušný a energeticky nenáročný.

Technické údaje:

Dispozice: 4+kk

Užitná plocha: 105,11 m²

Typ střechy: pultová nebo sedlová (sklon 5°)

Dům je možné upravit dle přání klienta. Na přání dodáme kompletní kuchyňskou linku zdarma a můžeme doplnit i vestavěný nábytek.

Cena RD 147:

Hrubá stavba: 3 395 700 Kč

Dřevostavba - R domy Standard: 6 282 000 Kč

Zděný dům na klíč: 7 117 900 Kč

Ceny jsou uvedeny s DPH.

Co zahrnuje standard R-DOMY s.r.o.:

základová deska v ceně,

konstrukce z KVH hranolů nebo zděné zdivo dle volby klienta,

zateplení 15 cm EPS, fasáda s tenkovrstvou omítkou,

plastová okna s trojsklem,

podlahové topení (vodní nebo elektrické),

kompletní rozvody vody, odpadu a elektřiny,

koupelna s obklady Rako a sanitou Metalia Piano,

interiérové dveře Solodoor,

malby Primalex Plus,

kuchyňská linka ZDARMA,

možnost klientských úprav a nadstandardního vybavení,

Nemáte zatím pozemek?

Nevadí. Pomůžeme vám i s výběrem vhodného stavebního pozemku v lokalitě, která splní vaše požadavky.
Díky spolupráci s realitními partnery máme přístup k široké nabídce pozemků po celé ČR.

Kompletní servis od A do Z

Zajistíme projektovou dokumentaci, stavební povolení, zemní práce i financování.
Díky našim zkušenostem ušetříte čas, starosti i peníze.
Od první konzultace až po předání klíčů se o vše postaráme za vás.

Zaujala vás nabídka?

Kontaktujte nás a domluvte si nezávaznou konzultaci.
R-DOMY s.r.o. – spolehlivý partner na cestě k vašemu novému domovu.

Parametry domu

Cena
3 395 700 Kč /za nemovitost Spočítat hypotéku
Poznámka k ceně
Ceny domů na klíč se odvíjí podle typu domu, více informací a katalog a ceník domů u makléře
Aktualizováno
16. 10. 2025
Adresa
Průhonice
ID
7454
Stavba
Cihlová
Stav objektu
Novostavba
Vybaveno
Částečně
Typ objektu
Přízemní
Druh objektu
Samostatný
Užitná plocha
105 m2
Plocha pozemku
1 m2
Třída energetické náročnosti
B - Velmi úsporná
Převod do OV

Kontaktovat makléře

Máte zájem o tento dům?

Tímto, v souladu s nařízením Evropského parlamentu a Rady (EU) 2016/679, v platném znění, prohlašuji, že mi je alespoň 16 let a uděluji tak svůj souhlas se zpracováním zadaných údajů (jméno, telefon, e-mail, ip adresa) společnosti B3 Technology, s.r.o., IČ: 07330600, se sídlem Novostavby 126/23, 435 11 Lom (správce dat), za účelem předání dotazu z tohoto formuláře Vámi vybranému inzerentovi a zpětného kontaktování mé osoby. Osobní údaje bude správce zpracovávat manuálně i automaticky přímo prostřednictvím svých zaměstnanců. Informace předané tímto formulářem budou uloženy v databázi správce maximálně po dobu 10 let. Odvolání souhlasu s uložením a zpracováním poskytnutých dat lze e-mailem na info@videobydleni.cz. V případě podezření na neoprávněné použití Vámi poskytnutých údajů máte právo předat podnět k šetření Úřadu pro ochranu osobních údajů. Více informací
Chystáte se prodat nemovitost?
Pomůžeme Vám!

Inzerát si prohlédlo 0 lidí

Prodejce

Bc. Ivona Novák Zdráhalová

Bc. Ivona Novák Zdráhalová

Hlídací pes

Chcete dostávat emailem podobné nabídky prodeje domů na klíč v Průhonicích?


Nevyhovuje Vám typ domu? Podívejte se na jiné kategorie domů.


Vybrané články z našeho blogu