Prodej rodinného domu, Roudnice nad Labem, Havlíčkova, 103 m2 (ID: 4077116)

Havlíčkova, Roudnice nad Labem

4 500 000 Kč /za nemovitost HYPOTÉKA od 20 112 Kč /za měsíc

(Provize RK 135.000 Kč + DPH)

Prémioví partneři v Roudnici nad Labem

Okna a dveře

Rekonstrukce

Zámečnické práce

Informace k domu

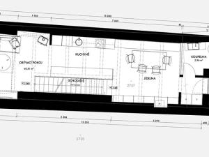
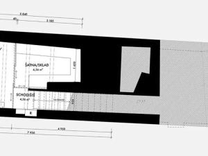
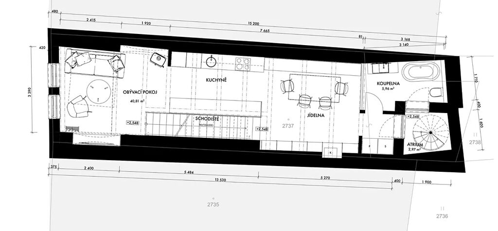
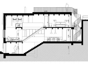
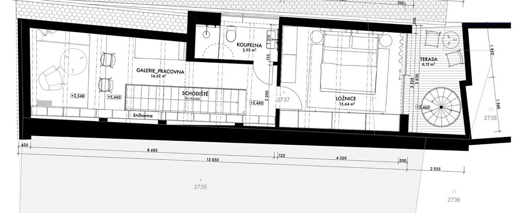
Nabízíme k prodeji rodinný dům v klidné lokalitě Roudnice nad Labem. Tento kamenný patrový dům v atypickém provedení je ideální příležitostí pro ty, kteří si chtějí přetvořit nemovitost podle svých představ. Objekt se nachází na menším pozemku o celkové ploše 107 m2. S plánovanou užitnou plochou dle studie 103 m2 + 6 m2 terasa + horní zahrada cca 40 m2, nabízí dostatek prostoru pro kreativní úpravy a rozšíření obytného prostoru.

Dům je v současné době před rekonstrukcí, což vám umožňuje poskytnout mu nový vzhled a funkcionalitu zcela podle vašich představ a potřeb. Díky své kamenné konstrukci skýtá možnost kombinace tradičních materiálů s moderním designem. Roudnice nad Labem, kde se nemovitost nachází, poskytuje veškerou potřebnou občanskou vybavenost, dobrou dostupnost a příjemné prostředí pro klidný rodinný život.

Prohlídky jsou možné po předchozí domluvě. Pro více informací o této nemovitosti nebo sjednání prohlídky nás prosím kontaktujte nebo vyplňte níže uvedený formulář, rádi Vám pomůžeme.

Parametry domu

Cena
4 500 000 Kč /za nemovitost Spočítat hypotéku
Poznámka k ceně
Provize RK 135.000 Kč + DPH
Aktualizováno
16. 10. 2025
Adresa
Havlíčkova, Roudnice nad Labem
Stavba
Kamenná
Stav objektu
Před rekonstrukcí
Užitná plocha
103 m2
Plocha pozemku
107 m2

Kontaktovat makléře

Máte zájem o tento dům?

Tímto, v souladu s nařízením Evropského parlamentu a Rady (EU) 2016/679, v platném znění, prohlašuji, že mi je alespoň 16 let a uděluji tak svůj souhlas se zpracováním zadaných údajů (jméno, telefon, e-mail, ip adresa) společnosti B3 Technology, s.r.o., IČ: 07330600, se sídlem Novostavby 126/23, 435 11 Lom (správce dat), za účelem předání dotazu z tohoto formuláře Vámi vybranému inzerentovi a zpětného kontaktování mé osoby. Osobní údaje bude správce zpracovávat manuálně i automaticky přímo prostřednictvím svých zaměstnanců. Informace předané tímto formulářem budou uloženy v databázi správce maximálně po dobu 10 let. Odvolání souhlasu s uložením a zpracováním poskytnutých dat lze e-mailem na info@videobydleni.cz. V případě podezření na neoprávněné použití Vámi poskytnutých údajů máte právo předat podnět k šetření Úřadu pro ochranu osobních údajů. Více informací
Chystáte se prodat nemovitost?
Pomůžeme Vám!

Inzerát si prohlédlo 0 lidí

Prodejce

Kancelář

Kancelář

Hlídací pes

Chcete dostávat emailem podobné nabídky prodeje rodinných domů v Roudnici nad Labem?

Podobné nemovitosti


Nevyhovuje Vám typ domu? Podívejte se na jiné kategorie domů.


Vybrané články z našeho blogu