Prodej chalupy, Kovářská, Mlýnská, 96 m2

Mlýnská, Kovářská

5 780 000 Kč /za nemovitost HYPOTÉKA od 25 833 Kč /za měsíc

(Cena včetně právního servisu a provize RK. V případě více zájemců může RK využít pro výběr kupujícího formu aukce.)

Prémioví partneři v Kovářské

Okna a dveře

Rekonstrukce

Zámečnické práce

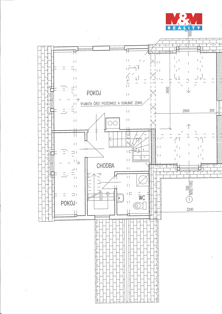
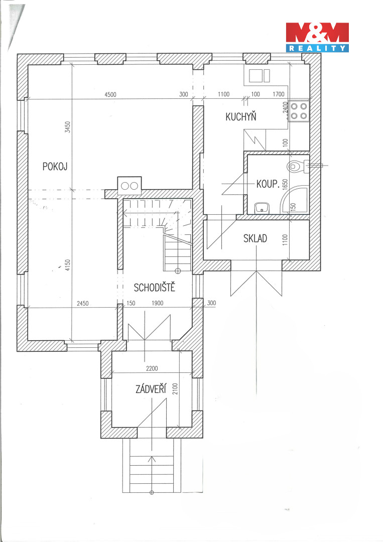
Informace k domu

Prodej chalupy, 96 m², Kovářská, ul. Mlýnská

Nabízíme k prodeji útulnou chalupu v klidné části obce Kovářská. Tato samostatně stojící nemovitost je ideální volbou pro ty, kteří hledají klidné útočiště mimo městský ruch. Chalupa je smíšené konstrukce a nabízí dvě nadzemní podlaží s celkovou užitnou plochou 96 m². Dispozice zahrnuje čtyři prostorné místnosti, které poskytují dostatek místa pro rodinné chvíle i soukromí. Pozemek mírně svahovitý a svou výměrou činí 271 m² je ideální pro zahradní aktivity nebo relaxaci na čerstvém vzduchu. Stav nemovitosti je dobrý, což umožňuje okamžité užívání nebo drobné úpravy podle vašich představ. Chalupa se nachází v atraktivní lokalitě s krásnou okolní přírodou, vhodnou pro turistiku a rekreaci. Nezmeškejte tuto jedinečnou příležitost a domluvte si prohlídku ještě dnes!

Parametry domu

Cena
5 780 000 Kč /za nemovitost Spočítat hypotéku
Poznámka k ceně
Cena včetně právního servisu a provize RK. V případě více zájemců může RK využít pro výběr kupujícího formu aukce.
Aktualizováno
3. 12. 2025
Adresa
Mlýnská, Kovářská
ID
923414
Stavba
Smíšená
Stav objektu
Dobrý
Vybaveno
Ano
Druh objektu
Samostatný
Lokalita objektu
Klidná část obce
Vlastnictví
Osobní
Užitná plocha
96 m2
Plocha pozemku
271 m2

Kontaktovat makléře

Realitní kancelář

Logo M&M reality

M&M reality

ulice Krakovská 583/9, Praha

Chystáte se prodat nemovitost?
Pomůžeme Vám!

Máte zájem o tento dům?

Tímto, v souladu s nařízením Evropského parlamentu a Rady (EU) 2016/679, v platném znění, prohlašuji, že mi je alespoň 16 let a uděluji tak svůj souhlas se zpracováním zadaných údajů (jméno, telefon, e-mail, ip adresa) společnosti B3 Technology, s.r.o., IČ: 07330600, se sídlem Novostavby 126/23, 435 11 Lom (správce dat), za účelem předání dotazu z tohoto formuláře Vámi vybranému inzerentovi a zpětného kontaktování mé osoby. Osobní údaje bude správce zpracovávat manuálně i automaticky přímo prostřednictvím svých zaměstnanců. Informace předané tímto formulářem budou uloženy v databázi správce maximálně po dobu 10 let. Odvolání souhlasu s uložením a zpracováním poskytnutých dat lze e-mailem na info@videobydleni.cz. V případě podezření na neoprávněné použití Vámi poskytnutých údajů máte právo předat podnět k šetření Úřadu pro ochranu osobních údajů. Více informací
Chystáte se prodat nemovitost?
Pomůžeme Vám!

Inzerát si prohlédlo 18 lidí

Prodejce

Michael Mokriš

Michael Mokriš

Hlídací pes

Chcete dostávat emailem podobné nabídky prodeje chalup v Kovářské?

Podobné nemovitosti


Nevyhovuje Vám typ domu? Podívejte se na jiné kategorie domů.


Vybrané články z našeho blogu