Pronájem kanceláře, Ostrava, Kralická, 128 m2

Kralická, Ostrava, Mariánské Hory a Hulváky

29 400 Kč /za měsíc Získejte výhodnou HYPOTÉKU
Prémioví partneři v Ostravě

Informace k nemovitosti

Nabízíme reprezentativní kancelářské prostory, nacházející se v přízemí budovy na ulici Kralická v Ostravě–Mariánských Horách, v klidné a dobře dostupné lokalitě.
Budova, ve které se tyto kanceláře nacházejí, byla zkolaudována v roce 2011 a je ve výborném stavu.

Tyto prostory poskytují profesionální zázemí pro vaše podnikání a zároveň nabízejí dostatek soukromí i pohodlí.

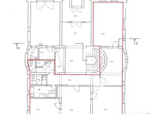
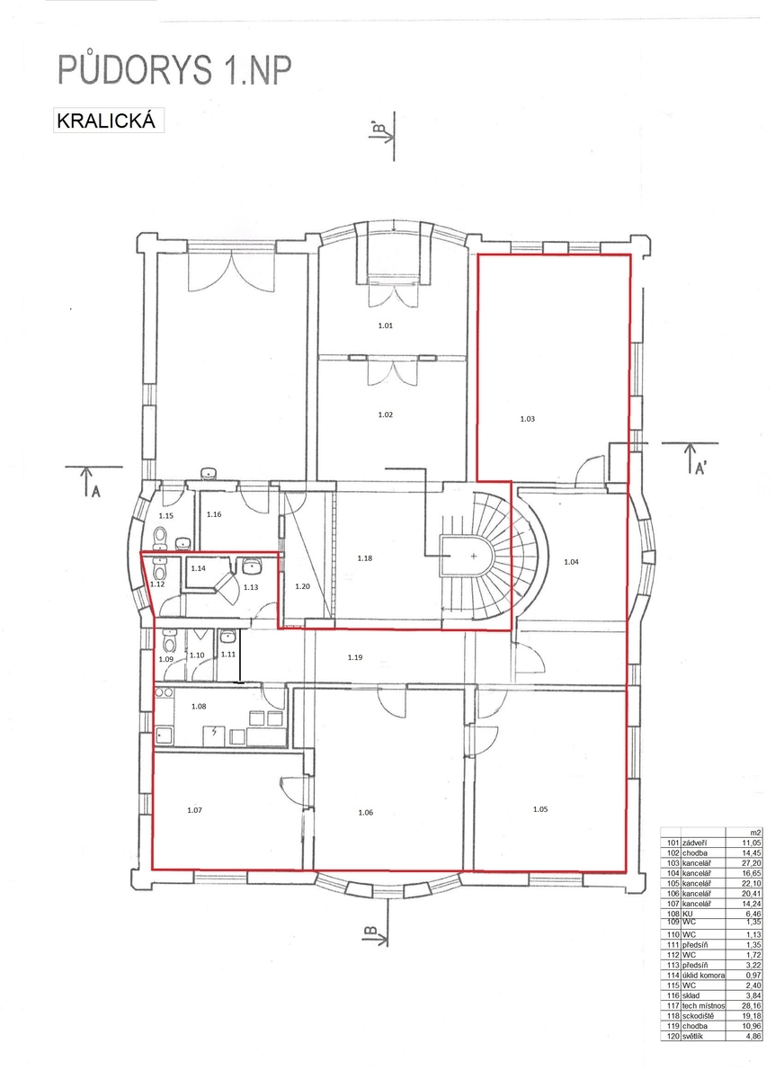
Prostory tvoří pět samostatných kanceláří o velikosti od 14 m² až po 27 m², propojených vlastní chodbou. Součástí je kuchyňka a oddělené dámské a pánské toalety, určené výhradně pro tyto prostory.

Kanceláře jsou nově vymalované a mají nové koberce, takže působí velmi čistě a upraveně.

Je zde možnost parkování na ulici, případně za poplatek v uzavřeném dvoře.
Samozřejmostí je klimatizace, ústřední topení, kamerový systém uvnitř i vně budovy, elektronické zabezpečení a dálkové ovládání vstupu.
Nechybí rozvody datové sítě, centrální vysavač ani eurookna s trojsklem, která zajišťují klid a tepelný komfort. Nájemci mohou využít také úschovnu kol.

Podlahy v kancelářích pokrývají koberce, v ostatních částech je dlažba.
Budova se nachází v klidné, avšak výborně dostupné části Mariánských Hor, v blízkosti tramvajové, trolejbusové i autobusové zastávky.

Prostory jsou k dispozici ihned.

Tyto prostory jsou ideální pro menší firmu, která hledá reprezentativní, bezpečné a pohodlné zázemí v klidné lokalitě s výbornou dostupností.

Pro více informací nebo sjednání prohlídky mě neváhejte kontaktovat.

Parametry nemovitosti

Cena
29 400 Kč /za měsíc
Aktualizováno
16. 10. 2025
Adresa
Kralická, Ostrava, Mariánské Hory a Hulváky
ID
1639
Stavba
Cihlová
Stav objektu
Velmi dobrý
Patro
1. z 3
Vybaveno
Ne
Typ objektu
Přízemní
Lokalita objektu
Centrum obce
Užitná plocha
128 m2
Zastavěná plocha
264 m2
Podlahová plocha
128 m2
Třída energetické náročnosti
G - Mimořádně nehospodárná
Plyn
Plynovod
Odpad
Veřejná kanalizace
Telekomunikace
Internet
Doprava
Vlak, Silnice, MHD, Autobus
Převod do OV

Kontaktovat makléře

Máte zájem o tuto nemovistost?

Tímto, v souladu s nařízením Evropského parlamentu a Rady (EU) 2016/679, v platném znění, prohlašuji, že mi je alespoň 16 let a uděluji tak svůj souhlas se zpracováním zadaných údajů (jméno, telefon, e-mail, ip adresa) společnosti B3 Technology, s.r.o., IČ: 07330600, se sídlem Novostavby 126/23, 435 11 Lom (správce dat), za účelem předání dotazu z tohoto formuláře Vámi vybranému inzerentovi a zpětného kontaktování mé osoby. Osobní údaje bude správce zpracovávat manuálně i automaticky přímo prostřednictvím svých zaměstnanců. Informace předané tímto formulářem budou uloženy v databázi správce maximálně po dobu 10 let. Odvolání souhlasu s uložením a zpracováním poskytnutých dat lze e-mailem na info@videobydleni.cz. V případě podezření na neoprávněné použití Vámi poskytnutých údajů máte právo předat podnět k šetření Úřadu pro ochranu osobních údajů. Více informací
Chystáte se prodat nemovitost?
Pomůžeme Vám!

Inzerát si prohlédlo 14 lidí

Prodejce

Markéta Cieslarová

Markéta Cieslarová

Hlídací pes

Chcete dostávat emailem podobné nabídky pronájmu kanceláří v Ostravě?

Podobné nemovitosti


Nevyhovuje Vám typ nemovitosti? Podívejte se na jiné kategorie komerčních.


Vybrané články z našeho blogu