Prodej obchodního prostoru, Ústí nad Labem, Pod Parkem, 82 m2 (ID: 4078022)

Pod Parkem, Ústí nad Labem

4 499 000 Kč /za nemovitost HYPOTÉKA od 20 108 Kč /za měsíc
Prémioví partneři v Ústí nad Labem

Okna a dveře

Informace k nemovitosti

Obchodní prostor na prodej – Ústí nad Labem, Severní Terasa.

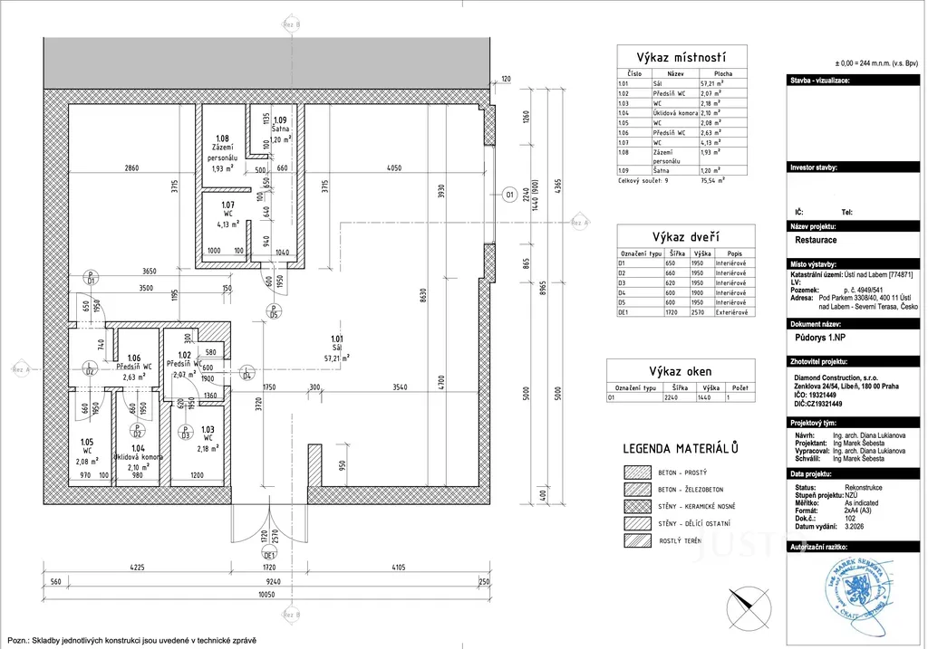
V zastoupení majitele nabízíme k prodeji obchodní prostor o výměře 93 m², situovaný v oblíbené městské části Severní Terasa v Ústí nad Labem. Prostor se nachází v lokalitě s výbornou dostupností a stabilní klientelou.

Tradice & potenciál Aktuálně zde funguje bar s více než 20letou historií, což zaručuje silné zázemí a povědomí mezi místními obyvateli.

Prostor je plně vybavený a připravený k okamžitému provozu, nebo k přetvoření dle vašich podnikatelských záměrů.

Možnosti využití díky své dispozici a poloze je prostor ideální nejen pro pokračování v gastronomii, ale také pro:
• kavárnu, vinárnu či bistro
• specializovaný obchod
• studio služeb (kadeřnictví, kosmetika, masáže)
• showroom nebo kancelářské zázemí

Zaujalo vás to? Neváhejte mě kontaktovat – rád zodpovím veškeré dotazy a domluvíme osobní prohlídku.

Chcete se přijít podívat? Přijďte se podívat na prohlídkový den, dne 3.2.2026 v čase od 12h - 15h. Prohlídka je možná po předchozí domluvě.

Parametry nemovitosti

Cena
4 499 000 Kč /za nemovitost Spočítat hypotéku
Aktualizováno
7. 4. 2026
Adresa
Pod Parkem, Ústí nad Labem
ID
J11108
Stavba
Panelová
Stav objektu
Dobrý
Patro
1.
Vybaveno
Částečně
Typ objektu
Přízemní
Druh objektu
Rohový
Lokalita objektu
Sídliště
Vlastnictví
Osobní
Užitná plocha
82 m2
Zastavěná plocha
100 m2
Podlahová plocha
93 m2
Plocha pozemku
260 m2
Plocha nebytových prostor
93 m2
Třída energetické náročnosti
G - Mimořádně nehospodárná
Ukazatel energetické náročnosti
413 kWh/m2 za rok
Elektřina
230V
Odpad
Veřejná kanalizace
Topení
Ústřední elektrické, Jiné
Komunikace
Asfaltová
Doprava
Silnice, MHD, Autobus
Voda
Vodovod
Topné těleso
Radiátory, Přímotop
Zdroj topení
Elektrokotel
Bezbarierový přístup
Parkování

Kontaktovat makléře

Realitní kancelář

Logo JUSTO Česká republika

JUSTO Česká republika

Korunní 2569/108, Vinohrady, Praha

Chystáte se prodat nemovitost?
Pomůžeme Vám!

Máte zájem o tuto nemovistost?

Tímto, v souladu s nařízením Evropského parlamentu a Rady (EU) 2016/679, v platném znění, prohlašuji, že mi je alespoň 16 let a uděluji tak svůj souhlas se zpracováním zadaných údajů (jméno, telefon, e-mail, ip adresa) společnosti B3 Technology, s.r.o., IČ: 07330600, se sídlem Novostavby 126/23, 435 11 Lom (správce dat), za účelem předání dotazu z tohoto formuláře Vámi vybranému inzerentovi a zpětného kontaktování mé osoby. Osobní údaje bude správce zpracovávat manuálně i automaticky přímo prostřednictvím svých zaměstnanců. Informace předané tímto formulářem budou uloženy v databázi správce maximálně po dobu 10 let. Odvolání souhlasu s uložením a zpracováním poskytnutých dat lze e-mailem na info@videobydleni.cz. V případě podezření na neoprávněné použití Vámi poskytnutých údajů máte právo předat podnět k šetření Úřadu pro ochranu osobních údajů. Více informací
Chystáte se prodat nemovitost?
Pomůžeme Vám!

Inzerát si prohlédlo 28 lidí

Prodejce

Pavel Hoferica

Pavel Hoferica

Hlídací pes

Chcete dostávat emailem podobné nabídky prodeje obchodních prostor v Ústí nad Labem?

Podobné nemovitosti


Nevyhovuje Vám typ nemovitosti? Podívejte se na jiné kategorie komerčních.


Vybrané články z našeho blogu