Prodej bytu 4+1, Ústí nad Labem - Krásné Březno, Obvodová, 84 m2

Obvodová, Ústí nad Labem, Krásné Březno

2 700 000 Kč /za nemovitost HYPOTÉKA od 12 067 Kč /za měsíc

(včetně všech poplatků za převod, advokátní služby v ceně)

Prémioví partneři v Ústí nad Labem

Okna a dveře

Rekonstrukce

Zámečnické práce

Informace k bytu

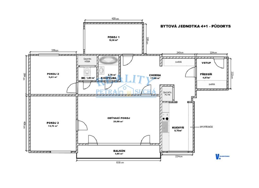
Nabízíme ke koupi byt v družstevním vlastnictví o dispozici 4+1/L a velikosti 84m² nacházející se v 8 NP panelového domu v obci Ústí nad Labem – část sídliště Pod Vyhlídkou.
Tento celkově dobře udržovaný byt prošel rekonstrukcí původního umakartového jádra na zděné, kdy koupelna a toaleta jsou od sebe oddělené a je zde tím zajištěno dostatečné soukromí. Obklady modré barvy působí velmi příjemně a prostor koupelny je dostatečný i pro umístění svislé sady pračky a sušičky. Středem bytu vede prostorná chodba s vestavěnou skříní. Stejně prostorná skříň se nachází i v zádveří menší vstupní chodby. Je zde tedy dostatek úložného prostoru pro oblečení i další věci všech členů rodiny. K dispozici tři obytné místnosti pro pokoje a ložnici a hlavní obývací místnost sousedící s kuchyní. Záměr původních majitelů bylo i propojení těchto dvou místností a vytvoření většího otevřeného prostoru. Součástí prodeje jsou i vestavěné spotřebiče v kuchyni. Byt má k dispozici i prostornou lodžii s vlastním zasklením. Je tedy neustále v suchu a lze si tady užít chvíle klidu u kávy, případně výhledu za každého počasí. Z oken pokojů je nádherný výhled na celé město i okolní zeleň. Pro lepší představu rozložení místností využijte naši fotogalerii a plánek bytu.
Podlahy v bytě plovoucí a lino. Topení řešeno radiátory, v koupelně a na toaletě podlahové. Do bytu zaveden plyn. Okna plastová. K bytu je k dispozici sklepní koje.
Dům prošel rekonstrukcí fasády a zateplení, střechy. Vstup do domu zajištěn přes čip. Přívod internetu přes síť T-mobile - optika. Celkově dům i okolí působí velmi čistě a udržovaně. Parkování možné u domu a přilehlých parkovacích stání.
V současné době nelze byt převést do osobního vlastnictví z důvodu zakládání SVJ v domě s realizací do cca 2 let. Žádost o převod podána. Anuita splacena, poplatek za převod práv v ceně nemovitosti.
Samotné město Ústí nad Labem je krajským městem Ústeckého kraje. Je zde veškerá občanská vybavenost a obchodní síť. Školky, školy, střední školy i VŠ v místě. Pravidelná autobusová doprava (zastávka do 3 minut chůze), dálnice D8 směr Praha – Německo se nachází do 7 minut jízdy autem od domu.
Tento dům doporučuji pro svůj skvělý stav, zděné jádro a jako místo v klidné části města s dobrou dostupností.
Pro případ zájmu o prohlídku tohoto domu mě prosím kontaktujte a rád vás zde provedu.

Parametry bytu

Cena
2 700 000 Kč /za nemovitost Spočítat hypotéku
Poznámka k ceně
včetně všech poplatků za převod, advokátní služby v ceně
Aktualizováno
18. 10. 2025
Adresa
Obvodová, Ústí nad Labem, Krásné Březno
ID
2025038
Stavba
Panelová
Stav objektu
Velmi dobrý
Patro
8.
Vybaveno
Částečně
Typ objektu
Patrový
Lokalita objektu
Klidná část obce
Vlastnictví
Družstevní
Užitná plocha
84 m2
Třída energetické náročnosti
G - Mimořádně nehospodárná
Elektřina
230V
Plyn
Plynovod
Odpad
Veřejná kanalizace
Topení
Ústřední dálkové, Podlahové
Komunikace
Betonová, Asfaltová
Telekomunikace
Internet, Kabelová televize
Doprava
Vlak, Dálnice, Silnice, MHD
Voda
Vodovod
Topné těleso
Radiátory
Zdroj topení
Ústřední dálkové
Sklep
Lodžie
Výtah
Bezbarierový přístup
Převod do OV

Kontaktovat makléře

Realitní kancelář

Logo Petra Suchá - realitní makléřka

Petra Suchá - realitní makléřka

Špindlerova třída 788, Roudnice nad Labem

Chystáte se prodat nemovitost?
Pomůžeme Vám!

Máte zájem o tento byt?

Tímto, v souladu s nařízením Evropského parlamentu a Rady (EU) 2016/679, v platném znění, prohlašuji, že mi je alespoň 16 let a uděluji tak svůj souhlas se zpracováním zadaných údajů (jméno, telefon, e-mail, ip adresa) společnosti B3 Technology, s.r.o., IČ: 07330600, se sídlem Novostavby 126/23, 435 11 Lom (správce dat), za účelem předání dotazu z tohoto formuláře Vámi vybranému inzerentovi a zpětného kontaktování mé osoby. Osobní údaje bude správce zpracovávat manuálně i automaticky přímo prostřednictvím svých zaměstnanců. Informace předané tímto formulářem budou uloženy v databázi správce maximálně po dobu 10 let. Odvolání souhlasu s uložením a zpracováním poskytnutých dat lze e-mailem na info@videobydleni.cz. V případě podezření na neoprávněné použití Vámi poskytnutých údajů máte právo předat podnět k šetření Úřadu pro ochranu osobních údajů. Více informací
Chystáte se prodat nemovitost?
Pomůžeme Vám!

Inzerát si prohlédlo 3 lidí

Prodejce

Jan Pánek

Jan Pánek

Hlídací pes

Chcete dostávat emailem podobné nabídky prodeje bytů 4+1 v Ústí nad Labem?

Podobné nemovitosti


Nevyhovuje Vám typ bytu? Podívejte se na jiné kategorie bytů.


Vybrané články z našeho blogu