Prodej rodinného domu, Česká Kamenice, 152 m2 (ID: 4078242)

Česká Kamenice

8 900 000 Kč HYPOTÉKA od 39 778 Kč /za měsíc

(včetně provize RK)

Prémioví partneři v České Kamenici

Okna a dveře

Rekonstrukce

Zámečnické práce

Informace k domu

Prodej novostavby rodinného domu 5+kk, 120 m² ve výstavbě - Česká Kamenice

Prodej novostavby rodinného domu – Česká Kamenice

Představujeme vám jedinečnou příležitost ke koupi moderní novostavby samostatně stojícího rodinného domu v klidné části České Kamenice. Nemovitost se nachází na atraktivním okraji obce – v bezprostřední blízkosti přírody a zároveň s výbornou dostupností do centra města. Výstavba právě probíhá, plánované dokončení a kolaudace jsou stanoveny na 30. 4. 2026.

Bezpečný model financování
Prodávající garantuje kompletní dostavbu domu včetně terénních úprav a oplocení, a to dle schváleného projektu a přiložené vizualizace. Kupní cenu hradíte až po dokončení stavby a kolaudaci. Ve fázi výstavby je splatná pouze záloha ve výši 5 % z kupní ceny, a to na základě rezervační smlouvy a smlouvy o smlouvě budoucí kupní.

První ze dvou domů je již rezervován. Nyní máte možnost zakoupit druhý – za zvýhodněných podmínek.

Základní parametry domu
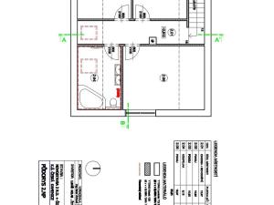
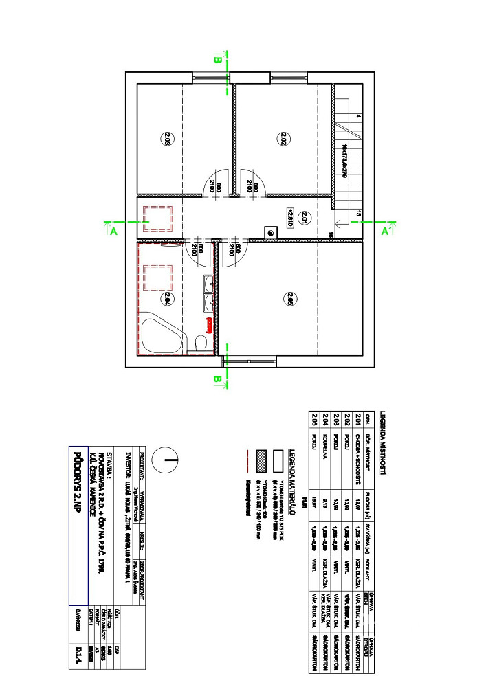
Dispozice: 5+kk

Zastavěná plocha: 76 m²

Užitná plocha: cca 120 m²

Pozemek: cca 850 m²

Vytápění: tepelné čerpadlo, podlahové topení

Energetická náročnost: třída B – velmi úsporná (dle PENB)

Střecha: sedlová, betonová taška

Zdivo: tvárnice Porfix

Okna: plastová s izolačním trojsklem

Podlahy: vinylová krytina

Dispozice a standardy
Každý dům nabízí:

Prostorný obývací pokoj s kuchyňským koutem

Tři ložnice

Pracovnu

Koupelnu

Samostatné WC

Technickou místnost

Zpevněnou plochu pro parkování dvou vozidel před domem

Dokončení proběhne ve vysokém standardu s důrazem na nízké provozní náklady, moderní technologie a funkční dispoziční řešení.

Výhody této nabídky
Krásná a klidná lokalita vhodná pro rodinný život

Moderní nízkoenergetický dům

Možnost ovlivnit finální podobu interiéru během výstavby

Výborná občanská vybavenost v docházkové vzdálenosti

Bezpečný model financování – platba až po kolaudaci

Dokumentace a financování
K nahlédnutí je připravena kompletní projektová dokumentace. Zájemcům rádi poskytneme také podmínky zvýhodněného financování při koupi ve fázi výstavby.

Pro více informací a domluvení schůzky nás neváhejte kontaktovat.

Parametry domu

Cena
8 900 000 Kč Spočítat hypotéku
Poznámka k ceně
včetně provize RK
Aktualizováno
6. 12. 2025
Adresa
Česká Kamenice
ID
100395
Stavba
Cihlová
Stav objektu
Ve výstavbě
Vybaveno
Ne
Druh objektu
Samostatný
Lokalita objektu
Klidná část obce
Užitná plocha
152 m2
Plocha pozemku
890 m2
Třída energetické náročnosti
B - Velmi úsporná
Ukazatel energetické náročnosti
68 kWh/m2 za rok

Kontaktovat makléře

Máte zájem o tento dům?

Tímto, v souladu s nařízením Evropského parlamentu a Rady (EU) 2016/679, v platném znění, prohlašuji, že mi je alespoň 16 let a uděluji tak svůj souhlas se zpracováním zadaných údajů (jméno, telefon, e-mail, ip adresa) společnosti B3 Technology, s.r.o., IČ: 07330600, se sídlem Novostavby 126/23, 435 11 Lom (správce dat), za účelem předání dotazu z tohoto formuláře Vámi vybranému inzerentovi a zpětného kontaktování mé osoby. Osobní údaje bude správce zpracovávat manuálně i automaticky přímo prostřednictvím svých zaměstnanců. Informace předané tímto formulářem budou uloženy v databázi správce maximálně po dobu 10 let. Odvolání souhlasu s uložením a zpracováním poskytnutých dat lze e-mailem na info@videobydleni.cz. V případě podezření na neoprávněné použití Vámi poskytnutých údajů máte právo předat podnět k šetření Úřadu pro ochranu osobních údajů. Více informací
Chystáte se prodat nemovitost?
Pomůžeme Vám!

Inzerát si prohlédlo 18 lidí

Prodejce

Jan Richter

Jan Richter

Hlídací pes

Chcete dostávat emailem podobné nabídky prodeje rodinných domů v České Kamenici?

Top nabídky

Podobné nemovitosti


Nevyhovuje Vám typ domu? Podívejte se na jiné kategorie domů.


Vybrané články z našeho blogu