Prodej bytu 4+kk, Praha - Modřany, 80 m2

Praha 4

9 979 000 Kč /za nemovitost HYPOTÉKA od 44 600 Kč /za měsíc

(Cena včetně provize RK a právních služeb)

Prémioví partneři v Praze 4

Stěhovací služby

Výkup a prodej starého nábytku

Informace k bytu

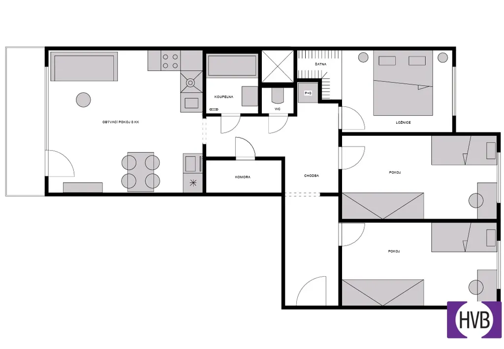
Nabízíme k prodeji světlý prostorný byt po kompletní rozsáhlé rekonstrukci o dispozici 4+kk s lodžií o celkové výměře cca 81m2, nacházející se na adrese ul. Urbánkova Praha - Modřany.

Tato nemovitost, situovaná ve 3. patře panelové budovy, nabízí pěkný výhled na okolí. Dispozici tvoří vstupní chodba, obývací pokoj s plně vybaveným kuchyňským koutem, tři obytné místnosti, koupelna, oddělené místo pro pračku, velká komora a samostatné WC. K bytu patří sklep 3.2m2. Bydlení je navrženo s ohledem na moderní životní styl, vybaveno kvalitními materiály a promyšlenými detaily. Součástí bytu je také prostorná lodžie cca 4.3m2.

Nízkoenergetická budova třídy B prošla revitalizací. V blízkosti nemovitosti se nachází veškerá občanská vybavenost, včetně obchodů a volnočasových aktivit, což činí tuto lokalitu velmi atraktivní pro všechny, kteří hledají pohodlné rodinné bydlení. Doprava do centra města je zajištěna prostřednictvím městské hromadné dopravy, v pěší vzdálenosti zastávka autobusů. V případě zájmu o prohlídku nás neváhejte kontaktovat i přes víkend.

Parametry bytu

Cena
9 979 000 Kč /za nemovitost Spočítat hypotéku
Poznámka k ceně
Cena včetně provize RK a právních služeb
Aktualizováno
1. 12. 2025
Adresa
Praha 4
ID
N2516823
Stavba
Panelová
Stav objektu
Velmi dobrý
Patro
4. z 7
Vybaveno
Ne
Lokalita objektu
Sídliště
Vlastnictví
Osobní
Užitná plocha
80 m2
Třída energetické náročnosti
B - Velmi úsporná
Elektřina
230V, 400V
Odpad
Veřejná kanalizace
Komunikace
Asfaltová
Telekomunikace
Internet, Kabelová televize
Doprava
MHD, Autobus
Voda
Vodovod
Sklep
Lodžie
Výtah
Nízkoenergetický

Kontaktovat makléře

Realitní kancelář

Logo HVB Real Estate, s.r.o.

HVB Real Estate, s.r.o.

Korunní 1310/56, Praha, Vinohrady

Chystáte se prodat nemovitost?
Pomůžeme Vám!

Máte zájem o tento byt?

Tímto, v souladu s nařízením Evropského parlamentu a Rady (EU) 2016/679, v platném znění, prohlašuji, že mi je alespoň 16 let a uděluji tak svůj souhlas se zpracováním zadaných údajů (jméno, telefon, e-mail, ip adresa) společnosti B3 Technology, s.r.o., IČ: 07330600, se sídlem Novostavby 126/23, 435 11 Lom (správce dat), za účelem předání dotazu z tohoto formuláře Vámi vybranému inzerentovi a zpětného kontaktování mé osoby. Osobní údaje bude správce zpracovávat manuálně i automaticky přímo prostřednictvím svých zaměstnanců. Informace předané tímto formulářem budou uloženy v databázi správce maximálně po dobu 10 let. Odvolání souhlasu s uložením a zpracováním poskytnutých dat lze e-mailem na info@videobydleni.cz. V případě podezření na neoprávněné použití Vámi poskytnutých údajů máte právo předat podnět k šetření Úřadu pro ochranu osobních údajů. Více informací
Chystáte se prodat nemovitost?
Pomůžeme Vám!

Inzerát si prohlédlo 42 lidí

Prodejce

Dimitri Naumov

Dimitri Naumov

Hlídací pes

Chcete dostávat emailem podobné nabídky prodeje bytů 4+kk v Praze 4?

Podobné nemovitosti


Nevyhovuje Vám typ bytu? Podívejte se na jiné kategorie bytů.


Vybrané články z našeho blogu