Prodej rodinného domu, Netřebice, 85 m2 (ID: 4079350)

Netřebice

4 250 000 Kč /za nemovitost HYPOTÉKA od 18 995 Kč /za měsíc
Prémioví partneři v Netřebicích

Výkup a prodej starého nábytku

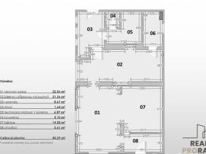
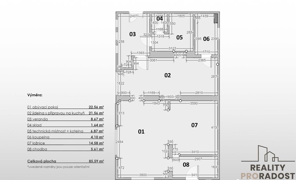
Informace k domu

Hledáte sídlo pro svoji logistickou firmu se zahradou vhodnou na parkoviště nebo vystavení další budovy a prázdnou půdou vhodnou k vestavbě na tahu Č. Budějovice - Dolní Dvořiště? Pak doražte do Netřebic - menší vesničky vzdálené 20 minut autem od krajského města. Na pozemku o celkové ploše 701 m2 se nachází dům s obytným přízemím a prázdnou půdou. Ateliérové uspořádání přízemí Vás na první pohled zaujme a velký prostor v zadní části to jen podtrhne. Hned za ní je prostorná koupelna s vanou a WC a úplně vzadu pak najdete kotelnu s el. kotlem a bojlerem, velkou verandu vhodnou např. jako zimní zahradu a vstup na zmiňovanou půdu. Zde si můžete vybudovat krásný prostor v podobě open-space kanceláří či archivů. Obývací pokoj je propojen s ložnicí a vytváří tak jeden velký otevřený prostor s výhledem na zahradu, která je přímo přes cestu s celkovou plochou 524 m2. Na zahradě můžete zbudovat velké parkoviště, garáž nebo i další nemovitost. Dům prošel rozsáhlou rekonstrukcí - plastová okna, ústřední topení, omítky, podlahy, rozvody, fasáda, střecha. Je napojen na obecní vodovod i kanalizaci a samozřejmě elektřinu. Plyn v obci je. Auta můžete pohodlně parkovat na svém pozemku přímo před domem nebo na zmíněné zahradě. Veškerou občanskou vybavenost najdete v nedaleké Kaplici a na Lipno to budete mít skoro stejně daleko jako do Budějovic. Strategická poloha k dálnici D3 a do Rakouska může být pro podnikání do budoucna velmi zajímavá. Tak se příjeďte přesvědčit na vlastní oči.

Parametry domu

Cena
4 250 000 Kč /za nemovitost Spočítat hypotéku
Aktualizováno
8. 11. 2025
Adresa
Netřebice
ID
007
Stavba
Smíšená
Stav objektu
Velmi dobrý
Vybaveno
Ne
Typ objektu
Patrový
Druh objektu
Řadový
Lokalita objektu
Klidná část obce
Užitná plocha
85 m2
Zastavěná plocha
130 m2
Podlahová plocha
701 m2
Plocha pozemku
701 m2
Plocha zahrady
550 m2
Třída energetické náročnosti
D - Méně úsporná
Elektřina
230V
Odpad
Veřejná kanalizace
Komunikace
Asfaltová
Telekomunikace
Internet
Doprava
Silnice, Autobus
Voda
Vodovod
Převod do OV
Parkování

Kontaktovat makléře

Máte zájem o tento dům?

Tímto, v souladu s nařízením Evropského parlamentu a Rady (EU) 2016/679, v platném znění, prohlašuji, že mi je alespoň 16 let a uděluji tak svůj souhlas se zpracováním zadaných údajů (jméno, telefon, e-mail, ip adresa) společnosti B3 Technology, s.r.o., IČ: 07330600, se sídlem Novostavby 126/23, 435 11 Lom (správce dat), za účelem předání dotazu z tohoto formuláře Vámi vybranému inzerentovi a zpětného kontaktování mé osoby. Osobní údaje bude správce zpracovávat manuálně i automaticky přímo prostřednictvím svých zaměstnanců. Informace předané tímto formulářem budou uloženy v databázi správce maximálně po dobu 10 let. Odvolání souhlasu s uložením a zpracováním poskytnutých dat lze e-mailem na info@videobydleni.cz. V případě podezření na neoprávněné použití Vámi poskytnutých údajů máte právo předat podnět k šetření Úřadu pro ochranu osobních údajů. Více informací
Chystáte se prodat nemovitost?
Pomůžeme Vám!

Inzerát si prohlédlo 27 lidí

Prodejce

Realitní poradce 501

Realitní poradce 501

Hlídací pes

Chcete dostávat emailem podobné nabídky prodeje rodinných domů v Netřebicích (okr. Český Krumlov)?

Podobné nemovitosti


Nevyhovuje Vám typ domu? Podívejte se na jiné kategorie domů.


Vybrané články z našeho blogu