Prodej rodinného domu, Kramolna, 84 m2

Kramolna

5 490 000 Kč /za nemovitost HYPOTÉKA od 24 537 Kč /za měsíc
Prémioví partneři v Kramolně

Informace k domu

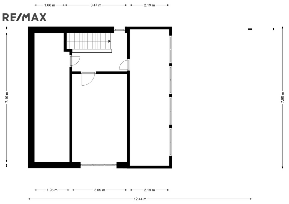
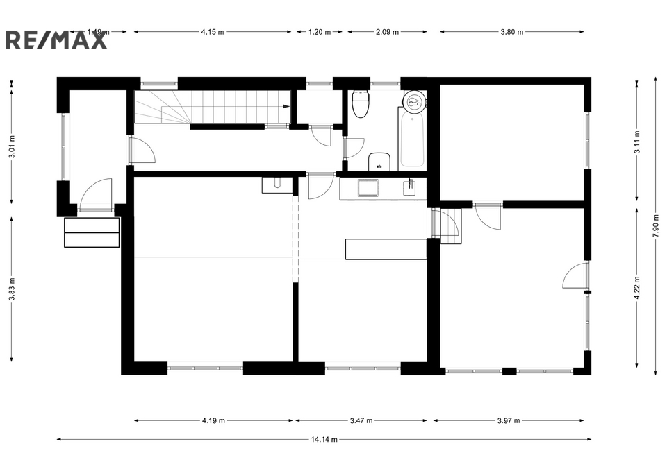
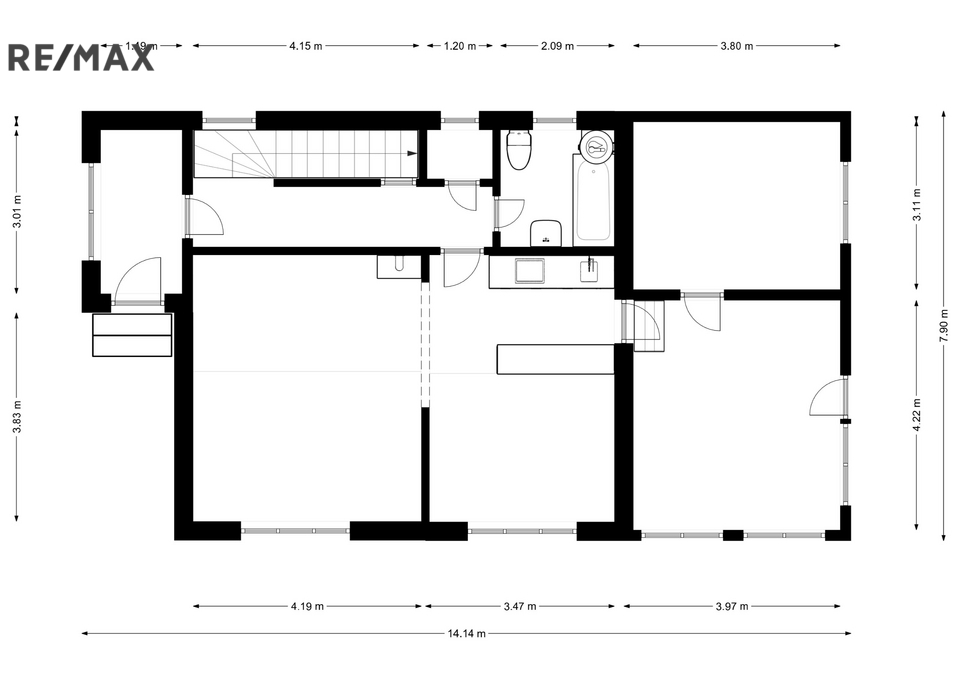
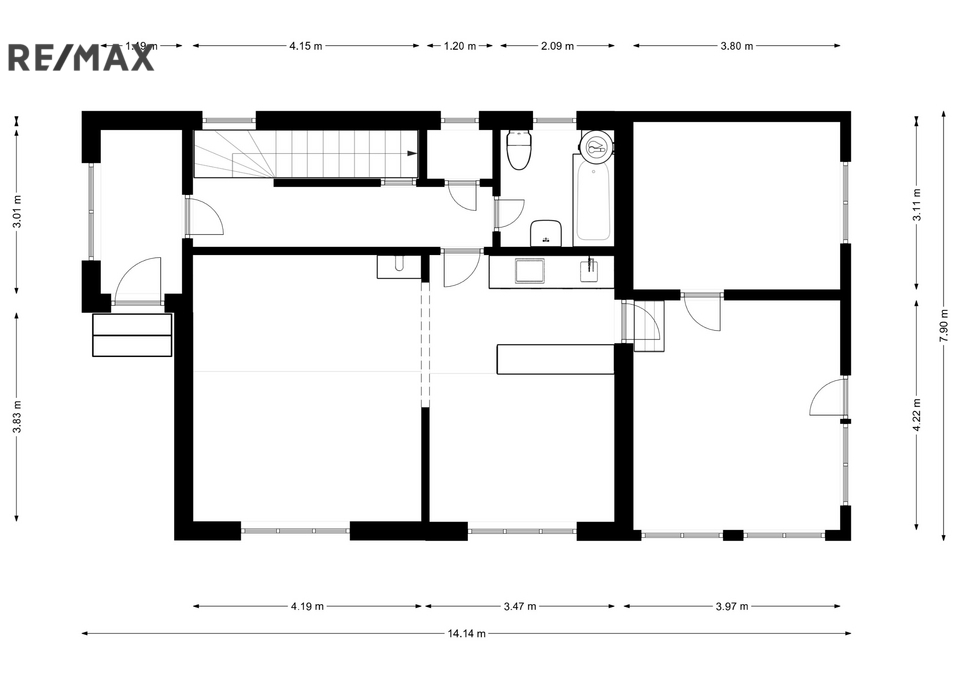
Nabízíme k prodeji starší, ale zachovalý rodinný dům, nacházející se v malebné obci Kramolna, č. p. 131 v těsné blízkosti města Náchod. Tento patrový objekt s jedním podlažím se pyšní zastavěnou plochou 214 m² a užitnou plochou 84 m², což zajišťuje dostatek prostoru pro pohodlné bydlení. Dům je částečně vybavený a jeho součástí je také sklep o ploše 6,4 m².

Nemovitost se nachází na parcele o celkové ploše 1097 m², která nabízí krásnou zahradu a dostatek prostoru pro příjemné venkovní aktivity. V okolí se rozprostírá krásná příroda, lesy a klidná místa, ideální pro relaxaci a odpočinek od městského ruchu.

Dům disponuje třemi prostornými pokoji a jeho zařízení zahrnuje radiátory, krbová kamna, bojler na elektřinu pro ohřev teplé vody, prostornou kuchyň s keramickou varnou deskou. K dispozici je také jedno parkoviště pro pohodlné parkování. Odpad je napojen na kanalizaci a přívod vody zajišťuje vodovod.

Jednou z výhod nemovitosti je její poloha v žádané lokalitě, kde je snadná dostupnost MHD a autobusové dopravy, což usnadňuje každodenní cestování. Dřevěné přístavby v okolí domu dodávají nemovitosti na charakteru a přispívají k příjemné atmosféře.

V případě zájmu o prohlídku mě neváhejte kontaktovat. Prodávající si vyhrazuje právo vybrat kupujícího na základě jím zvolených kritérií.

Parametry domu

Cena
5 490 000 Kč /za nemovitost Spočítat hypotéku
Aktualizováno
10. 3. 2026
Adresa
Kramolna
ID
305-NP00827
Stavba
Smíšená
Stav objektu
Velmi dobrý
Vybaveno
Částečně
Typ objektu
Patrový
Druh objektu
Samostatný
Lokalita objektu
Klidná část obce
Užitná plocha
84 m2
Zastavěná plocha
214 m2
Podlahová plocha
144 m2
Plocha pozemku
1097 m2
Plocha zahrady
883 m2
Třída energetické náročnosti
G - Mimořádně nehospodárná
Elektřina
230V
Odpad
Veřejná kanalizace
Komunikace
Asfaltová
Doprava
MHD, Autobus
Voda
Vodovod
Sklep
Převod do OV
Parkování

Kontaktovat makléře

Realitní kancelář

RE/MAX Infinity

Masarykovo náměstí 392/14, Hradec Králové

Chystáte se prodat nemovitost?
Pomůžeme Vám!

Máte zájem o tento dům?

Tímto, v souladu s nařízením Evropského parlamentu a Rady (EU) 2016/679, v platném znění, prohlašuji, že mi je alespoň 16 let a uděluji tak svůj souhlas se zpracováním zadaných údajů (jméno, telefon, e-mail, ip adresa) společnosti B3 Technology, s.r.o., IČ: 07330600, se sídlem Novostavby 126/23, 435 11 Lom (správce dat), za účelem předání dotazu z tohoto formuláře Vámi vybranému inzerentovi a zpětného kontaktování mé osoby. Osobní údaje bude správce zpracovávat manuálně i automaticky přímo prostřednictvím svých zaměstnanců. Informace předané tímto formulářem budou uloženy v databázi správce maximálně po dobu 10 let. Odvolání souhlasu s uložením a zpracováním poskytnutých dat lze e-mailem na info@videobydleni.cz. V případě podezření na neoprávněné použití Vámi poskytnutých údajů máte právo předat podnět k šetření Úřadu pro ochranu osobních údajů. Více informací
Chystáte se prodat nemovitost?
Pomůžeme Vám!

Inzerát si prohlédlo 31 lidí

Prodejce

Ing. Boris Oláh

Ing. Boris Oláh

Hlídací pes

Chcete dostávat emailem podobné nabídky prodeje rodinných domů v Kramolně?

Podobné nemovitosti


Nevyhovuje Vám typ domu? Podívejte se na jiné kategorie domů.


Vybrané články z našeho blogu