Prodej bytu 3+1, Praha, Senovážné náměstí, 95 m2

Senovážné náměstí, Praha 1

Cena na vyžádání /za nemovitost Získejte výhodnou HYPOTÉKU

(Cena na dotaz)

Prémioví partneři v Praze 1

Stěhovací služby

Výkup a prodej starého nábytku

Informace k bytu

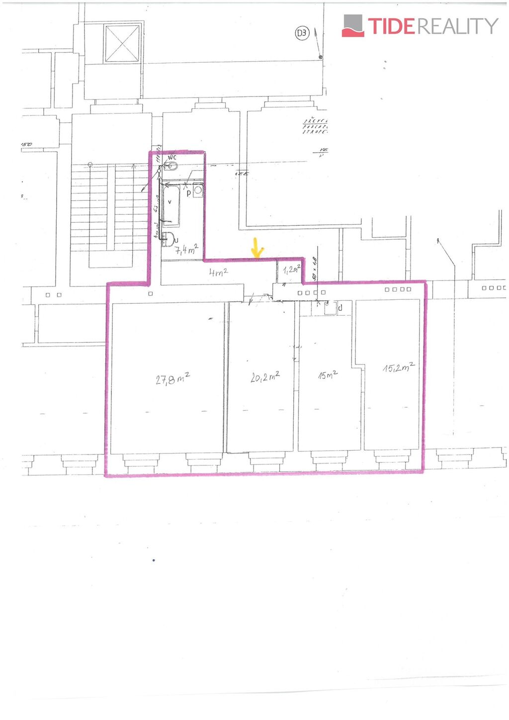
Jedinečná investiční příležitost! V exkluzivním zastoupení majitele nabízíme ke koupi velmi prostorný, světlý a hlavně klidný byt, který se nachází v naprostém centru Prahy 1, v 6. nadzemním podlaží, tj. v posledním obývaném patře nádherně zrekonstruovaného secesního domu na Senovážném náměstí, přímo naproti Jindřišské věži. Tento byt s úžasným potenciálem se rozkládá na celkové ploše 91 m2 a nabízí velkou variabilitu budoucího stavu. Dělící mezipokojové zdi nejsou nosné, některé ani vyzdívané, rozložení pokojů a nová dispozice může být změněna z 3+1 dle individuálních požadavků nového vlastníka. Všechny 4 místnosti (15m2, 15m2, 20m2, 28m2) mají výšku stropu cca 4m, slunnou jižní orientaci a všechny nabízí jedinečný a ničím nezastíněný výhled na Jindřišskou věž. V bytě je vytápění zajišťováno tepelným čerpadlem vzduchvzduch se 4mi splitovými jednotkami v každé obytné místnosti, ohřev TV prostřednictvím karmy, plyn přiveden i do kuch.linky. Původní parketové podlahy ve všech místnostech, dř. špaletová okna.
Přestože se byt nachází přímo v historickém centru je od ruchu velkoměsta naprosto izolovaný. Tato lokalita disponuje veškerou občanskou vybaveností v bezprostředním okolí, vždy v pohodlné docházkové vzdálenosti. V sousedství jsou tramvajové zastávky, pár minut chůze pak Václavské náměstí se stanicemi metra všech linek i Hlavní a Masarykovo nádraží. Nákupní zóny (Náměstí Republiky, Na Příkopě, Palladium, Slovanský dům) v sousedství.
Dům nemusí prokazovat PENB, tř. "G" neodpovídá skutečnému stavu.
Volný ihned!

Parametry bytu

Cena
Cena na vyžádání Spočítat hypotéku
Poznámka k ceně
Cena na dotaz
Aktualizováno
15. 12. 2025
Adresa
Senovážné náměstí, Praha 1
ID
969188
Stavba
Cihlová
Stav objektu
Velmi dobrý
Patro
6. z 13
Vybaveno
Částečně
Vlastnictví
Osobní
Užitná plocha
95 m2
Podlahová plocha
91 m2
Třída energetické náročnosti
G - Mimořádně nehospodárná
Elektřina
230V
Plyn
Plynovod
Voda
Vodovod
Sklep
Výtah
Parkování

Kontaktovat makléře

Realitní kancelář

Logo TIDE REALITY, spol. s r.o.

TIDE REALITY, spol. s r.o.

Dřevná 382/2, Praha, Nové Město

Chystáte se prodat nemovitost?
Pomůžeme Vám!

Máte zájem o tento byt?

Tímto, v souladu s nařízením Evropského parlamentu a Rady (EU) 2016/679, v platném znění, prohlašuji, že mi je alespoň 16 let a uděluji tak svůj souhlas se zpracováním zadaných údajů (jméno, telefon, e-mail, ip adresa) společnosti B3 Technology, s.r.o., IČ: 07330600, se sídlem Novostavby 126/23, 435 11 Lom (správce dat), za účelem předání dotazu z tohoto formuláře Vámi vybranému inzerentovi a zpětného kontaktování mé osoby. Osobní údaje bude správce zpracovávat manuálně i automaticky přímo prostřednictvím svých zaměstnanců. Informace předané tímto formulářem budou uloženy v databázi správce maximálně po dobu 10 let. Odvolání souhlasu s uložením a zpracováním poskytnutých dat lze e-mailem na info@videobydleni.cz. V případě podezření na neoprávněné použití Vámi poskytnutých údajů máte právo předat podnět k šetření Úřadu pro ochranu osobních údajů. Více informací
Chystáte se prodat nemovitost?
Pomůžeme Vám!

Inzerát si prohlédlo 51 lidí

Prodejce

Hana Hlavatá

Hana Hlavatá

Hlídací pes

Chcete dostávat emailem podobné nabídky prodeje bytů 3+1 v Praze 1?

Podobné nemovitosti


Nevyhovuje Vám typ bytu? Podívejte se na jiné kategorie bytů.


Vybrané články z našeho blogu