Prodej pozemku, Veverské Knínice, 800 m2

Veverské Knínice

Prémioví partneři v Veverských Knínicích

Informace k pozemku

Prodej stavebního pozemku - 800 m², Veverské Knínice, Brno - venkov

Nabízíme ve výhradním zastoupení pěkný rovinatý stavební pozemek o velikosti 800 m² v obci Veverské Knínice, na kterém lze postavit samostatně stojící rodinný dům. Pozemek se nachází na kraji obce ve velmi klidné části. Stavební šířka pozemku je cca 15,5m a délka cca 51,6 m. Vjezd na pozemek vede z hlavní asfaltové silnice. Informace k přípojkám budou poskytnuty při osobním jednání na prohlídce pozemku.
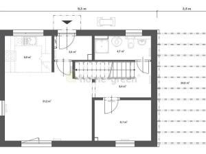
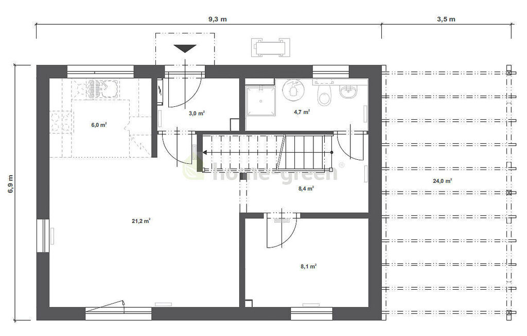
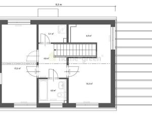
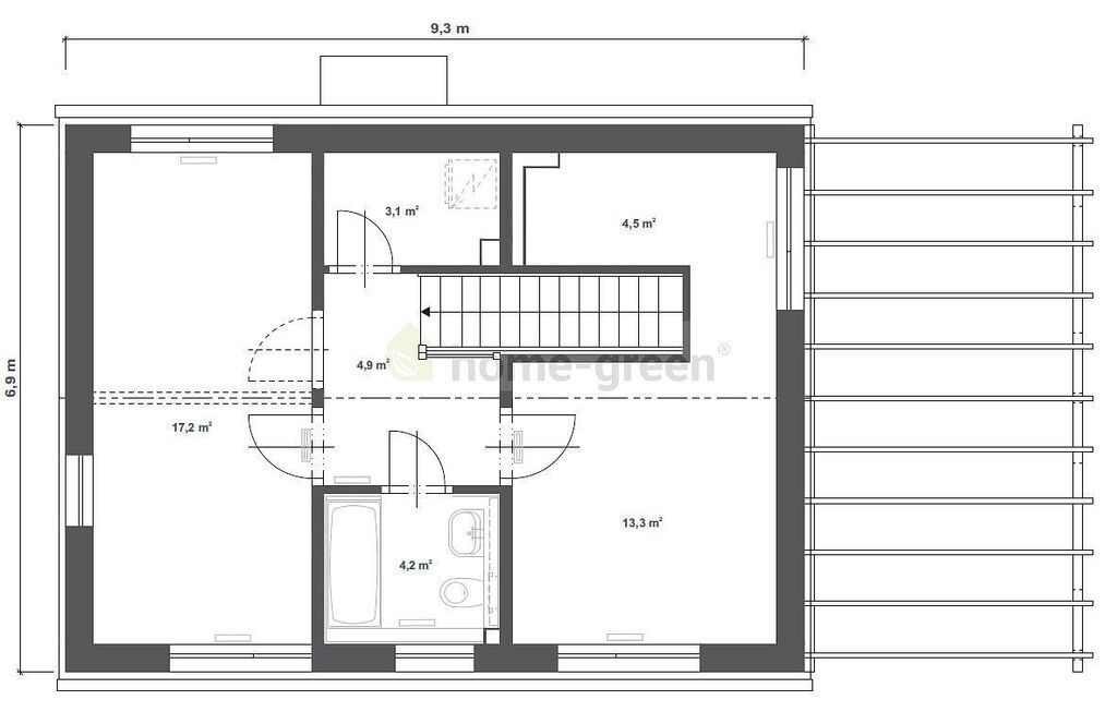
Doporučujeme na pozemku postavit dřevostavbu RD Rýmařov - KUBIS 99 je ideální dům pro rodiny s dětmi. V přízemí se nachází kuchyňský kout spojený s obývacím pokojem, který umožní přímý vstup na slunnou terasu. Nechybí tu ani samostatný pokoj a koupelna. V podkroví se pak nachází další 3 prostorné pokoje a praktická technická místnost. Samozřejmostí je i druhá koupelna. Půdorys o rozměru 9,34 × 6,91 m vám v tomto patrovém rodinném domě poskytne téměř 100 m² podlahových ploch. Navíc vám KUBIS 99 nabízí možnost rozšíření z dispozice 4+kk na 5+kk. Vedle domu se skvěle hodí i dřevěná pergola, která poslouží jako stání pro auto. Tepelné čerpadlo je v ceně domu. Čerpadlo vzduch - vzduch v zimě dům vyhřeje, v létě zase ochladí. Fotovoltaická elektrárna je v ceně domu. Systém ON GRID s akumulací do zásobníku TUV: využívá sluneční energii pro ohřev užitkové vody v zásobníku. Základová deska je v ceně domu.
Veverské Knínice jsou obec v okrese Brno-venkov v Jihomoravském kraji. Leží na rozhraní Boskovické brázdy a Křižanovské vrchoviny. Krásná příroda v okolí obce poskytuje velké možnosti pro volnočasovou aktivitu v blízkosti Brněnské přehrady a hradu Veveří. V současné době je v obci 332 domů a žije tu přibližně 954 obyvatel. Obec je vzdálená cca 10 km od města Rosice a cca 20 Km západně od města Brno. Sjezd z dálnice D1 je v blízkosti 3 km u obce Ostrovačice. Uveřejněné fotografie RD k výstavbě jsou pouze ilustrativní. Nabídku doporučujeme a se zajištěním financování pomůžeme.

Parametry pozemku

Cena
3 990 000 Kč Spočítat hypotéku
Aktualizováno
22. 10. 2025
Adresa
Veverské Knínice
ID
N00014
Plocha pozemku
800 m2

Kontaktovat makléře

Máte zájem o tento pozemek?

Tímto, v souladu s nařízením Evropského parlamentu a Rady (EU) 2016/679, v platném znění, prohlašuji, že mi je alespoň 16 let a uděluji tak svůj souhlas se zpracováním zadaných údajů (jméno, telefon, e-mail, ip adresa) společnosti B3 Technology, s.r.o., IČ: 07330600, se sídlem Novostavby 126/23, 435 11 Lom (správce dat), za účelem předání dotazu z tohoto formuláře Vámi vybranému inzerentovi a zpětného kontaktování mé osoby. Osobní údaje bude správce zpracovávat manuálně i automaticky přímo prostřednictvím svých zaměstnanců. Informace předané tímto formulářem budou uloženy v databázi správce maximálně po dobu 10 let. Odvolání souhlasu s uložením a zpracováním poskytnutých dat lze e-mailem na info@videobydleni.cz. V případě podezření na neoprávněné použití Vámi poskytnutých údajů máte právo předat podnět k šetření Úřadu pro ochranu osobních údajů. Více informací
Chystáte se prodat nemovitost?
Pomůžeme Vám!

Inzerát si prohlédlo 3 lidí

Prodejce

Ing. Hana Vaculíková

Ing. Hana Vaculíková

Hlídací pes

Chcete dostávat emailem podobné nabídky prodeje pozemků v Veverských Knínicích?

Podobné nemovitosti


Nevyhovuje Vám typ pozemku? Podívejte se na jiné kategorie pozemků.


Vybrané články z našeho blogu