Remax Power 2

Prodej rodinného domu, Rožmitál pod Třemšínem, Čelakovské-Rajské, 200 m2 (ID: 4079774)

Čelakovské-Rajské, Rožmitál pod Třemšínem

11 950 000 Kč HYPOTÉKA od 53 409 Kč /za měsíc

(včetně provize RK)

Prémioví partneři v Rožmitále pod Třemšínem

Revize elektrických zařízení

Informace k domu

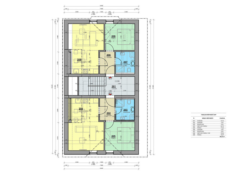
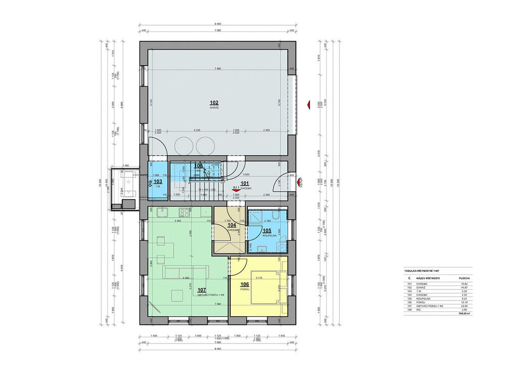
Investiční příležitost 3 moderní byty 2+kk s garáží v novostavbě u centra Rožmitálu p. Třemšínem

Hledáte stabilní investici do nemovitostí? Chcete koupit výnosový objekt s okamžitým příjmem? Pak vás tato nabídka zaujme.

Exkluzivně nabízíme prodej novostavby z roku 2024 se třemi samostatnými bytovými jednotkami o dispozici 2+kk, které jsou aktuálně všechny pronajaty slušným nájemníkům. Součástí objektu je také prostorná garáž (cca 45 m²) a kompletní technické zázemí.

Hlavní přednosti nemovitosti:

3 samostatné byty 2+kk – každý s plně oddělenými měřiči
Roční výnos z nájmů cca 4 %
Kvalitní novostavba (kolaudace 2024) v památkově chráněné zóně
Energeticky úsporné řešení – tepelné čerpadlo DAIKIN, podlahové topení v celém domě včetně garáže
Podkrovní byty s vyvýšeným spacím patrem, které výrazně zvyšuje užitnou plochu
Připojení na optický internet, elektrickou síť, veřejný vodovod i kanalizaci
Nízké provozní náklady a precizně provedené technické řešení (rozvody z technické místnosti, samostatné odečty)

Konstrukce a materiály:

Zděná stavba z cihel HELUZ 440
Prefabrikované stropy GOLDBECK
Dřevěná okna s trojsklem, střešní okna ROTO
Lokalita nabízí příjemné bydlení v klidné části Rožmitálu pod Třemšínem, zároveň však v docházkové vzdálenosti do centra města.

Ideální volba pro investora:
Vše připraveno k okamžitému převzetí. Nemovitost již generuje pravidelný měsíční příjem a nevyžaduje žádné další investice. Vhodné jak pro zkušené investory, tak pro ty, kteří chtějí začít budovat své realitní portfolio.

Možnost zajištění výhodného financování.

Parametry domu

Cena
11 950 000 Kč Spočítat hypotéku
Poznámka k ceně
včetně provize RK
Aktualizováno
11. 3. 2026
Adresa
Čelakovské-Rajské, Rožmitál pod Třemšínem
ID
21
Stavba
Cihlová
Stav objektu
Novostavba
Vybaveno
Ne
Druh objektu
Samostatný
Lokalita objektu
Klidná část obce
Užitná plocha
200 m2
Plocha pozemku
151 m2
Třída energetické náročnosti
C - Úsporná

Kontaktovat makléře

Realitní kancelář

KOFAREAL

Milínská 134, Příbram

Chystáte se prodat nemovitost?
Pomůžeme Vám!

Máte zájem o tento dům?

Tímto, v souladu s nařízením Evropského parlamentu a Rady (EU) 2016/679, v platném znění, prohlašuji, že mi je alespoň 16 let a uděluji tak svůj souhlas se zpracováním zadaných údajů (jméno, telefon, e-mail, ip adresa) společnosti B3 Technology, s.r.o., IČ: 07330600, se sídlem Novostavby 126/23, 435 11 Lom (správce dat), za účelem předání dotazu z tohoto formuláře Vámi vybranému inzerentovi a zpětného kontaktování mé osoby. Osobní údaje bude správce zpracovávat manuálně i automaticky přímo prostřednictvím svých zaměstnanců. Informace předané tímto formulářem budou uloženy v databázi správce maximálně po dobu 10 let. Odvolání souhlasu s uložením a zpracováním poskytnutých dat lze e-mailem na info@videobydleni.cz. V případě podezření na neoprávněné použití Vámi poskytnutých údajů máte právo předat podnět k šetření Úřadu pro ochranu osobních údajů. Více informací
Chystáte se prodat nemovitost?
Pomůžeme Vám!

Inzerát si prohlédlo 17 lidí

Prodejce

Ing. Petr Fára

Ing. Petr Fára

Hlídací pes

Chcete dostávat emailem podobné nabídky prodeje rodinných domů v Rožmitále pod Třemšínem?

Top nabídky

Podobné nemovitosti


Nevyhovuje Vám typ domu? Podívejte se na jiné kategorie domů.


Vybrané články z našeho blogu