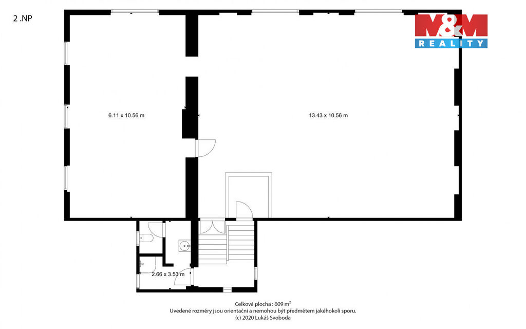
Prodej rodinného domu, Petřvald - Petřvald 2-Petřvaldík, 609 m2

Petřvald 2-Petřvaldík

3 990 000 Kč /za nemovitost HYPOTÉKA od 17 833 Kč /za měsíc
Prémioví partneři v Petřvaldě

Informace k domu

Prodej rodinného domu, 609 m², Petřvald - Petřvaldík

Dobrá cena, dobré místo, dobrý nápad!
Nabízíme Vám exkluzivní nemovitost, která je sice zařazená do sekce rodinného domu, ale má viditelný potenciál nájemního domu, bydlení s restaurací či jiným podnikatelským záměrem.
Iniciativě se meze nekladou.
Budova sloužila dříve jako kulturák s tanečním sálem a místní restaurací, ale je již delší dobu zavřená a nevyužívaná.
Nyní čeká na svého nového majitele a šikovného architekta, který ji provede vkusnou rekonstrukcí, vdechne nápad a nový život tak, aby se stala opět pýchou obce.
Díky svému velkorysému prostoru, zajímavými proporcemi a stylovými stropy naplní sny nejen o luxusním bydlení.
Nachází se rovněž ve strategicky významné lokalitě v blízkosti největšího regionálního letiště v republice a poskytuje rychlé napojení do okolních měst, přičemž stále obklopená přírodou.
Doporučuji navštívit naše webové stránky, kde dohledáte kompletní fotogalerii, video i půdorysy.
S chutí do toho, půl je hotovo.

Parametry domu

Cena
3 990 000 Kč /za nemovitost Spočítat hypotéku
Aktualizováno
28. 11. 2025
Adresa
Petřvald 2-Petřvaldík
ID
923987
Stavba
Cihlová
Stav objektu
Před rekonstrukcí
Vybaveno
Ne
Druh objektu
Samostatný
Lokalita objektu
Centrum obce
Vlastnictví
Osobní
Užitná plocha
609 m2
Plocha pozemku
531 m2

Kontaktovat makléře

Realitní kancelář

Logo M&M reality

M&M reality

ulice Krakovská 583/9, Praha

Chystáte se prodat nemovitost?
Pomůžeme Vám!

Máte zájem o tento dům?

Tímto, v souladu s nařízením Evropského parlamentu a Rady (EU) 2016/679, v platném znění, prohlašuji, že mi je alespoň 16 let a uděluji tak svůj souhlas se zpracováním zadaných údajů (jméno, telefon, e-mail, ip adresa) společnosti B3 Technology, s.r.o., IČ: 07330600, se sídlem Novostavby 126/23, 435 11 Lom (správce dat), za účelem předání dotazu z tohoto formuláře Vámi vybranému inzerentovi a zpětného kontaktování mé osoby. Osobní údaje bude správce zpracovávat manuálně i automaticky přímo prostřednictvím svých zaměstnanců. Informace předané tímto formulářem budou uloženy v databázi správce maximálně po dobu 10 let. Odvolání souhlasu s uložením a zpracováním poskytnutých dat lze e-mailem na info@videobydleni.cz. V případě podezření na neoprávněné použití Vámi poskytnutých údajů máte právo předat podnět k šetření Úřadu pro ochranu osobních údajů. Více informací
Chystáte se prodat nemovitost?
Pomůžeme Vám!

Inzerát si prohlédlo 13 lidí

Prodejce

Lukáš Svoboda

Lukáš Svoboda

Hlídací pes

Chcete dostávat emailem podobné nabídky prodeje rodinných domů v Petřvaldě (okr. Nový Jičín)?

Top nabídky

Podobné nemovitosti


Nevyhovuje Vám typ domu? Podívejte se na jiné kategorie domů.


Vybrané články z našeho blogu