Prodej bytu 3+kk, Čachrov, 115 m2 (ID: 4080738)

Čachrov, Javorná

Cena na vyžádání /za nemovitost Získejte výhodnou HYPOTÉKU
Prémioví partneři v Čachrově

Podlahy

Stěhovací služby

Informace k bytu

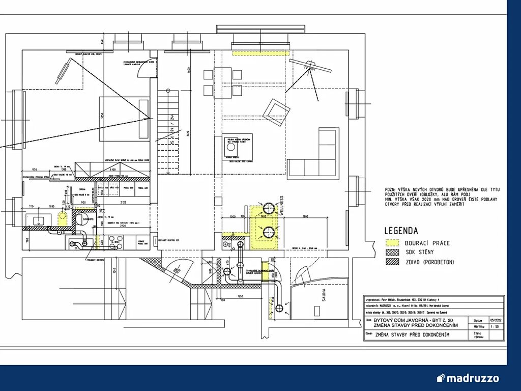
Nabízíme Vám mezonetový byt 3+kk o velikosti 114,53 m² a s balkonem o celkové výměře 4,7 m² v 3NP v novostavbě projektu Apartmánový dům Javorná na Šumavě. Jedná se o nedokončený byt, ve kterém je nutné dokončit interiérové práce, zejména podlahy, malby aj. což dává možnost kompletní úpravy interiéru dle vašich preferencí.

Projekt na hranici CHKO Šumava se snaží o to, aby svým obyvatelům poskytl co nejvíce z kvalit, které lokalita nabízí. Jejich architektonické řešení navazuje na tradiční lokální motivy tvarové i materiálové. Přitom ale nabízejí soudobý standard bydlení a vybavení.

Jedná se o největší byt s nejvelkorysejším výhledem na šumavské kopce.

V ceně je sklepní kóje a venkovní parkovací stání. Areál je oplocen pro vaše maximální soukromí.

K apartmánu lze dokoupit tyto pozemky:

pozemek parc.č. 352/6, výměra pozemku 2.327 m2,
podíl na pozemku 100%
pozemek parc.č. 352/38, výměra pozemku 373 m2,
podíl na pozemku 100%

Všechny tyto pozemky jsou na fotografii označeny žlutou barvou.

pozemek parc.č. 352/16, výměra pozemku 233 m2,
podíl na pozemku 7,28%
pozemek parc.č. 352/17, výměra pozemku 473 m2,
podíl na pozemku 7,28%
pozemek parc.č. 352/33, výměra pozemku 1.104 m2,
podíl na pozemku 51,85 %
pozemek parc.č. 352/34, výměra pozemku 1.355 m2,
podíl na pozemku 7,28%


Všechny tyto pozemky jsou na fotografii označeny světle hnědou barvou.

V případě zájmu nás neváhejte kontaktovat.

Parametry bytu

Cena
Cena na vyžádání Spočítat hypotéku
Aktualizováno
23. 10. 2025
Adresa
Čachrov, Javorná
Stavba
Dřevěná
Stav objektu
Novostavba
Patro
3.
Vlastnictví
Osobní
Užitná plocha
115 m2
Balkon

Kontaktovat makléře

Realitní kancelář

MADRUZZO, a.s.

Hlavní třída 261/116, Mariánské Lázně

Chystáte se prodat nemovitost?
Pomůžeme Vám!

Máte zájem o tento byt?

Tímto, v souladu s nařízením Evropského parlamentu a Rady (EU) 2016/679, v platném znění, prohlašuji, že mi je alespoň 16 let a uděluji tak svůj souhlas se zpracováním zadaných údajů (jméno, telefon, e-mail, ip adresa) společnosti B3 Technology, s.r.o., IČ: 07330600, se sídlem Novostavby 126/23, 435 11 Lom (správce dat), za účelem předání dotazu z tohoto formuláře Vámi vybranému inzerentovi a zpětného kontaktování mé osoby. Osobní údaje bude správce zpracovávat manuálně i automaticky přímo prostřednictvím svých zaměstnanců. Informace předané tímto formulářem budou uloženy v databázi správce maximálně po dobu 10 let. Odvolání souhlasu s uložením a zpracováním poskytnutých dat lze e-mailem na info@videobydleni.cz. V případě podezření na neoprávněné použití Vámi poskytnutých údajů máte právo předat podnět k šetření Úřadu pro ochranu osobních údajů. Více informací
Chystáte se prodat nemovitost?
Pomůžeme Vám!

Inzerát si prohlédlo 0 lidí

Prodejce

Robert Vaněk

Robert Vaněk

Hlídací pes

Chcete dostávat emailem podobné nabídky prodeje bytů 3+kk v Čachrově?

Podobné nemovitosti


Nevyhovuje Vám typ bytu? Podívejte se na jiné kategorie bytů.


Vybrané články z našeho blogu