Prodej bytu 1+1, Pula, Chorvatsko, 17 m2

Pula

Rezervováno
77 000 € /za nemovitost
Prémioví partneři

Informace k bytu

Istrie, riviéra Pula / Fažana, apartmán v blízkostí pláží.

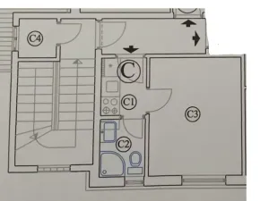
Prodáváme pěkně zařízený apartmán typu studio, v prvním patře menší budovy v menší obci Štinjan, umístěné mezi Pulou a Fažanou.

Jedná se o menší budovu novější výstavby s celkem 4 byty, v klidné lokalitě a blízkostí pláží.
V přízemí je jeden větší apartmán, v prvním patře se celkem nachází tři menší byty se společnou chodbou.

Tento apartmán je velikosti 17,15 m2 a skládá se z samostatného prostoru s kuchyňským koutem ( 2,64 m2 ), koupelny ( 2,56 m2 ) a pokoj/ ložnice ( 11,20 m2 ).
K apartmánu náleží také úložný prostor vedle schodiště v prvním patře 1,48 m2.

V stejném patře, se prodává také apartmán 2kk, obytné plochy 35 m² a skládá se z obývacího pokoje s kuchyní a jídelnou, ložnice, koupelny a balkonu s krásným výhledem do zeleně a k moři.
Apartmánu také náleží skladovací prostor ve sklepě budovy, velikosti 12 m2.
Cena tohoto apartmánu je 123 000 eur.

Tyto byty mají k dispozici společný přístřešek s grilovací zónou.
Parkování je před budovou.

Tyto dva apartmány jsou rozdělené na samostatné jednotky, i papírově v katastru, ale můžou se propojit do jednoho většího aparmánu. V případě koupě obou apartmánů se celková cena upraví o jistou slevu.
Každý apartmán má kategorizaci ( povolení k pronájmu ) a úspěšně se pronajímaji.
Prodávají se z důvodu další investice majitele.

Poloha nabízí klidné okolí, první pláže jsou vzdálené 800 m, zkratkou chůze 7-8 min, nebo autem silnicí 2,5 km, volné parkování přímo u pláží.
Pěší stezka podél pobřeží, s výhledem na nádherný Národní park Brijuni, vede od Puly, přes Štinjan, Valbandon, Fažanu až po Peroj, včetně veacxh barů, rekreačních a zábavných zařízení s veškerou doprovodnou infrastrukturou. Pobřeží zkrášlují borovice nabízející stín během horkých letních dnů.
Centrum letoviska Fažana je ve vzdálenosti 4,5 km, antická Pula 7, 5 km, a je dostupná taktéž městskou autobusovou dopravou, kde je mezinárodní autobusové a železniční nádraží, čímž je zaručena vynikající dostupnost z České republiky. Letiště Pula 11 km.

Jedná se o dobrou příležitost vlastní, investiční nemovitosti u moře.

Pro další informace a domluvu prohlídky jsme k dispozici.

Specializujeme se na prodej nemovitostí na atraktivních lokalitách u moře i ve vnitrozemí Chorvatska, zejména v oblastí Istrie.

V Chorvatsku a Istrii jsme žili 19 let, kde jsme pracovali v oboru realit a cestovního ruchu, čím zaručujeme znalost destinace a profesionální přístup.

Odbornost je zaručená dlouhaletou spoupráci s partnerskou realitní kanceláří z Chorvatska, přítomnou na trhu nemovitostí přes 20 let. Poskytujeme veškeré služby při zprostředkování koupě a prodeje nemovitostí, včetně vyhotovení OIB a sestavení smluv, v souladu s legislativou Chorvatska.

Klienty doprovázíme ve všech krocích, od prvního kontaktu, dále v procesu sestavení optimální nabídky, při výběru na prohlídkách nemovitsotí, komunikujeme při sestavení Smluv a během koupě nemovitostí, asistujeme při podpisu a ověření Smluv u notáře a v komunikaci s Katastrem, přítomní jsme samozřejmě u předání klíčů, pomůžeme taktéž s převodem energíí.
Pro naše klienty jsou ceny nemovitostí identické jako při koupi přímo u agentury/developera v Chorvatsku, díky dlouhaleté spolupráci můžeme umožnit koupi bez dodatečných navýšení za služby v českém jazyce.

Pro více informací zavolejte, domluvíme schůzku přímo u moře nebo v Praze, promluvíme si v českém nebo také v chorvatském jazyce.

Vaši průvodcem Chorvatskem a při koupi nemovitostí,
Byty Domy Chorvatsko
Tamara Ružić, DiS

Parametry bytu

Stav
Rezervováno
Cena
77 000 € /za nemovitost
Aktualizováno
23. 10. 2025
Adresa
Pula
ID
24249
Stavba
Cihlová
Stav objektu
Velmi dobrý
Patro
2.
Vlastnictví
Osobní
Užitná plocha
17 m2

Kontaktovat makléře

Máte zájem o tento byt?

Tímto, v souladu s nařízením Evropského parlamentu a Rady (EU) 2016/679, v platném znění, prohlašuji, že mi je alespoň 16 let a uděluji tak svůj souhlas se zpracováním zadaných údajů (jméno, telefon, e-mail, ip adresa) společnosti B3 Technology, s.r.o., IČ: 07330600, se sídlem Novostavby 126/23, 435 11 Lom (správce dat), za účelem předání dotazu z tohoto formuláře Vámi vybranému inzerentovi a zpětného kontaktování mé osoby. Osobní údaje bude správce zpracovávat manuálně i automaticky přímo prostřednictvím svých zaměstnanců. Informace předané tímto formulářem budou uloženy v databázi správce maximálně po dobu 10 let. Odvolání souhlasu s uložením a zpracováním poskytnutých dat lze e-mailem na info@videobydleni.cz. V případě podezření na neoprávněné použití Vámi poskytnutých údajů máte právo předat podnět k šetření Úřadu pro ochranu osobních údajů. Více informací
Chystáte se prodat nemovitost?
Pomůžeme Vám!

Inzerát si prohlédlo 1 lidí

Prodejce

Tamara Ružić

Tamara Ružić

Hlídací pes

Chcete dostávat emailem podobné nabídky prodeje bytů 1+1?

Podobné nemovitosti


Nevyhovuje Vám typ bytu? Podívejte se na jiné kategorie bytů.


Vybrané články z našeho blogu