Prodej bytu 3+kk, Praha - Hostivař, náměstí Přátelství, 89 m2 (ID: 4080979)

náměstí Přátelství, Praha, Hostivař

11 995 000 Kč /za nemovitost HYPOTÉKA od 53 610 Kč /za měsíc
Prémioví partneři v Praze 10

Stěhovací služby

Výkup a prodej starého nábytku

Informace k bytu

Prodám krásný a zrekonstruovaný byt 3+kk v osobním vlastnictví, v cihlovém domě, navíc s vlastním parkovacím stáním v podzemních garážích a sklepem – obojí je již zahrnuto v ceně.

- prostorné 3+kk s praktickou dispozicí
- 2 balkony, každý orientován na opačnou stranu
- garáž v ceně
- sklep v ceně

Byt prošel čerstvou modernizací a zatím v něm nikdo nebydlel.
Vypadá přesně tak, jak vidíte na fotografiích – nejsou to vizualizace.

Nachází se ve 3. patře s výtahem.

Na nového majitele čeká nová kuchyňská linka na míru od českého truhláře, včetně spotřebičů (značková elektrická trouba, indukční deska, digestoř, osvětlení). Dominantou kuchyně je prostorný ostrůvek přístupný z obou stran.

Součástí rekonstrukce je:
- nové obklady z velkoformátového italského obkladu,
- nová sanita (vana, umyvadlo, toaleta),
- elektrické podlahové topení v koupelně,
- kompletní výmalba stěn,
- nová vinylová podlahová krytina,
- kuchyňská linka na míru.

Před domem lze pohodlně zaparkovat, hlavní výhodou je však vlastní parkovací stání v podzemním podlaží.
Kousek od domu se nachází veškerá občanská vybavenost – školy, školky, kavárna i supermarket Albert.

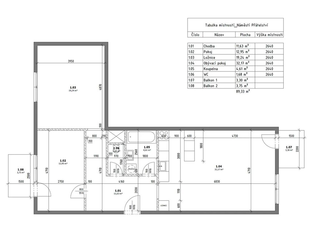
Dispozice bytu 3+kk:
- obývací pokoj s kuchyňským koutem (32,17 m²)
- ložnice (19,24 m²)
- pokoj (12,95 m²)
- vstupní chodba (11,63 m²)
- koupelna s vanou a prostorem pro pračku (4,6 m²)
- WC (1,6 m²)
- 2× balkon
- sklep (2,35 m²)

Charakteristika bytového domu:
- dům je velmi dobře spravován SVJ s důrazem na klidné a bezpečné bydlení
- dům má výtah
- nízké provozní náklady

Budu se těšit na osobní setkání při prohlídce.
Neváhejte mi také zavolat nebo napsat s jakýmkoli doplňujícím dotazem.

Byt prodávám jako přímý majitel, takže neplatíte žádnou provizi realitní kanceláři.

Parametry bytu

Cena
11 995 000 Kč /za nemovitost Spočítat hypotéku
Aktualizováno
2. 11. 2025
Adresa
náměstí Přátelství, Praha, Hostivař
ID
Náměstí přátelství
Stavba
Cihlová
Stav objektu
Velmi dobrý
Patro
4.
Vlastnictví
Osobní
Užitná plocha
89 m2
Třída energetické náročnosti
C - Úsporná
Balkon
Garáž
Sklep

Kontaktovat makléře

Realitní kancelář

Pretty Good Company

Rohanské nábřeží 671/15, Praha

Chystáte se prodat nemovitost?
Pomůžeme Vám!

Máte zájem o tento byt?

Tímto, v souladu s nařízením Evropského parlamentu a Rady (EU) 2016/679, v platném znění, prohlašuji, že mi je alespoň 16 let a uděluji tak svůj souhlas se zpracováním zadaných údajů (jméno, telefon, e-mail, ip adresa) společnosti B3 Technology, s.r.o., IČ: 07330600, se sídlem Novostavby 126/23, 435 11 Lom (správce dat), za účelem předání dotazu z tohoto formuláře Vámi vybranému inzerentovi a zpětného kontaktování mé osoby. Osobní údaje bude správce zpracovávat manuálně i automaticky přímo prostřednictvím svých zaměstnanců. Informace předané tímto formulářem budou uloženy v databázi správce maximálně po dobu 10 let. Odvolání souhlasu s uložením a zpracováním poskytnutých dat lze e-mailem na info@videobydleni.cz. V případě podezření na neoprávněné použití Vámi poskytnutých údajů máte právo předat podnět k šetření Úřadu pro ochranu osobních údajů. Více informací
Chystáte se prodat nemovitost?
Pomůžeme Vám!

Inzerát si prohlédlo 16 lidí

Prodejce

Gabriel Němec

Gabriel Němec

Hlídací pes

Chcete dostávat emailem podobné nabídky prodeje bytů 3+kk v Praze 10?

Podobné nemovitosti


Nevyhovuje Vám typ bytu? Podívejte se na jiné kategorie bytů.


Vybrané články z našeho blogu