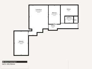
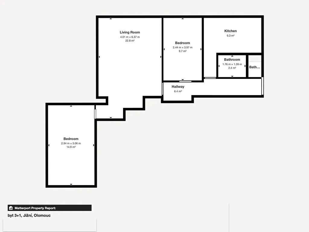
Prodej bytu 3+1, Olomouc, Jižní, 61 m2 (ID: 4080993)

Jižní, Olomouc, Slavonín

4 800 000 Kč /za nemovitost HYPOTÉKA od 21 453 Kč /za měsíc

(cena je včetně provize RK a právního servisu)

Prémioví partneři v Olomouci

Informace k bytu

Vážení klienti,

hledáte byt s dobrou dispozicí a potenciálem pro rekonstrukci podle vlastních představ? Máme pro Vás zajímavou nabídku – cihlový byt v osobním vlastnictví o dispozici 3+1, který se nachází v nejvyšším, 5. patře bytového domu v městské části Olomouc–Slavonín, na klidné ulici Jižní.

Byt má výměru 61,46 m² a je v původním stavu, ideální pro rekonstrukci. Zásadní výhodou je velmi praktické dispoziční řešení, kdy je ložnice chytře umístěna za obývacím pokojem – nabízí tak klid a soukromí i při každodenním provozu domácnosti.

Bytový dům je kompletně zrekonstruovaný – nová plastová okna, zateplená fasáda, opravené stupačky a upravené společné prostory. K bytu náleží sklepní kóje.

Parkování je možné přímo před domem, a navíc je k bytu možné dokoupit vlastní garáž, což je v této lokalitě výrazné plus.

Okolí nabízí výbornou občanskou vybavenost – v pěší dostupnosti je škola, zastávka MHD, obchody, restaurace i sportovní areál. Pro milovníky přírody je ideální možnost procházek kolem rybníku Hamrys, který se nachází jen pár minut chůze od domu.

Byt je k dispozici po dohodě s aktuálním majitelem a je bez právních vad. V případě zájmu Vám rádi pomůžeme také s návrhem a realizací rekonstrukce na míru.

Zaujala Vás tato nabídka? Neváhejte a domluvte si prohlídku – těšíme se na Vás!

Parametry bytu

Cena
4 800 000 Kč /za nemovitost Spočítat hypotéku
Poznámka k ceně
cena je včetně provize RK a právního servisu
Aktualizováno
24. 10. 2025
Adresa
Jižní, Olomouc, Slavonín
ID
2510JIZ
Stavba
Cihlová
Stav objektu
Dobrý
Patro
5.
Lokalita objektu
Sídliště
Vlastnictví
Osobní
Užitná plocha
61 m2
Podlahová plocha
64 m2
Třída energetické náročnosti
C - Úsporná
Ukazatel energetické náročnosti
123 kWh/m2 za rok
Elektřina
230V
Odpad
Veřejná kanalizace
Komunikace
Asfaltová
Telekomunikace
Telefon, Internet
Doprava
Dálnice, Silnice, MHD, Autobus
Voda
Vodovod
Topné těleso
Radiátory
Zdroj topení
Ústřední dálkové
Zdroj teplé vody
Centrální dálkový ohřev
Garáž
Sklep

Kontaktovat makléře

Máte zájem o tento byt?

Tímto, v souladu s nařízením Evropského parlamentu a Rady (EU) 2016/679, v platném znění, prohlašuji, že mi je alespoň 16 let a uděluji tak svůj souhlas se zpracováním zadaných údajů (jméno, telefon, e-mail, ip adresa) společnosti B3 Technology, s.r.o., IČ: 07330600, se sídlem Novostavby 126/23, 435 11 Lom (správce dat), za účelem předání dotazu z tohoto formuláře Vámi vybranému inzerentovi a zpětného kontaktování mé osoby. Osobní údaje bude správce zpracovávat manuálně i automaticky přímo prostřednictvím svých zaměstnanců. Informace předané tímto formulářem budou uloženy v databázi správce maximálně po dobu 10 let. Odvolání souhlasu s uložením a zpracováním poskytnutých dat lze e-mailem na info@videobydleni.cz. V případě podezření na neoprávněné použití Vámi poskytnutých údajů máte právo předat podnět k šetření Úřadu pro ochranu osobních údajů. Více informací
Chystáte se prodat nemovitost?
Pomůžeme Vám!

Inzerát si prohlédlo 6 lidí

Prodejce

Ing. Lukáš Tomášek

Ing. Lukáš Tomášek

Hlídací pes

Chcete dostávat emailem podobné nabídky prodeje bytů 3+1 v Olomouci?

Podobné nemovitosti


Nevyhovuje Vám typ bytu? Podívejte se na jiné kategorie bytů.


Vybrané články z našeho blogu