Prodej rodinného domu, Zájezd, 360 m2 (ID: 4081152)

Zájezd

Cena na vyžádání /za nemovitost Získejte výhodnou HYPOTÉKU

(Cena k jednání u RK)

Prémioví partneři v Zájezdu

Informace k domu

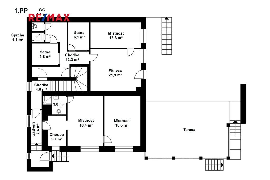
Zajímavá cena - Nabízím k prodeji veliký rodinný dům v Zájezdu u Buštěhradu. Třípatrový dům s půdorysem 140 m2 těsně před dokončením. Ve spodním patře jsou 3 menší byty s technickým zázemím domu. V prvním patře je velkorysý obývací pokoj s kuchyní, 2 větší pokoje, koupelna, 2 balkóny a vstup na terasu.
Ve druhém patře je prostorná pracovna, ložnice, 2 pokoje, 2 koupelny, 2 balkóny. Ve štítu je půda, kde je možné vybudovat další 2 místnosti, případně prostorný ateliér.
Celý dům má železobetonové základy a konstrukci. Majitel má veškerou fotodokumentaci stavby domu.
Dům je vhodný pro vícegenerační rodinu, nebo je možné využít i jako penzion.
Lokalita Zájezd leží 10 minut od letiště nebo Kladna, 15 minut od Prahy s přímým napojením na dálnici D7. V Zájezdu je menší ZOO s přátelskou, rodinnou atmosférou. ZOO je na okraji obce s vlastním parkovištěm mimo obec, takže neruší klid pro bydlení.
V obci Zájezd je obecní úřad, hostinec, kaple Rosa Mystica, sportovní hřiště a dětské hřiště.
V okolí jsou turistické zajímavosti, především ZOO park Zájezd, hrad Okoř, poutní stezky a další cíle pro pěší, cyklistické, ale i moto toulky.
Informace o ceně v realitní kanceláři.
Pro prohlídku a více informací mě kontaktujte na 739 899 990.

Parametry domu

Cena
Cena na vyžádání Spočítat hypotéku
Poznámka k ceně
Cena k jednání u RK
Aktualizováno
19. 12. 2025
Adresa
Zájezd
ID
0318-NP00121
Stavba
Smíšená
Stav objektu
Velmi dobrý
Vybaveno
Částečně
Druh objektu
Samostatný
Lokalita objektu
Klidná část obce
Užitná plocha
360 m2
Zastavěná plocha
139 m2
Podlahová plocha
500 m2
Plocha pozemku
1700 m2
Plocha zahrady
1200 m2
Třída energetické náročnosti
G - Mimořádně nehospodárná
Elektřina
230V, 400V
Odpad
Septik, Jímka
Komunikace
Asfaltová
Doprava
Silnice, Autobus
Voda
Vodovod
Topné těleso
Podlahové vytápění, Krb
Zdroj topení
Tepelné čerpadlo
Zdroj teplé vody
Plynový kondenzační kotel
Parkování

Kontaktovat makléře

Máte zájem o tento dům?

Tímto, v souladu s nařízením Evropského parlamentu a Rady (EU) 2016/679, v platném znění, prohlašuji, že mi je alespoň 16 let a uděluji tak svůj souhlas se zpracováním zadaných údajů (jméno, telefon, e-mail, ip adresa) společnosti B3 Technology, s.r.o., IČ: 07330600, se sídlem Novostavby 126/23, 435 11 Lom (správce dat), za účelem předání dotazu z tohoto formuláře Vámi vybranému inzerentovi a zpětného kontaktování mé osoby. Osobní údaje bude správce zpracovávat manuálně i automaticky přímo prostřednictvím svých zaměstnanců. Informace předané tímto formulářem budou uloženy v databázi správce maximálně po dobu 10 let. Odvolání souhlasu s uložením a zpracováním poskytnutých dat lze e-mailem na info@videobydleni.cz. V případě podezření na neoprávněné použití Vámi poskytnutých údajů máte právo předat podnět k šetření Úřadu pro ochranu osobních údajů. Více informací
Chystáte se prodat nemovitost?
Pomůžeme Vám!

Inzerát si prohlédlo 13 lidí

Prodejce

Lukáš Hrubý

Lukáš Hrubý

Hlídací pes

Chcete dostávat emailem podobné nabídky prodeje rodinných domů v Zájezdu?

Podobné nemovitosti


Nevyhovuje Vám typ domu? Podívejte se na jiné kategorie domů.


Vybrané články z našeho blogu