Prodej rodinného domu, Jilemnice, 172 m2

Jilemnice

16 900 000 Kč /za nemovitost HYPOTÉKA od 75 533 Kč /za měsíc
Prémioví partneři v Jilemnici

Rekonstrukce

Úklidové služby

Informace k domu

Prodej novostavby prostorného rodinného domu v klidné části Jilemnice – exkluzivní nabídka
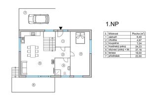
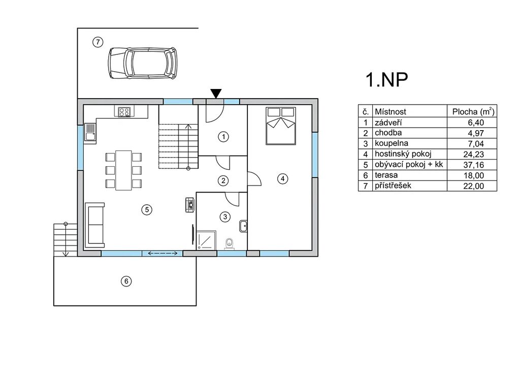
Nabízíme k prodeji nově postavený rodinný dům s dispozicí 6+kk, nacházející se v tiché a vyhledávané lokalitě města Jilemnice.
Dům nabízí celkovou užitnou plochu 172 m² a je navržen tak, aby poskytoval komfortní a moderní bydlení pro vícečlennou rodinu.
Kuchyně s jídelnou a obývacím pokojem tvoří jeden elegantní, světlý a funkční celek, který je ideálním centrem rodinného života.
Čtyři ložnice a pracovna umožňují přizpůsobit využití prostoru podle individuálních potřeb – ať už jde o dětské pokoje, hostinský pokoj či domácí kancelář.
Součástí domu je kryté parkovací stání (22 m²), prostorný sklep pro uložení zahradní techniky a vybavení a podkroví, které lze využít jako další úložný prostor.
K odpočinku vybízí terasa o rozloze 18 m², orientovaná do klidné a slunné zahrady.
Nemovitost stojí na rozsáhlém, udržovaném pozemku o velikosti 1 025 m², který nabízí dostatek prostoru pro zahradničení, relaxaci i rodinné aktivity.
Díky umístění v klidné části města zde majitelé ocení soukromí, klid a krásné výhledy na okolní přírodu Podkrkonoší.

Technické parametry
• Dispozice: 6+kk
• Užitná plocha domu: 172 m²
• Plocha pozemku: 1 025 m²
• Terasa: 18 m²
• Přístřešek (kryté parkování): 22 m²
• Elektřina: 230 V / 400 V
• Vytápění: Lokální elektrické, ústřední dálkové podlahové
• Zdroj vytápění: Elektrokotel
• Ohřev vody: Elektrický bojler
• Vytápěcí tělesa: Podlahové topení
• Komín Schiedel s keramickou vložkou s přípravou na připojení krbové vložky s externím přisáváním vzduchu
• Krytina na podlaze – vinyl
• Schodiště – jasanové masivní dřevo

Lokalita
Město Jilemnice, často označované jako „brána Krkonoš“, nabízí ideální kombinaci klidného prostředí a plné občanské vybavenosti.
V místě najdete školy, školky, zdravotnická zařízení, obchody i služby.
Zároveň okolí poskytuje široké možnosti rekreace a sportu – turistické trasy, cyklostezky, lyžařské areály či běžecké tratě.
Za návštěvu stojí také zámek s Krkonošským muzeem, sportovní areály, plavecký bazén nebo půvabné historické náměstí.
Tento dům představuje ideální volbu pro rodinu, která hledá moderní, prostorné a klidné bydlení v srdci Podkrkonoší.
Kombinuje promyšlené dispoziční řešení, komfortní zázemí a atraktivní lokalitu, která spojuje výhody městského života s krásou okolní přírody.

Parametry domu

Cena
16 900 000 Kč /za nemovitost Spočítat hypotéku
Aktualizováno
25. 10. 2025
Adresa
Jilemnice
Stavba
Cihlová
Stav objektu
Novostavba
Užitná plocha
172 m2
Plocha pozemku
1025 m2
Třída energetické náročnosti
B - Velmi úsporná
Elektřina
230V, 400V
Odpad
Veřejná kanalizace
Komunikace
Asfaltová
Telekomunikace
Kabelové rozvody
Voda
Vodovod
Zdroj topení
Elektrokotel
Zdroj teplé vody
Bojler - elektro
Parkování

Kontaktovat makléře

Máte zájem o tento dům?

Tímto, v souladu s nařízením Evropského parlamentu a Rady (EU) 2016/679, v platném znění, prohlašuji, že mi je alespoň 16 let a uděluji tak svůj souhlas se zpracováním zadaných údajů (jméno, telefon, e-mail, ip adresa) společnosti B3 Technology, s.r.o., IČ: 07330600, se sídlem Novostavby 126/23, 435 11 Lom (správce dat), za účelem předání dotazu z tohoto formuláře Vámi vybranému inzerentovi a zpětného kontaktování mé osoby. Osobní údaje bude správce zpracovávat manuálně i automaticky přímo prostřednictvím svých zaměstnanců. Informace předané tímto formulářem budou uloženy v databázi správce maximálně po dobu 10 let. Odvolání souhlasu s uložením a zpracováním poskytnutých dat lze e-mailem na info@videobydleni.cz. V případě podezření na neoprávněné použití Vámi poskytnutých údajů máte právo předat podnět k šetření Úřadu pro ochranu osobních údajů. Více informací
Chystáte se prodat nemovitost?
Pomůžeme Vám!

Inzerát si prohlédlo 5 lidí

Prodejce

Jitka Macková

Jitka Macková

Hlídací pes

Chcete dostávat emailem podobné nabídky prodeje rodinných domů v Jilemnici?

Podobné nemovitosti


Nevyhovuje Vám typ domu? Podívejte se na jiné kategorie domů.


Vybrané články z našeho blogu