Prodej rodinného domu, Příbram, Q. M. Vyskočila, 215 m2 (ID: 4081504)

Q. M. Vyskočila, Příbram II

Cena na vyžádání /za nemovitost Získejte výhodnou HYPOTÉKU

(K jednání)

Prémioví partneři v Příbrami

Revize elektrických zařízení

Informace k domu

Nabízíme k prodeji rodinný dům v klidné části Příbrami, který se může stát ideálním domovem pro vás a vaši rodinu.

Tato nemovitost je ideální volbou pro větší rodinu, která hledá komfortní bydlení s dostatkem prostoru, dvougenerační bydlení, popřípadě k bydlení spojené s podnikáním, popřípadě upravit na více bytových jednotek.

Dům je postaven jako cihlová stavba v dobrém stavu, což zaručuje jeho dlouhou životnost a kvalitní izolaci.


Rodinný dům s terasou, garáží, zahradou v klidné a velmi žádané lokalitě města Příbram, která navazuje na centrum starého města Příbram.

Suterén je přístupný i z přízemí a je vybudován pod celým domem. Příjezd je do něj zajištěn ze zahrady - garáží na níž navazuje několik místnosti přístupné z chodby, které lze využít libovolně - skladovací prostory, dílna, posilovna, kanceláře, popřípadě k podnikatelské činnosti.

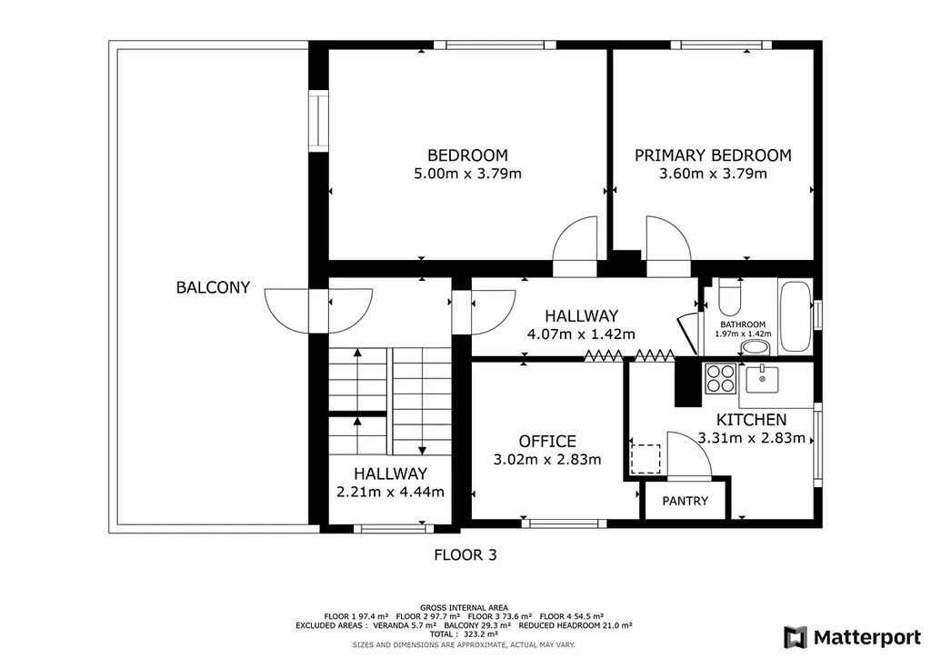
Přízemí (1.NP) je po příchodu z ulice veranda, dále pak schodiště, vstupní hala, chodba z níž je vstup do třech místností + koupelna s toaletou.

1. patro (2.NP) má dispozičně 3 pokoje + kuchyni, velkou terasu s nádherným výhledem, předsíň, chodbu, koupelnu s WC.

Půda je prostorově velmi zajímavá a její výška nabízí i možnost půdní vestavby - nabízí se možnost pro případného investora který by chtěl rozšířit o další bytový prostor.

Dům je ve velmi dobrém technickém stavu, po kompletní výměně střechy, opravě a zateplení vikýřů, a stříšek, opravě balkonu i výšky zábradlí, kontrole hromosvodu, a jiné.
Dům je do současnosti obývaný, udržovaný a je možné se do něj ihned nastěhovat, popřípadě upravit/renomovat vzhled interiérů a vybavení podle potřeby a nároků kupujícího.

Pěkný pozemek o celkové výměře 605 m², zahrada která není příliš veliká a náročná na údržbu, ale nabízí dostatek místa pro zahradní úpravy, relaxaci či rodinné aktivity.

Jednou z klíčových výhod této nemovitosti je výborná dostupnost - nejrychleji na dálnici.
Pro pěší po okolí, se zelení a možností turistiky, nebo poblíž do centra na autobusové zastávky do Prahy - pid, ale i MHD.
V této části starého města je zástavba rodinných domů a v centru sídlí převážně úřady, obchody, banky, školy a je zde i Oblastní nemocnice Příbram a spoustu jiného jako restaurace a památky, jejíž dominantou je Svatá Hora.

Díky exkluzivnímu zastoupení můžete využít jedinečnou příležitost a stát se vlastníkem této výjimečné nemovitosti.

Pokud Vás dům zaujal, neváhejte nám napsat nebo zavolat a rádi Vám vše ukážeme osobně. Prohlídky jsou možné jak on-line nebo osobně po předchozí domluvě.

Pro více informací, fota, dokumenty k této nemovitosti nebo sjednání prohlídky mě prosím kontaktujte nebo vyplňte níže uvedený formulář.

Parametry domu

Cena
Cena na vyžádání Spočítat hypotéku
Poznámka k ceně
K jednání
Aktualizováno
25. 10. 2025
Adresa
Q. M. Vyskočila, Příbram II
ID
001634
Stavba
Cihlová
Stav objektu
Dobrý
Druh objektu
Samostatný
Lokalita objektu
Klidná část obce
Užitná plocha
215 m2
Plocha pozemku
606 m2
Třída energetické náročnosti
G - Mimořádně nehospodárná
Elektřina
230V
Plyn
Plynovod
Odpad
Veřejná kanalizace
Komunikace
Asfaltová
Doprava
Vlak, Dálnice, Silnice, MHD, Autobus
Voda
Vodovod
Topné těleso
Radiátory
Zdroj topení
Plynový kondenzační kotel
Garáž
Sklep
Parkování

Kontaktovat makléře

Realitní kancelář

Pavel Sokolovski

Hornických učňů 279, Příbram

Chystáte se prodat nemovitost?
Pomůžeme Vám!

Máte zájem o tento dům?

Tímto, v souladu s nařízením Evropského parlamentu a Rady (EU) 2016/679, v platném znění, prohlašuji, že mi je alespoň 16 let a uděluji tak svůj souhlas se zpracováním zadaných údajů (jméno, telefon, e-mail, ip adresa) společnosti B3 Technology, s.r.o., IČ: 07330600, se sídlem Novostavby 126/23, 435 11 Lom (správce dat), za účelem předání dotazu z tohoto formuláře Vámi vybranému inzerentovi a zpětného kontaktování mé osoby. Osobní údaje bude správce zpracovávat manuálně i automaticky přímo prostřednictvím svých zaměstnanců. Informace předané tímto formulářem budou uloženy v databázi správce maximálně po dobu 10 let. Odvolání souhlasu s uložením a zpracováním poskytnutých dat lze e-mailem na info@videobydleni.cz. V případě podezření na neoprávněné použití Vámi poskytnutých údajů máte právo předat podnět k šetření Úřadu pro ochranu osobních údajů. Více informací
Chystáte se prodat nemovitost?
Pomůžeme Vám!

Inzerát si prohlédlo 5 lidí

Prodejce

Pavel Sokolovski

Pavel Sokolovski

Hlídací pes

Chcete dostávat emailem podobné nabídky prodeje rodinných domů v Příbrami?

Top nabídky

Podobné nemovitosti


Nevyhovuje Vám typ domu? Podívejte se na jiné kategorie domů.


Vybrané články z našeho blogu