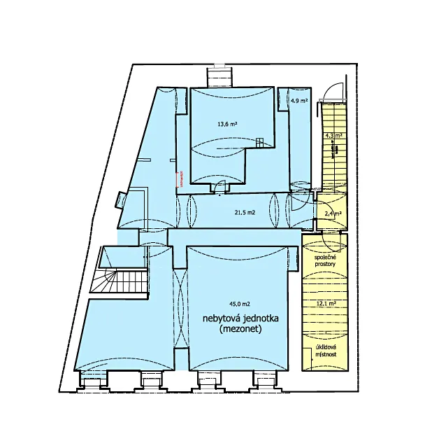
Prodej obchodního prostoru, Praha - Nové Město, Na struze, 150 m2

Na Struze, Praha, Nové Město

16 000 000 Kč /za nemovitost HYPOTÉKA od 71 510 Kč /za měsíc
Prémioví partneři v Praze 1

Stěhovací služby

Výkup a prodej starého nábytku

Informace k nemovitosti

Hledáte komerční prostor ke koupě v centru v lokalitě Prahy 1 ? Prostory jsou aktuálně tržně pronajaté s pasivním příjmem 72.100,- Kč měsíčně. Obchodní prostor mají výlohy do ulice a samostatný vstup.

Prostor je rozdělen na přízemí a suterén. Prodej nemovitosti s yieldem 5,4%. Pro více informací volejte piště.

Parametry nemovitosti

Cena
16 000 000 Kč /za nemovitost Spočítat hypotéku
Aktualizováno
24. 10. 2025
Adresa
Na Struze, Praha, Nové Město
ID
3333
Stavba
Cihlová
Stav objektu
Dobrý
Patro
1. z 5
Užitná plocha
150 m2

Kontaktovat makléře

Realitní kancelář

Tommy Reality, s.r.o.

Václavské náměstí 832/19, Praha, Nové Město

Chystáte se prodat nemovitost?
Pomůžeme Vám!

Máte zájem o tuto nemovistost?

Tímto, v souladu s nařízením Evropského parlamentu a Rady (EU) 2016/679, v platném znění, prohlašuji, že mi je alespoň 16 let a uděluji tak svůj souhlas se zpracováním zadaných údajů (jméno, telefon, e-mail, ip adresa) společnosti B3 Technology, s.r.o., IČ: 07330600, se sídlem Novostavby 126/23, 435 11 Lom (správce dat), za účelem předání dotazu z tohoto formuláře Vámi vybranému inzerentovi a zpětného kontaktování mé osoby. Osobní údaje bude správce zpracovávat manuálně i automaticky přímo prostřednictvím svých zaměstnanců. Informace předané tímto formulářem budou uloženy v databázi správce maximálně po dobu 10 let. Odvolání souhlasu s uložením a zpracováním poskytnutých dat lze e-mailem na info@videobydleni.cz. V případě podezření na neoprávněné použití Vámi poskytnutých údajů máte právo předat podnět k šetření Úřadu pro ochranu osobních údajů. Více informací
Chystáte se prodat nemovitost?
Pomůžeme Vám!

Inzerát si prohlédlo 6 lidí

Prodejce

Tommy Nguyen

Tommy Nguyen

Hlídací pes

Chcete dostávat emailem podobné nabídky prodeje obchodních prostor v Praze 1?

Podobné nemovitosti


Nevyhovuje Vám typ nemovitosti? Podívejte se na jiné kategorie komerčních.


Vybrané články z našeho blogu