Prodej obchodního prostoru, Praha - Nusle, 34 m2

Praha 2

7 000 000 Kč /za nemovitost HYPOTÉKA od 31 286 Kč /za měsíc
Prémioví partneři v Praze 2

Stěhovací služby

Výkup a prodej starého nábytku

Informace k nemovitosti

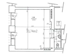
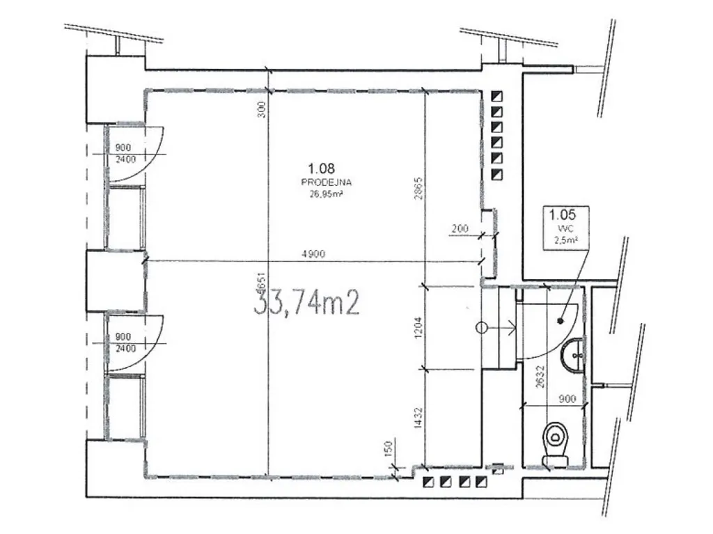
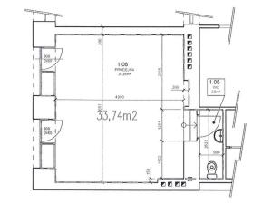
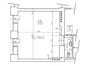
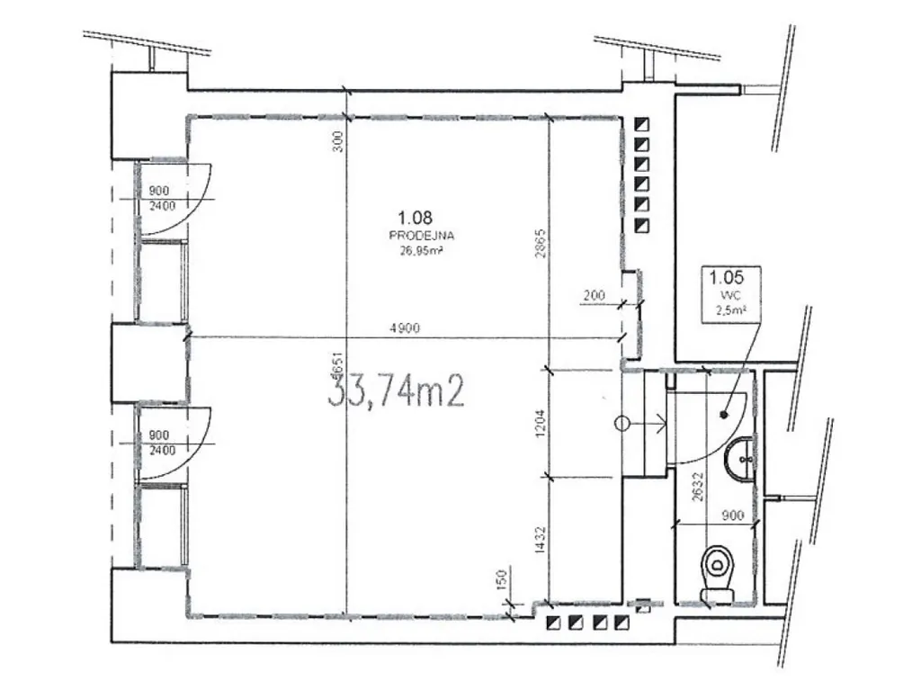
Nabízíme k prodeji kompletně zrekonstruovaný přízemní obchodní prostor o výměře 33,74 m² s dvěma samostatnými vstupy z ulice.
Prostor disponuje velkými prosklenými výlohami, které zajišťují maximální viditelnost, a jsou opatřeny uzamykatelnými bezpečnostními roletami.
Interiér má světlou výšku 3,4 m, což umocňuje pocit prostornosti a vzdušnosti.

Atraktivní lokalita

Obchod se nachází na frekventované ulici Jaromírova v městské části Nusle (Praha 2), tedy v širším centru hlavního města.
Tato adresa zaručuje výbornou viditelnost a stálý pěší provoz, neboť v okolí je hustá rezidenční zástavba a fungují zde další obchody a služby.

Jen minutu chůze od domu je tramvajová zastávka s přímým spojením do centra.

V bezprostřední blízkosti leží oblíbený park Folimanka – vyhledávaná oddechová zóna s hřišti a sportovišti, která denně přiláká mnoho rodin, sportovců i ostatních obyvatel z okolí. Tato stabilní spádová klientela spolu s lokálními rezidenty zajišťuje dostatek potenciálních zákazníků pro jakékoli podnikání.

Pronajaté – ideální pro investici

Prostor je aktuálně pronajat zavedenému kosmetickému studiu, přičemž prodej se realizuje včetně tohoto nájemního vztahu. Nový vlastník tedy získá nemovitost s prověřeným dlouhodobým nájemcem a pravidelným příjmem, což z této nabídky činí velmi atraktivní investici. Od prvního dne tak bude nový majitel inkasovat stabilní výnos, aniž by musel řešit hledání nájemce.

Široké možnosti využití

Díky praktickému dispozičnímu řešení a dvěma vstupům lze prostor snadno rozdělit na klientskou a zázemní část. Vhodný je proto pro různé typy podnikání: skvěle poslouží jako kosmetické studio nebo nehtový salon, kadeřnictví či barber shop, masážní nebo tetovací studio, butik, showroom, ale stejně tak i jako reprezentativní kancelář firmy.

Nemovitost je v osobním vlastnictví a lze ji financovat hypotékou – rádi vám pomůžeme zajistit výhodný úvěr díky spolupráci se všemi bankami na trhu.
Jednotka je bez jakýchkoli právních vad či závazků.
Převod vlastnického práva zajistíme formou advokátní nebo notářské úschovy dle výběru kupujícího, aby celý proces proběhl maximálně bezpečně.

Pokud hledáte reprezentativní komerční prostor či stabilní investici v širším centru Prahy, neváhejte nás kontaktovat pro sjednání prohlídky.

Parametry nemovitosti

Cena
7 000 000 Kč /za nemovitost Spočítat hypotéku
Aktualizováno
24. 10. 2025
Adresa
Praha 2
ID
Beauty_salon
Stavba
Smíšená
Stav objektu
Velmi dobrý
Patro
1. z 7
Typ objektu
Patrový
Lokalita objektu
Rušná část obce
Užitná plocha
34 m2
Třída energetické náročnosti
G - Mimořádně nehospodárná
Elektřina
230V
Plyn
Plynovod
Odpad
Veřejná kanalizace
Komunikace
Asfaltová
Telekomunikace
Internet
Doprava
Vlak, Silnice, MHD, Autobus
Voda
Vodovod
Bezbarierový přístup
Převod do OV

Kontaktovat makléře

Máte zájem o tuto nemovistost?

Tímto, v souladu s nařízením Evropského parlamentu a Rady (EU) 2016/679, v platném znění, prohlašuji, že mi je alespoň 16 let a uděluji tak svůj souhlas se zpracováním zadaných údajů (jméno, telefon, e-mail, ip adresa) společnosti B3 Technology, s.r.o., IČ: 07330600, se sídlem Novostavby 126/23, 435 11 Lom (správce dat), za účelem předání dotazu z tohoto formuláře Vámi vybranému inzerentovi a zpětného kontaktování mé osoby. Osobní údaje bude správce zpracovávat manuálně i automaticky přímo prostřednictvím svých zaměstnanců. Informace předané tímto formulářem budou uloženy v databázi správce maximálně po dobu 10 let. Odvolání souhlasu s uložením a zpracováním poskytnutých dat lze e-mailem na info@videobydleni.cz. V případě podezření na neoprávněné použití Vámi poskytnutých údajů máte právo předat podnět k šetření Úřadu pro ochranu osobních údajů. Více informací
Chystáte se prodat nemovitost?
Pomůžeme Vám!

Inzerát si prohlédlo 7 lidí

Prodejce

Sergej Gončarov

Sergej Gončarov

Hlídací pes

Chcete dostávat emailem podobné nabídky prodeje obchodních prostor v Praze 2?

Podobné nemovitosti


Nevyhovuje Vám typ nemovitosti? Podívejte se na jiné kategorie komerčních.


Vybrané články z našeho blogu