Prodej rodinného domu, Bítov, 200 m2

Bítov

Cena na vyžádání /za nemovitost Získejte výhodnou HYPOTÉKU
Prémioví partneři v Bítově

Informace k domu

Nabízíme k prodeji samostatně stojící rodinný dům v klidné obci Bítov, okres Nový Jičín.
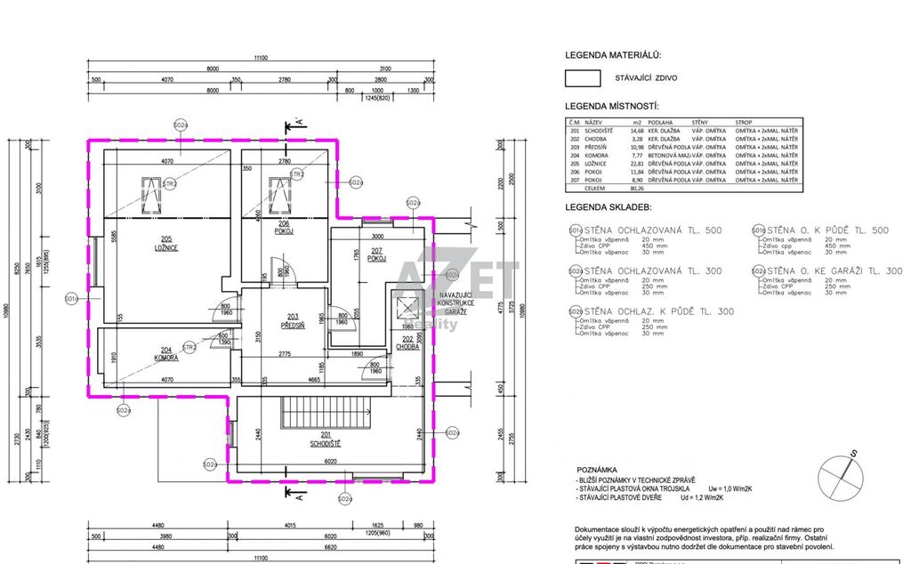
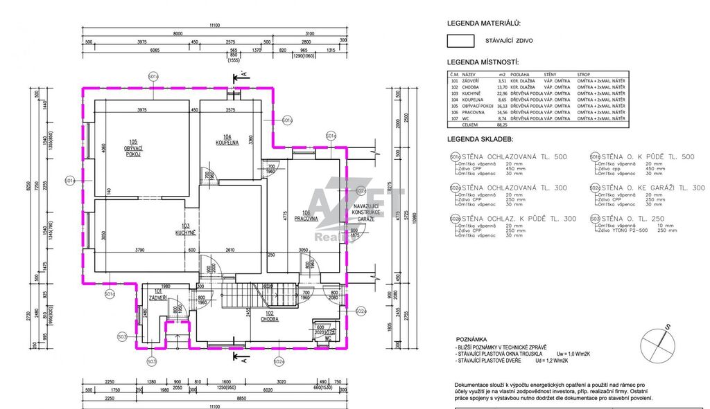
Dům je dvoupodlažní a podsklepený, celková podlahová plocha činí cca 200 m, zastavěná plocha 155 m a pozemek má výměru 666 m.
Nemovitost prošla kompletní rekonstrukcí v podobě nové plechové střešní krytiny SATJAM, plastových oken značky REHAU(trojsklo), elektrorozvody, omítky a podlahy. O vytápění domu a ohřev vody se stará automatický kotel na uhlí značky OPOP s akumulační nádrží.
V přízemí vás přivítá světlá kuchyně s jídelnou propojená s obývacím pokojem, moderní koupelna s vanou a sprchovým koutem, praktická technická místnost a kotelna s přímým vstupem do garáže.
Ve druhém nadzemním podlaží jsou tři neprůchozí pokoje a toaleta.
Dům nabízí útulné a klidné bydlení v malebné obci obklopené přírodou a je ideální volbou pro rodinu s dětmi, která hledá klidné bydlení s dobrou dostupností do okolních měst.
Pro více informací a případnou prohlídku kontaktujte makléře.

Parametry domu

Cena
Cena na vyžádání Spočítat hypotéku
Aktualizováno
24. 10. 2025
Adresa
Bítov
ID
1664
Stavba
Cihlová
Stav objektu
Po rekonstrukci
Vybaveno
Částečně
Typ objektu
Patrový
Druh objektu
Samostatný
Užitná plocha
200 m2
Zastavěná plocha
155 m2
Podlahová plocha
200 m2
Plocha pozemku
666 m2
Plocha zahrady
666 m2
Třída energetické náročnosti
C - Úsporná
Elektřina
230V, 400V
Odpad
Veřejná kanalizace, Septik
Topení
Ústřední tuhá paliva
Komunikace
Asfaltová
Telekomunikace
Telefon, Internet, Satelit
Doprava
Vlak, Dálnice, Silnice, MHD, Autobus
Voda
Vodovod, Studna
Topné těleso
Radiátory, Krbová kamna, Kotel na tuhá paliva
Zdroj topení
Kotel na tuhá paliva
Zdroj teplé vody
Kotel na tuhá paliva
Garáž
Sklep
Bezbarierový přístup
Parkování

Kontaktovat makléře

Realitní kancelář

Logo AZET reality

AZET reality

Vítkovická 3276/2a, Ostrava

Chystáte se prodat nemovitost?
Pomůžeme Vám!

Máte zájem o tento dům?

Tímto, v souladu s nařízením Evropského parlamentu a Rady (EU) 2016/679, v platném znění, prohlašuji, že mi je alespoň 16 let a uděluji tak svůj souhlas se zpracováním zadaných údajů (jméno, telefon, e-mail, ip adresa) společnosti B3 Technology, s.r.o., IČ: 07330600, se sídlem Novostavby 126/23, 435 11 Lom (správce dat), za účelem předání dotazu z tohoto formuláře Vámi vybranému inzerentovi a zpětného kontaktování mé osoby. Osobní údaje bude správce zpracovávat manuálně i automaticky přímo prostřednictvím svých zaměstnanců. Informace předané tímto formulářem budou uloženy v databázi správce maximálně po dobu 10 let. Odvolání souhlasu s uložením a zpracováním poskytnutých dat lze e-mailem na info@videobydleni.cz. V případě podezření na neoprávněné použití Vámi poskytnutých údajů máte právo předat podnět k šetření Úřadu pro ochranu osobních údajů. Více informací
Chystáte se prodat nemovitost?
Pomůžeme Vám!

Inzerát si prohlédlo 5 lidí

Prodejce

Marek Ďuriš

Marek Ďuriš

Hlídací pes

Chcete dostávat emailem podobné nabídky prodeje rodinných domů v Bítově (okr. Nový Jičín)?

Top nabídky

Podobné nemovitosti


Nevyhovuje Vám typ domu? Podívejte se na jiné kategorie domů.


Vybrané články z našeho blogu