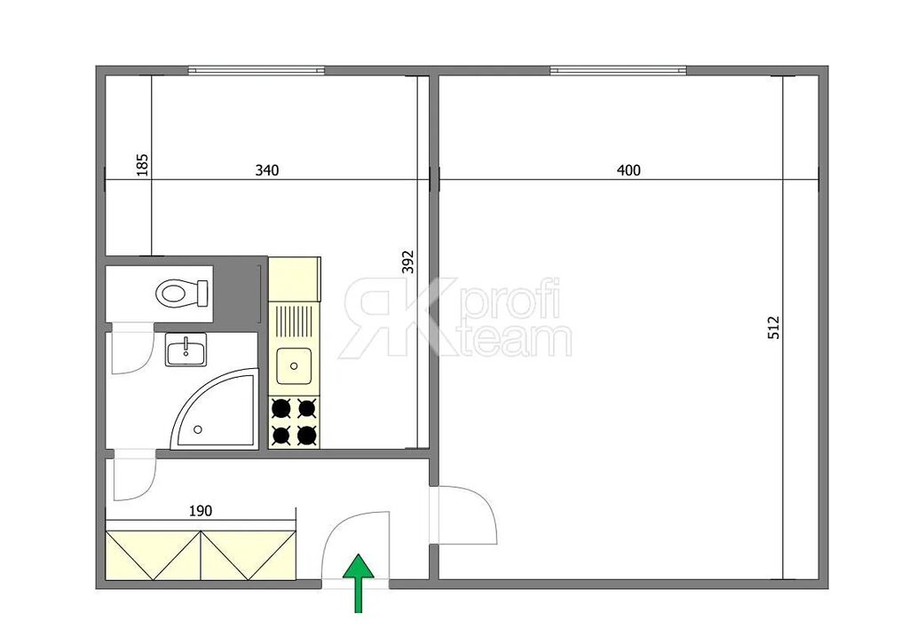
Prodej bytu 1+1, Ostrava, Šeříková, 40 m2 (ID: 4082421)

Šeříková, Ostrava, Výškovice

2 590 000 Kč /za nemovitost HYPOTÉKA od 11 576 Kč /za měsíc
Prémioví partneři v Ostravě

Informace k bytu

Nabízíme Vám ke koupi světlý a udržovaný byt 1+1 o výměře 40 m, který se nachází v nízké zástavbě velmi klidné a oblíbené lokality Ostravy Výškovic na ulici Šeříkova. Byt je situován v 3. nadzemním podlaží (2.patro) čtyřpodlažního domu bez výtahu.

Byt je v pěkném, udržovaném stavu, ideální jak k okamžitému bydlení, tak i k rekonstrukci podle vlastních představ. Umakartové jádro uvnitř obloženo obkladem, elektroinstalace je původní.

Prostorná kuchyně nabízí široké možnosti úprav například vytvoření moderní dispozice 2+kk.
V předsíni se nachází praktické vestavné skříně poskytující dostatek úložného prostoru.

Z bytu je hezký výhled do zeleně, okolí domu je tiché a plné vzrostlé vegetace. Lokalita je velmi žádaná díky své výborné občanské vybavenosti v blízkosti se nachází zastávka MHD, obchody, lékárna, škola, školka i volnočasové možnosti.

Byt je vhodný jak pro vlastní bydlení, tak i jako investice s možností výhodného pronájmu.

Parametry bytu

Cena
2 590 000 Kč /za nemovitost Spočítat hypotéku
Aktualizováno
24. 10. 2025
Adresa
Šeříková, Ostrava, Výškovice
ID
144
Stavba
Panelová
Stav objektu
Dobrý
Patro
3. z 4
Vlastnictví
Osobní
Užitná plocha
40 m2
Podlahová plocha
40 m2
Třída energetické náročnosti
D - Méně úsporná
Doprava
MHD, Autobus
Sklep
Bezbarierový přístup

Kontaktovat makléře

Realitní kancelář

RK ProfiTeam

Matiční 730/3, Ostrava, Moravská Ostrava

Chystáte se prodat nemovitost?
Pomůžeme Vám!

Máte zájem o tento byt?

Tímto, v souladu s nařízením Evropského parlamentu a Rady (EU) 2016/679, v platném znění, prohlašuji, že mi je alespoň 16 let a uděluji tak svůj souhlas se zpracováním zadaných údajů (jméno, telefon, e-mail, ip adresa) společnosti B3 Technology, s.r.o., IČ: 07330600, se sídlem Novostavby 126/23, 435 11 Lom (správce dat), za účelem předání dotazu z tohoto formuláře Vámi vybranému inzerentovi a zpětného kontaktování mé osoby. Osobní údaje bude správce zpracovávat manuálně i automaticky přímo prostřednictvím svých zaměstnanců. Informace předané tímto formulářem budou uloženy v databázi správce maximálně po dobu 10 let. Odvolání souhlasu s uložením a zpracováním poskytnutých dat lze e-mailem na info@videobydleni.cz. V případě podezření na neoprávněné použití Vámi poskytnutých údajů máte právo předat podnět k šetření Úřadu pro ochranu osobních údajů. Více informací
Chystáte se prodat nemovitost?
Pomůžeme Vám!

Inzerát si prohlédlo 5 lidí

Prodejce

Jiří Martiník

Jiří Martiník

Hlídací pes

Chcete dostávat emailem podobné nabídky prodeje bytů 1+1 v Ostravě?

Podobné nemovitosti


Nevyhovuje Vám typ bytu? Podívejte se na jiné kategorie bytů.


Vybrané články z našeho blogu