Prodej rodinného domu, Krnov, Jiráskova, 180 m2

Jiráskova, Krnov, Pod Bezručovým vrchem

4 990 000 Kč /za nemovitost HYPOTÉKA od 22 302 Kč /za měsíc
Prémioví partneři v Krnově

Informace k domu

Nabízíme k prodeji rodinný dům na ulici Jiráskova v Krnově. Dům se nachází v jedné z nejoblíbenějších lokalit města – v klidné části s výbornou dostupností do centra i k veškeré občanské vybavenosti. Je určen k celkové rekonstrukci a nabízí tedy jedinečnou příležitost vytvořit si domov přesně na míru Vašim představám a potřebám.

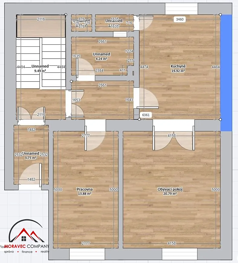
Dům má dvě nadzemní podlaží a díky dispozici nabízí možnost využití jako dvougenerační dům nebo přestavby na moderní jednogenerační bydlení s velkým otevřeným obytným prostorem v 1. NP a ložnicemi v patře. Pro Vaši jasnější představu jsme pro Vás připravili vizualizaci druhé varianty.

Součástí domu je prostorná zahrada o velikosti 425 m², která poskytuje dostatek soukromí a klid pro odpočinek i rodinné zázemí. Obrovskou výhodou je také garáž pro 2 auta a možnost parkování dalšího vozu přímo ve dvoře – celkem tedy až 3 parkovací stání.

Dům se nachází v atraktivní a poptávané části Krnova, v blízkosti nemocnice, parku, řeky a městského koupaliště. V docházkové vzdálenosti jsou také školy, školky, obchody, zdravotnická zařízení, restaurace i sportoviště.

Krnov je vyhledávaným městem díky své poloze u hranic s Polskem, bohatému kulturnímu životu a výborné dopravní dostupnosti.


Tento dům představuje skvělou příležitost pro ty, kteří hledají prostorné bydlení v jedné z nejžádanějších lokalit Krnova a zároveň si chtějí vytvořit domov přesně podle svých představ.

Podlahová plocha: cca 180 m²

Zastavěná plocha a nádvoří: 237 m²

Pozemek – zahrada: 425 m²

Celková plocha pozemku: 662 m²


V případě zájmu o prohlídku mne neváhejte kontaktovat.
Tento dům čeká možná právě na Vás!

Parametry domu

Cena
4 990 000 Kč /za nemovitost Spočítat hypotéku
Aktualizováno
14. 12. 2025
Adresa
Jiráskova, Krnov, Pod Bezručovým vrchem
ID
00184
Stavba
Cihlová
Stav objektu
Před rekonstrukcí
Druh objektu
Řadový
Lokalita objektu
Klidná část obce
Užitná plocha
180 m2
Zastavěná plocha
237 m2
Plocha pozemku
662 m2
Plocha zahrady
425 m2
Třída energetické náročnosti
G - Mimořádně nehospodárná
Odpad
Veřejná kanalizace
Komunikace
Asfaltová
Doprava
Vlak, Silnice, MHD, Autobus
Voda
Vodovod
Zdroj teplé vody
Centrální dálkový ohřev
Garáž
Sklep
Parkování

Kontaktovat makléře

Realitní kancelář

Moravec Company

Zámecké náměstí 1/13, Krnov

Chystáte se prodat nemovitost?
Pomůžeme Vám!

Máte zájem o tento dům?

Tímto, v souladu s nařízením Evropského parlamentu a Rady (EU) 2016/679, v platném znění, prohlašuji, že mi je alespoň 16 let a uděluji tak svůj souhlas se zpracováním zadaných údajů (jméno, telefon, e-mail, ip adresa) společnosti B3 Technology, s.r.o., IČ: 07330600, se sídlem Novostavby 126/23, 435 11 Lom (správce dat), za účelem předání dotazu z tohoto formuláře Vámi vybranému inzerentovi a zpětného kontaktování mé osoby. Osobní údaje bude správce zpracovávat manuálně i automaticky přímo prostřednictvím svých zaměstnanců. Informace předané tímto formulářem budou uloženy v databázi správce maximálně po dobu 10 let. Odvolání souhlasu s uložením a zpracováním poskytnutých dat lze e-mailem na info@videobydleni.cz. V případě podezření na neoprávněné použití Vámi poskytnutých údajů máte právo předat podnět k šetření Úřadu pro ochranu osobních údajů. Více informací
Chystáte se prodat nemovitost?
Pomůžeme Vám!

Inzerát si prohlédlo 20 lidí

Prodejce

Bc. Dagmar Dočkalová

Bc. Dagmar Dočkalová

Hlídací pes

Chcete dostávat emailem podobné nabídky prodeje rodinných domů v Krnově?

Podobné nemovitosti


Nevyhovuje Vám typ domu? Podívejte se na jiné kategorie domů.


Vybrané články z našeho blogu