Prodej rodinného domu, Dašice, Za Barevnou, 120 m2 (ID: 4083103)

Za Barevnou, Dašice

10 990 000 Kč /za nemovitost HYPOTÉKA od 49 119 Kč /za měsíc
Prémioví partneři v Dašicích

Informace k domu

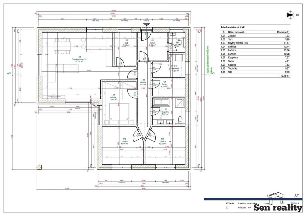
Exkluzivně nabízíme k prodeji moderní novostavbu rodinného domu 4+kk 120 m2 s prostornou terasou 33 m2, nacházející se na rovinatém pozemku o celkové výměře 767 m2 ve městě Dašice, okres Pardubice.

Rodinný dům je navržen s důrazem na moderní standardy, komfort a energetickou úspornost.

Dispozici domu tvoří prostorný obývací pokoj s kuchyňským koutem a přímým vstupem na terasu přes HS portál (velkoformátové posuvné okno), který poskytuje dostatek přirozeného světla a plynule propojuje vnitřní a venkovní část, tři samostatné neprůchozí pokoje, šatna, koupelna s WC, samostatné WC, spíž, technická místnost a zádveří.

Vybavení domu
Kuchyňská linka s vestavnými spotřebiči značky Kluge se zárukou 4 roky a s kováním Blum s doživotní zárukou
Moderní válcovitá digestoř s nerezovým spodním panelem a integrovaným LED osvětlením
Kvalitní sanita a obklady v koupelně i na WC
Bezfalcové interiérové dveře s obložkami
Vinylové podlahy v obytných místnostech
Skleněné parapety v celém domě
Kamerový systém kolem domu
Příprava terasy pro povrchovou úpravu dle Vašich představ
LED osvětlení v podhledu domu
Zpevněné parkovací stání

Technické provedení
Obvodové zdivo Porotherm 30 cm + 16 cm šedý polystyren (vysoká tepelná izolace)
Plastová okna s trojskly, vchodové hliníkové dveře s bočním světlíkem
Tepelné čerpadlo Vaillant tiché, výkonné a úsporné
Podlahové vytápění v celém domě
Venkovní stínící žaluzie na dálkové ovládání
Klimatizace v obytných místnostech, která umožňuje chlazení nebo vytápění

RD je napojen na vodovod, kanalizaci, optický kabel, který je navíc rozveden do všech obytných místností.

Dům je po kolaudaci.

Město Dašice poskytuje plné zázemí včetně mateřské školy, základní školy, obchodů, lékaře, sportovního i kulturního zařízení. Skvělá dopravní dostupnost směr Praha a Hradec Králové díky napojení na dálnici D35. Pardubice jsou jen několik minut jízdy. Lokalita je ideální pro rodiny hledající klidné prostředí s dobrou dostupností do větších měst.

Prodávající si vyhrazuje právo vybrat kupujícího.

Pro více informací nebo při zájmu o prohlídku nás neváhejte kontaktovat.

Parametry domu

Cena
10 990 000 Kč /za nemovitost Spočítat hypotéku
Aktualizováno
26. 10. 2025
Adresa
Za Barevnou, Dašice
ID
175
Stavba
Cihlová
Stav objektu
Novostavba
Vybaveno
Ne
Druh objektu
V bloku
Užitná plocha
120 m2
Zastavěná plocha
153 m2
Podlahová plocha
120 m2
Plocha pozemku
767 m2
Plocha zahrady
614 m2
Třída energetické náročnosti
B - Velmi úsporná
Elektřina
230V
Odpad
Veřejná kanalizace
Komunikace
Asfaltová
Telekomunikace
Internet
Doprava
Dálnice, Silnice, Autobus
Voda
Vodovod
Topné těleso
Podlahové vytápění
Zdroj topení
Tepelné čerpadlo
Zdroj teplé vody
Tepelné čerpadlo
Bezbarierový přístup
Parkování

Kontaktovat makléře

Realitní kancelář

Sen reality s.r.o.

Palackého třída 2020, Pardubice

Chystáte se prodat nemovitost?
Pomůžeme Vám!

Máte zájem o tento dům?

Tímto, v souladu s nařízením Evropského parlamentu a Rady (EU) 2016/679, v platném znění, prohlašuji, že mi je alespoň 16 let a uděluji tak svůj souhlas se zpracováním zadaných údajů (jméno, telefon, e-mail, ip adresa) společnosti B3 Technology, s.r.o., IČ: 07330600, se sídlem Novostavby 126/23, 435 11 Lom (správce dat), za účelem předání dotazu z tohoto formuláře Vámi vybranému inzerentovi a zpětného kontaktování mé osoby. Osobní údaje bude správce zpracovávat manuálně i automaticky přímo prostřednictvím svých zaměstnanců. Informace předané tímto formulářem budou uloženy v databázi správce maximálně po dobu 10 let. Odvolání souhlasu s uložením a zpracováním poskytnutých dat lze e-mailem na info@videobydleni.cz. V případě podezření na neoprávněné použití Vámi poskytnutých údajů máte právo předat podnět k šetření Úřadu pro ochranu osobních údajů. Více informací
Chystáte se prodat nemovitost?
Pomůžeme Vám!

Inzerát si prohlédlo 3 lidí

Prodejce

Pavel Šavrda

Pavel Šavrda

Hlídací pes

Chcete dostávat emailem podobné nabídky prodeje rodinných domů v Dašicích?

Podobné nemovitosti


Nevyhovuje Vám typ domu? Podívejte se na jiné kategorie domů.


Vybrané články z našeho blogu