Pronájem bytu 3+kk, Praha - Stodůlky, Márova, 71 m2

Márova, Praha, Stodůlky

28 000 Kč /za měsíc Získejte výhodnou HYPOTÉKU
Prémioví partneři v Praze 5

Stěhovací služby

Výkup a prodej starého nábytku

Informace k bytu

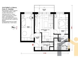
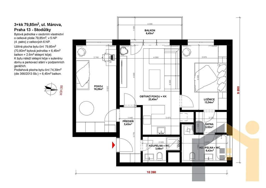
Byt 3+kk s balkonem, parkovacím stáním, sklepní kójí a klimatizací, zkolaudován v roce 2014 (developerská společnost DARAMIS) se nachází v ulici Márova, Praha 13 – Stodůlky.
Podlahová plocha bytu je 74,39m2, užitná plocha 70,80m2. K bytu náleží balkon (6,50m2), sklepní kóje (2,60m2) a parkovací stání v 1PP. Bytová jednotka se nachází ve 4.patře (5.NP) cihlového bytového domu se dvěma výtahy. Okna (dřevěná) jsou orientována na západ do klidného a velmi tichého vnitrobloku se zelení.
Velkou přidanou hodnotou této nemovitosti je důmyslná dispozice, která umožňuje mít k ložnici nejen šatnu, ale také druhou samostatnou koupelnu s toaletou a vanou. První koupelna spojená s WC má sprchový kout a je přístupná z chodby. Z té je rovněž přístupný i pokoj, který může být pokojem dětským, či velmi komfortní pracovnou. Kuchyňský kout s obývacím pokojem je centrem celého bytu, ze kterého je přístup na balkon a rovněž do ložnice s šatnou a koupelnou. V bytě jsou nainstalovány klimatizační jednotky, tudíž i v horkých letních dnech je v této nemovitosti velmi příjemně. Převážná část vybavení a nábytku byla provedena truhlářsky na míru. Některé vybavení (převážně ve vyobrazené pracovně) není součástí pronájmu. Vybavení si konkrétně upřesníme na prohlídkách. Stejně tak bude byt nově vymalován a uklizen.
Byt svou velikostí a svými parametry splňuje podmínky jak bydlení pro pár, či rodinu s dítětem.

Pro milovníky západní části Prahy, kteří mají rádi kombinaci klidu, přírody a skvělé občanské vybavenosti se super dopravní dostupností, se jedná o skvělou příležitost ke koupi. Byt je součástí projektu společnosti DARAMIS, který byl situován v klidné části Stodůlek „Na Vidouli“. Ačkoli je v blízkosti Rozvadovské spojky, jedná se o velmi klidné a tiché místo. Za bytovým komplexem je domov seniorů a z druhé strany bytového domu jsou budovy ministerstva vnitra. Celý projekt byl postaven do těsného sousedství čtvrti s rodinnými domy. Samotný byt je orientován směrem do krásného a klidného vnitrobloku s velmi pěknou a udržovanou zelení. Projekt se nachází v blízkosti Přírodní památky Motolský ordovik, golfového klubu „Golf Club Praha“, Parku Cibulka, a nedaleko se rovněž nachází i Centrální park s několika vodními plochami skvělý na procházky, bruslení, jízdu na kole a venčení psích mazlíčků. Ti mají ostatně pár minut od domu vyhlášenou veterinární kliniku. Pro delší procházku lze využít i krásné Prokopské údolí. Byt je v obklopení přírody a zeleně, a přesto nedaleko od občanské vybavenosti potřebné ke každodennímu životu. V docházkové vzdálenosti od domu se nachází Lidl, Kaufland, kavárny. Blíže k metru Hůrka, Lužiny a Nové Butovice najdete pak kompletní vybavenost – polikliniku, obchody, poštu, restaurace, kavárny, hřiště, MŠ, ZŠ, OC Galerie Butovice, OC Lužiny. A kdyby i tato vybavenost byla málo, můžeme nabídnout pár minut cesty autem obchodní centrum Metropole Zličín a Homepark Zličín. Pouhé dvě minuty chůze od domu je umístěna autobusová zastávka „Za Mototechnou“. Na metru „Hůrka“ budete během 8min. jízdy autobusem, a na metru „Nové Butovice“ během 11min. Osobně tuto lokalitu vřele doporučuji! Možnosti, které svými vlastnostmi a svou polohou tento byt nabízí, u jiných nemovitostí jen tak nezískáte.

Pronájem je možný od 17.11.2025. Cena nájemného je 28.000,- Kč/měsíc + zúčtovatelné poplatky ve výši 6.358,- Kč/měsíc/2os. (včetně zálohy na elektřinu ve výši 2.010,- Kč/měsíc). PENB: „B“. Při rezervaci se hradí provize ve výši 1 nájmu (28.000,- Kč), první nájem s poplatky a vratná kauce majiteli ve stejné výši. Pro dotazy či domluvení prohlídky jsem kdykoli k dispozici. Budu se těšit na osobní setkání při prohlídce nemovitosti.

Parametry bytu

Cena
28 000 Kč /za měsíc
Náklady na bydlení
+ 6.358,- Kč/2os./měsíc (včetně el. energie ve výši 2.010,- Kč/měsíc)
Aktualizováno
25. 10. 2025
Adresa
Márova, Praha, Stodůlky
Stavba
Cihlová
Stav objektu
Novostavba
Patro
5.
Vybaveno
Částečně
Lokalita objektu
Klidná část obce
Vlastnictví
Osobní
Užitná plocha
71 m2
Třída energetické náročnosti
B - Velmi úsporná
Elektřina
230V
Odpad
Veřejná kanalizace
Komunikace
Asfaltová
Doprava
Dálnice, Silnice, MHD
Voda
Vodovod
Topné těleso
Radiátory, Klimatizace
Zdroj topení
Centrální dálkové
Zdroj teplé vody
Centrální dálkový ohřev
Balkon
Sklep
Výtah
Bezbarierový přístup
Parkování

Kontaktovat makléře

Máte zájem o tento byt?

Tímto, v souladu s nařízením Evropského parlamentu a Rady (EU) 2016/679, v platném znění, prohlašuji, že mi je alespoň 16 let a uděluji tak svůj souhlas se zpracováním zadaných údajů (jméno, telefon, e-mail, ip adresa) společnosti B3 Technology, s.r.o., IČ: 07330600, se sídlem Novostavby 126/23, 435 11 Lom (správce dat), za účelem předání dotazu z tohoto formuláře Vámi vybranému inzerentovi a zpětného kontaktování mé osoby. Osobní údaje bude správce zpracovávat manuálně i automaticky přímo prostřednictvím svých zaměstnanců. Informace předané tímto formulářem budou uloženy v databázi správce maximálně po dobu 10 let. Odvolání souhlasu s uložením a zpracováním poskytnutých dat lze e-mailem na info@videobydleni.cz. V případě podezření na neoprávněné použití Vámi poskytnutých údajů máte právo předat podnět k šetření Úřadu pro ochranu osobních údajů. Více informací
Chystáte se prodat nemovitost?
Pomůžeme Vám!

Inzerát si prohlédlo 2 lidí

Prodejce

Ivana Ráčková

Ivana Ráčková

Hlídací pes

Chcete dostávat emailem podobné nabídky pronájmu bytů 3+kk v Praze 5?

Podobné nemovitosti


Nevyhovuje Vám typ bytu? Podívejte se na jiné kategorie bytů.


Vybrané články z našeho blogu