Pronájem kanceláře, Praha - Nové Město, Václavské náměstí, 195 m2 (ID: 4084342)

Václavské náměstí, Praha, Nové Město

22 € /za metr čtvereční / měsíc Získejte výhodnou HYPOTÉKU
Prémioví partneři v Praze 1

Stěhovací služby

Výkup a prodej starého nábytku

Informace k nemovitosti

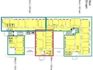
Pronájem kanceláří v historické budově Forum. Prostory jsou kompletně zrekonstruovány. Vstup z Václavského náměstí a Vodičkovy ulice, jedna z nejreprezentativnějších budov v Praze. Prominentní umístění. Vysoce flexibilní prostory. Moderní vybavení a technická specifikace - klimatizace, dostatek telefonních linek, 24 hodinová bezpečnostní služba, kvalitní dřevěné podlahy, novobarokní štukované stropy v některých kancelářích, celkově velice reprezentativní prostory. Budova z roku 2004. Aktuálně k dispozici od 4/2026 kanceláře 195 m2 ve 2 podlaží.

Parametry nemovitosti

Cena
22 € /za metr čtvereční / měsíc
Aktualizováno
26. 10. 2025
Adresa
Václavské náměstí, Praha, Nové Město
ID
320736
Stavba
Cihlová
Stav objektu
Dobrý
Patro
2. z 6
Užitná plocha
195 m2
Třída energetické náročnosti
C - Úsporná
Parkování

Kontaktovat makléře

Realitní kancelář

PROFESSIONALS s.r.o.

V celnici 1031/4, Praha, Nové Město

Chystáte se prodat nemovitost?
Pomůžeme Vám!

Máte zájem o tuto nemovistost?

Tímto, v souladu s nařízením Evropského parlamentu a Rady (EU) 2016/679, v platném znění, prohlašuji, že mi je alespoň 16 let a uděluji tak svůj souhlas se zpracováním zadaných údajů (jméno, telefon, e-mail, ip adresa) společnosti B3 Technology, s.r.o., IČ: 07330600, se sídlem Novostavby 126/23, 435 11 Lom (správce dat), za účelem předání dotazu z tohoto formuláře Vámi vybranému inzerentovi a zpětného kontaktování mé osoby. Osobní údaje bude správce zpracovávat manuálně i automaticky přímo prostřednictvím svých zaměstnanců. Informace předané tímto formulářem budou uloženy v databázi správce maximálně po dobu 10 let. Odvolání souhlasu s uložením a zpracováním poskytnutých dat lze e-mailem na info@videobydleni.cz. V případě podezření na neoprávněné použití Vámi poskytnutých údajů máte právo předat podnět k šetření Úřadu pro ochranu osobních údajů. Více informací
Chystáte se prodat nemovitost?
Pomůžeme Vám!

Inzerát si prohlédlo 1 lidí

Prodejce

Ing. Petr Mrázek

Ing. Petr Mrázek

Hlídací pes

Chcete dostávat emailem podobné nabídky pronájmu kanceláří v Praze 1?

Podobné nemovitosti


Nevyhovuje Vám typ nemovitosti? Podívejte se na jiné kategorie komerčních.


Vybrané články z našeho blogu