Pronájem bytu 2+kk, Praha - Žižkov, Olgy Havlové, 46 m2 (ID: 4084593)

Olgy Havlové, Praha, Žižkov

25 900 Kč /za měsíc Získejte výhodnou HYPOTÉKU

(+ 3900 Kč zálohy na služby + elektřina, kauce 29800 Kč, provize 29800 Kč + DPH)

Prémioví partneři v Praze 3

Stěhovací služby

Výkup a prodej starého nábytku

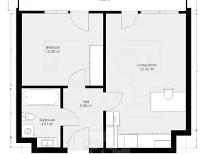
Informace k bytu

Krásný a prakticky řešený byt 2+kk s balkonem a sklepem - k nastěhování ihned.

Nabízíme k pronájmu moderní a světlý byt 2+kk o velikosti 46 m², situovaný v pečlivě udržovaném bytovém domě. Tento byt vás zaujme promyšleným dispozičním řešením a příjemnou atmosférou.

Dispozice bytu:
• Vstupní předsíň
• Prostorný obývací pokoj s plně vybavenou kuchyňskou linkou (indukční varná deska, elektrická trouba, myčka, lednice)
• Samostatná ložnice s šatní skříní
• Z obou pokojů je přímý vstup na prostorný zastřešený balkon
• Koupelna s vanou, umyvadlem a zrcadlovou skříňkou, pračkou a toaletou

K bytu dále náleží:
• Zděný úložná komora přímo na patře bytu



Měsíční nájem činí 25 900 Kč. Poplatky za služby ve výši 3900 Kč + elektřina. Vratná kauce 29 800 Kč. Provize RK 29 800 Kč + DPH.

Pozor, velkou výhodou pro potenciální nájemce je, že byt je v profesionální správě společnosti Bohemian Estates, jenž správu pro majitele tohoto bytu vykonává. Nájemci je k dispozici kontaktní osoba, která řeší veškeré záležitosti s nájmem spojené (údržba, platby nájemného, vyúčtování, dodatky, a pod.). Nájemci je tak zajištěno bezproblémové užívání bytu s kompletním servisem.

Parametry bytu

Cena
25 900 Kč /za měsíc
Poznámka k ceně
+ 3900 Kč zálohy na služby + elektřina, kauce 29800 Kč, provize 29800 Kč + DPH
Aktualizováno
25. 10. 2025
Adresa
Olgy Havlové, Praha, Žižkov
ID
N08471
Stavba
Smíšená
Stav objektu
Velmi dobrý
Patro
8. z 8
Vybaveno
Částečně
Lokalita objektu
Centrum obce
Vlastnictví
Osobní
Užitná plocha
46 m2
Třída energetické náročnosti
B - Velmi úsporná
Ukazatel energetické náročnosti
56 kWh/m2 za rok
Elektřina
230V
Odpad
Veřejná kanalizace
Komunikace
Asfaltová
Doprava
Vlak, Silnice, MHD, Autobus
Zdroj topení
Centrální dálkové
Zdroj teplé vody
Centrální dálkový ohřev
Balkon
Sklep
Výtah

Kontaktovat makléře

Máte zájem o tento byt?

Tímto, v souladu s nařízením Evropského parlamentu a Rady (EU) 2016/679, v platném znění, prohlašuji, že mi je alespoň 16 let a uděluji tak svůj souhlas se zpracováním zadaných údajů (jméno, telefon, e-mail, ip adresa) společnosti B3 Technology, s.r.o., IČ: 07330600, se sídlem Novostavby 126/23, 435 11 Lom (správce dat), za účelem předání dotazu z tohoto formuláře Vámi vybranému inzerentovi a zpětného kontaktování mé osoby. Osobní údaje bude správce zpracovávat manuálně i automaticky přímo prostřednictvím svých zaměstnanců. Informace předané tímto formulářem budou uloženy v databázi správce maximálně po dobu 10 let. Odvolání souhlasu s uložením a zpracováním poskytnutých dat lze e-mailem na info@videobydleni.cz. V případě podezření na neoprávněné použití Vámi poskytnutých údajů máte právo předat podnět k šetření Úřadu pro ochranu osobních údajů. Více informací
Chystáte se prodat nemovitost?
Pomůžeme Vám!

Inzerát si prohlédlo 1 lidí

Prodejce

Adam Kubeš

Adam Kubeš

Hlídací pes

Chcete dostávat emailem podobné nabídky pronájmu bytů 2+kk v Praze 3?

Podobné nemovitosti


Nevyhovuje Vám typ bytu? Podívejte se na jiné kategorie bytů.


Vybrané články z našeho blogu