Prodej rodinného domu, Veverské Knínice, 99 m2 (ID: 4087879)

Veverské Knínice

Prémioví partneři v Veverských Knínicích

Informace k domu

Prodej RD na klíč 99 m², pozemek - 800 m², Veverské Knínice, Brno-venkov

Ve výhradním zastoupení Vám zprostředkujeme prodej rodinného patrového domu Klasik 99 s užitnou plochou 99 m² k výstavbě na pozemku o velikosti 800 m² v obci Veverské Knínice. Pozemek se nachází na kraji obce ve velmi klidné části. Stavební šířka pozemku je cca 15,5 m a délka cca 51,6 m. Vjezd na pozemek vede z asfaltové hlavní silnice. Tato nabídka RD na klíč je včetně pozemku a vodovodní a kanalizační přípojky, které budou přivedeny na hranici pozemku. Elektro přípojka může být umístěna u vjezdu na pozemek.
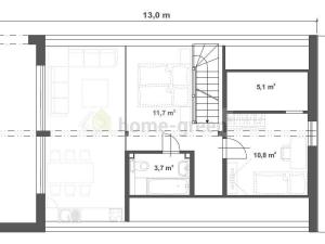
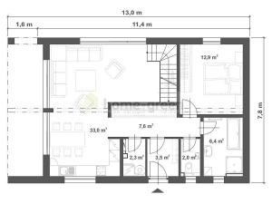
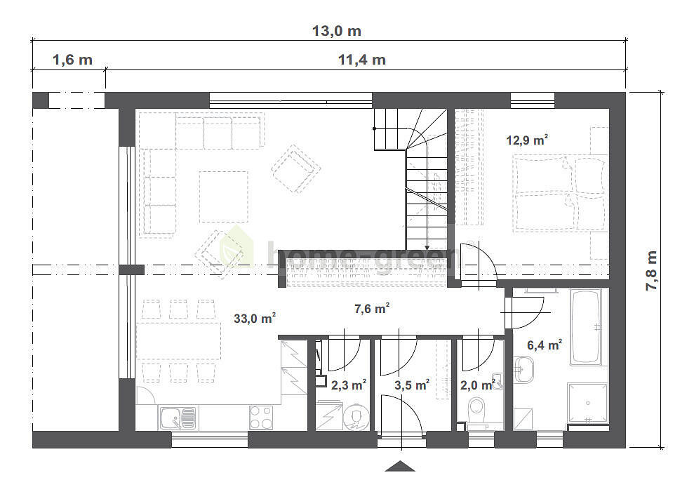
Dům dodavatele RD Rýmařov - KLASIK 99 - moderní otevřená dispozice 4+1 s velkým prosklením otevřeným přes dvě patra se stala aktuálním hitem, která je citlivě zakomponovaná do současného rodinného domu a vznikl tak krásný otevřený prostor v obývací, jídelní a kuchyňské části domu. Skrze velké prosklené dveře lze přejít přímo na terasu před domem. V pokoji pro hosty nebo ložnici v patře s výhledem skrze obrovské prosklení bude zážitek usínat. Pokud preferujete klid, dům nabízí další dvě velké místnosti poskytující naprosté soukromí. Design domu, prosklení a exteriérové provedení je nádhernou ukázkou toho, jak sladit moderní dům s praktickými požadavky rodiny. Rozměry domu - 13,1 m x 7,8 m. Tepelné čerpadlo je v ceně domu. Čerpadlo vzduch - vzduch v zimě dům vyhřeje, v létě zase ochladí. Fotovoltaická elektrárna je v ceně domu. Systém ON GRID s akumulací do zásobníku TUV: využívá sluneční energii pro ohřev užitkové vody v 200 litrovém zásobníku. Základová deska je v ceně domu.
Veverské Knínice jsou obec v okrese Brno-venkov v Jihomoravském kraji. Leží na rozhraní Boskovické brázdy a Křižanovské vrchoviny. Krásná příroda v okolí obce poskytuje velké možnosti pro volnočasovou aktivitu v blízkosti Brněnské přehrady a hradu Veveří. V současné době je v obci 332 domů a žije tu přibližně 954 obyvatel. Obec je vzdálená cca 10 km od města Rosice a cca 20 Km západně od města Brno. Sjezd z dálnice D1 je v blízkosti 3 km u obce Ostrovačice. Uveřejněné fotografie RD k výstavbě jsou pouze ilustrativní. Nabídku doporučujeme a se zajištěním financování pomůžeme.

Parametry domu

Cena
9 920 920 Kč Spočítat hypotéku
Aktualizováno
27. 10. 2025
Adresa
Veverské Knínice
ID
N00016
Stavba
Dřevěná
Stav objektu
Projekt
Druh objektu
Samostatný
Vlastnictví
Osobní
Užitná plocha
99 m2
Zastavěná plocha
102 m2
Plocha pozemku
800 m2
Třída energetické náročnosti
A - Mimořádně úsporná

Kontaktovat makléře

Máte zájem o tento dům?

Tímto, v souladu s nařízením Evropského parlamentu a Rady (EU) 2016/679, v platném znění, prohlašuji, že mi je alespoň 16 let a uděluji tak svůj souhlas se zpracováním zadaných údajů (jméno, telefon, e-mail, ip adresa) společnosti B3 Technology, s.r.o., IČ: 07330600, se sídlem Novostavby 126/23, 435 11 Lom (správce dat), za účelem předání dotazu z tohoto formuláře Vámi vybranému inzerentovi a zpětného kontaktování mé osoby. Osobní údaje bude správce zpracovávat manuálně i automaticky přímo prostřednictvím svých zaměstnanců. Informace předané tímto formulářem budou uloženy v databázi správce maximálně po dobu 10 let. Odvolání souhlasu s uložením a zpracováním poskytnutých dat lze e-mailem na info@videobydleni.cz. V případě podezření na neoprávněné použití Vámi poskytnutých údajů máte právo předat podnět k šetření Úřadu pro ochranu osobních údajů. Více informací
Chystáte se prodat nemovitost?
Pomůžeme Vám!

Inzerát si prohlédlo 2 lidí

Prodejce

Ing. Hana Vaculíková

Ing. Hana Vaculíková

Hlídací pes

Chcete dostávat emailem podobné nabídky prodeje rodinných domů v Veverských Knínicích?

Podobné nemovitosti


Nevyhovuje Vám typ domu? Podívejte se na jiné kategorie domů.


Vybrané články z našeho blogu