Pronájem bytu 2+kk, Praha - Nové Město, Plavecká, 50 m2

Plavecká, Praha, Nové Město

14 600 Kč /za měsíc Získejte výhodnou HYPOTÉKU
Prémioví partneři v Praze 2

Stěhovací služby

Výkup a prodej starého nábytku

Informace k bytu

Prosím, kontaktujte mě výhradně e-mailem na adrese: eva.realetate2@seznam.cz
Nesleduji ani neodpovídám na žádné nabídky zaslané prostřednictvím platformy Sreality. Z časových důvodů budou všechny nabídky učiněné na této platformě automaticky odmítnuty. Pokud máte vážný zájem, e-mail je jediný způsob, jak mě můžete kontaktovat.

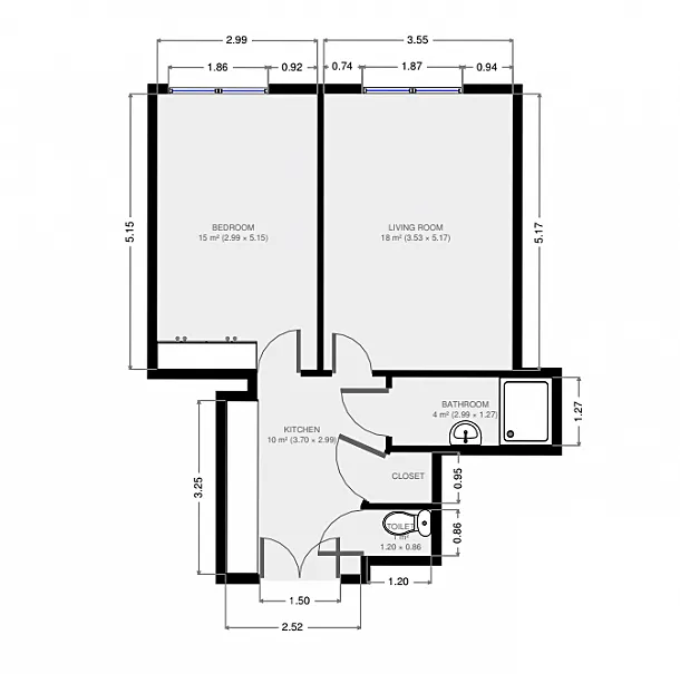
Zrekonstruovaný, kompletně zařízený byt s 1 ložnicí, situovaný v prvním patře tradičního bytového domu v klidné ulici ve Výtoni - Podskalí, nedaleko vltavského nábřeží a Emauzského kláštera. Byt se nachází jen pár bloků od tramvajových zastávek a stanice metra na Palackého (Karlova) náměstí, s velmi rychlým přístupem do centra města a kompletní občanskou vybaveností v dosahu. V docházkové vzdálenosti od kvalitních kaváren a restaurací a Náplavky / Vltavského nábřeží s velmi oblíbenými pravidelnými farmářskými trhy.

Interiér bytu nabízí plně vybavenou kuchyň ve vstupní hale, obývací pokoj, jednu ložnici s množstvím vestavěných skříní a úložným prostorem, koupelnu se sprchovým koutem a podlahovým vytápěním, samostatnou toaletu a technickou místnost s pračkou a sušičkou.

Zachované původní detaily, vysoké stropy, velká okna, úložné prostory, kvalitní vinylové podlahy DISANO, dlažba, bezpečnostní vstupní dveře, elektrické topení, rozkládací pohovka, myčka nádobí, mikrovlnná trouba, kompletní kuchyňské vybavení, TV, videotelefon, alarm, sklep, vstup do budovy na čip. Poplatky za společné budovy, voda, topení a elektřina.

Parametry bytu

Cena
14 600 Kč /za měsíc
Aktualizováno
26. 10. 2025
Adresa
Plavecká, Praha, Nové Město
Stavba
Cihlová
Stav objektu
Velmi dobrý
Patro
1.
Vlastnictví
Osobní
Užitná plocha
50 m2
Parkování

Kontaktovat makléře

Realitní kancelář

Eva Mikešková

Horní 1474/1, Praha, Nusle

Chystáte se prodat nemovitost?
Pomůžeme Vám!

Máte zájem o tento byt?

Tímto, v souladu s nařízením Evropského parlamentu a Rady (EU) 2016/679, v platném znění, prohlašuji, že mi je alespoň 16 let a uděluji tak svůj souhlas se zpracováním zadaných údajů (jméno, telefon, e-mail, ip adresa) společnosti B3 Technology, s.r.o., IČ: 07330600, se sídlem Novostavby 126/23, 435 11 Lom (správce dat), za účelem předání dotazu z tohoto formuláře Vámi vybranému inzerentovi a zpětného kontaktování mé osoby. Osobní údaje bude správce zpracovávat manuálně i automaticky přímo prostřednictvím svých zaměstnanců. Informace předané tímto formulářem budou uloženy v databázi správce maximálně po dobu 10 let. Odvolání souhlasu s uložením a zpracováním poskytnutých dat lze e-mailem na info@videobydleni.cz. V případě podezření na neoprávněné použití Vámi poskytnutých údajů máte právo předat podnět k šetření Úřadu pro ochranu osobních údajů. Více informací
Chystáte se prodat nemovitost?
Pomůžeme Vám!

Inzerát si prohlédlo 3 lidí

Prodejce

Eva Mikešková

Eva Mikešková

Hlídací pes

Chcete dostávat emailem podobné nabídky pronájmu bytů 2+kk v Praze 2?

Podobné nemovitosti


Nevyhovuje Vám typ bytu? Podívejte se na jiné kategorie bytů.


Vybrané články z našeho blogu