Pronájem obchodního prostoru, Jaroměř, Jezbinská, 269 m2

Jezbinská, Jaroměř

40 400 Kč /za měsíc Získejte výhodnou HYPOTÉKU

(Cena měsíčního nájemného ve výši 40.400 Kč + služby. Vratná jistota ve výši 2x měsíčního nájemného s možností nahrazení bankovní zárukou.)

Prémioví partneři v Jaroměři

Informace k nemovitosti

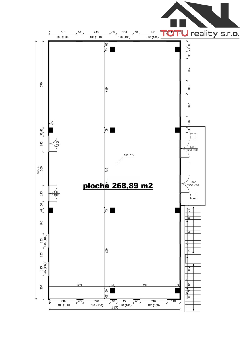
Společnost TOTU reality Jaroměř pro Vám nabízí nové reprezentativní prostory pro vaše podnikání. K dlouhodobému pronájmu nabízíme obchodní prostor v Jaroměři, ul. Jezbinská, část Pražské Předměstí, okres Náchod. Nemovitost se nachází na lukrativním místě při hlavní trase Jaroměř - Hradec Králové s dálničním nájezdem D11 ve vzdálenosti 3 km. V uzavřeném areálu Kostka Centrum se prostor nachází ve 2. NP. s podlahovou plochou 269 m2 s výškou stropu 295 cm s možností dispozičních úprav podle požadavků zakázníka. V letošním roce došlo k celkové revitalizaci budovy s předpokládanou energetickou náročností ,,B", což zajistí nízké náklady na provoz. V prostorech klimatizační jednotka, rozvody PC sítí (300/300) a zabezpečovací zařízení. Ve společných prostorech objektu, kuchyňské a sociální zázemí. Na pozemku k dispozici 15 parkovacích stání. V okolí se nachází vlakové a autobusové nádraží, čerpací stanice, banka, síť obchodů, restaurace a jiné. Prostory lze využít např. jako sklady, výrobní prostory, showroom, velkoplošné kanceláře apod. Neváhejte si zajistit termín prohlídky s možností návrhů vnitřních úprav na míru pro vaše podnikání. Cena měsíčního nájemného ve výši 40.400 Kč + služby. Doporučujme prohlídku. Více informací u makléře. Fotografie jsou ilustrativní z jiného již připraveného prostoru.

Parametry nemovitosti

Cena
40 400 Kč /za měsíc
Poznámka k ceně
Cena měsíčního nájemného ve výši 40.400 Kč + služby. Vratná jistota ve výši 2x měsíčního nájemného s možností nahrazení bankovní zárukou.
Aktualizováno
27. 10. 2025
Adresa
Jezbinská, Jaroměř
ID
0832
Stavba
Cihlová
Stav objektu
Po rekonstrukci
Patro
2. z 2
Typ objektu
Patrový
Lokalita objektu
Klidná část obce
Užitná plocha
269 m2
Zastavěná plocha
1796 m2
Podlahová plocha
269 m2
Třída energetické náročnosti
B - Velmi úsporná
Elektřina
230V, 400V
Odpad
Veřejná kanalizace
Komunikace
Asfaltová
Telekomunikace
Internet
Doprava
Vlak, Dálnice, Silnice, Autobus
Voda
Vodovod
Výtah
Převod do OV
Parkování
Nízkoenergetický

Kontaktovat makléře

Máte zájem o tuto nemovistost?

Tímto, v souladu s nařízením Evropského parlamentu a Rady (EU) 2016/679, v platném znění, prohlašuji, že mi je alespoň 16 let a uděluji tak svůj souhlas se zpracováním zadaných údajů (jméno, telefon, e-mail, ip adresa) společnosti B3 Technology, s.r.o., IČ: 07330600, se sídlem Novostavby 126/23, 435 11 Lom (správce dat), za účelem předání dotazu z tohoto formuláře Vámi vybranému inzerentovi a zpětného kontaktování mé osoby. Osobní údaje bude správce zpracovávat manuálně i automaticky přímo prostřednictvím svých zaměstnanců. Informace předané tímto formulářem budou uloženy v databázi správce maximálně po dobu 10 let. Odvolání souhlasu s uložením a zpracováním poskytnutých dat lze e-mailem na info@videobydleni.cz. V případě podezření na neoprávněné použití Vámi poskytnutých údajů máte právo předat podnět k šetření Úřadu pro ochranu osobních údajů. Více informací
Chystáte se prodat nemovitost?
Pomůžeme Vám!

Inzerát si prohlédlo 2 lidí

Prodejce

Marian Tuček

Marian Tuček

Hlídací pes

Chcete dostávat emailem podobné nabídky pronájmu obchodních prostor v Jaroměři?

Podobné nemovitosti


Nevyhovuje Vám typ nemovitosti? Podívejte se na jiné kategorie komerčních.


Vybrané články z našeho blogu