Dukelská, Strakonice II
Výkup a prodej starého nábytku
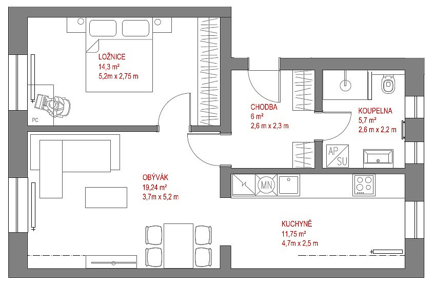
Nabízíme k pronájmu novostavbu podkrovního bytu 2+1 o výměře 58,2 m²
Byt se nachází ve 4. nadzemním podlaží bytového domu v centru Strakonic. Díky své poloze nabízí pohodlné bydlení v dosahu všech služeb — mateřské i základní školy, zdravotnického zařízení, obchodů a také vlakového a autobusového nádraží.
Dispozice bytu: 
kuchyně – 11,7 m², obývací pokoj – 19,1 m², ložnice – 14,9 m², koupelna s WC – 6,2 m², předsíň – 6,3 m²
Celková podlahová plocha: 58,2 m²
K bytu náleží také sklepní kóje.
Vybavení a standard bytu:
Byt je vybaven vstupními protipožárními dveřmi s ocelovou zárubní a bezpečnostním kováním. Okna obývacího pokoje a ložnice směřují na jih, kuchyně a koupelna jsou orientovány na sever do klidného vnitrobloku.
Interiérové dveře jsou bezfalcové s obložkovými zárubněmi. WC je odvětráváno otevíravým oknem.
Součástí bytu je kuchyňská linka s vestavěnými spotřebiči Electrolux (varná deska, trouba, mikrovlnná trouba, lednice a myčka).
Podlahy jsou laminátové (mimo koupelnu a WC), v koupelně a na WC je keramický obklad a dlažba v matném provedení. Koupelna nabízí sprchový kout s nerezovým žlabem, přípravu pro pračku a sušičku a topný žebřík pro vyšší komfort. Závěsné WC usnadňuje údržbu.
Díky nadstandardnímu zateplení má byt nízké provozní náklady a příjemné klima i v létě. Dům je napojen na vlastní výměníkovou stanici Teplárny Strakonice – zajištěno teplovodní vytápění i ohřev TUV. V bytě jsou instalovány deskové radiátory a připraveno připojení na internet.
Nájemné 10 500,- Kč, záloha na služby 4 000,- Kč, kauce 21 000,- Kč, provize RK 10 500,- Kč
Více informací vám rádi poskytneme v RK Ciao…Reality, Strakonice, tel.: 736 643 882
Ciao...Reality, s.r.o. člen skupiny Ciao
Zámek 1, Strakonice
Máte zájem o tento byt?
Inzerát si prohlédlo 4 lidí
 
                                Ing. Miroslav Kučera MBA
Chcete dostávat emailem podobné nabídky pronájmu bytů 2+1 v Strakonicích?