Na baště sv. Ludmily, Praha, Hradčany
Rád bych Vám touto cestou nabídl velmi atraktivní byt k pronájmu nacházející se ve skvělé lokalitě Prahy 6 - Hradčany. 
Hledáte byt, který má charakter, klid a adresu, která se neodmítá? Tahle prvorepubliková vila na Hradčanech nabízí přesně to: noblesu staré Prahy, soukromí za vysokým plotem a pocit domova hned při prvním kroku dovnitř.
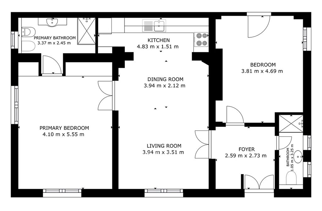
Prostor, který dýchá - Velkorysých 94 m²: obývací pokoj plynule navazuje na jídelnu a plně vybavenou kuchyň – ideální pro večery s přáteli i klidná rána u kávy. Dvě neprůchozí ložnice (jedna s vestavěnými skříněmi) – soukromí bez kompromisů. Dvě koupelny se sprchou – komfort při každodenním provozu. Renovované dubové parkety, vysoké stropy, nadčasové materiály. Praktická úložná místnost/sklep cca 10 m². Nový plynový kotel – jistota a efektivní vytápění.
Zahradní úroveň (suterén) má svoje kouzlo: mimořádný klid, příjemná teplota v létě, nulový hluk z ulice – perfektní na práci i odpočinek.
Nemovitost je obehnaná vysokým plotem, monitorována bezpečnostními kamerami a byt je vybaven alarmem. Součástí je také příjemná, upravovaná zahrada, který vybízí k odpočinku a nebo setkání s přáteli, či rodinou u grilu. Další výhodou je, že se na každém podlaží nachází pouze jeden byt a máte zde jistotu parkovacího stání na dvoře. 
Lokalita, ve které se dům nachází je opravdu velice krásná. Dům sousedí přímo s několika parky, zejména park Charlotty Garrigue Masarykové, je jen pár kroků od domu. Na Metro se dostanete během 5ti minut chůze a v okolí je několik prestižních škol a skvělých kaváren. 
Zaujalo Vás to? Napište si o prohlídku. Rád Vám byt ukážu a povím, proč je tak výjimečný.
Máte zájem o tento byt?
Inzerát si prohlédlo 4 lidí
 
                                Ing. Martin Hudek, MSc.
Chcete dostávat emailem podobné nabídky pronájmu bytů 3+kk v Praze 6?