Prodej rodinného domu, Nové Mitrovice, 101 m2

Nové Mitrovice, Mítov

Cena na vyžádání /za nemovitost Získejte výhodnou HYPOTÉKU

(info v RK, včetně DPH, včetně poplatků, včetně provize, včetně právního servisu)

Prémioví partneři v Nových Mitrovicích

Podlahy

Stěhovací služby

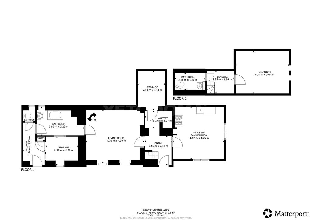
Informace k domu

Poklidná lokalita s nemovitostí v malebné vesnici Mítov u Brdské krajiny nabízí ideální místo pro odpočinek, relaxaci nebo trvalé bydlení. Dům s velkým pozemkem, soukromím a blízkostí přírody vás zve k načerpání nových sil v klidném prostředí.

- Dispozice 2+1 s dílnou, skladem, koupelnou a toaletou.
- Velmi udržovaná stodola.
- Užitná plocha objektu přibližně 101 m².
- Rozloha pozemku: 1 750 m².
- Udržovaná rovinná zahrada s venkovním posezením.
- Prostorná stodola k využití dle potřeby.
- Vlastní studna na vodu, odpad řešen jímkou.
- Ideální pro rekreaci i trvalé bydlení.
- Klidná lokalita u Brdské krajiny, vhodná pro sportovní a relaxační aktivity.

Veškeré informace naleznete na webových stránkách nemovitosti realitní kanceláře Yetodoma v sekci katalog nemovitostí. Vyplňte poptávku a vše Vám rádi zašleme osobně.

Parametry domu

Cena
Cena na vyžádání Spočítat hypotéku
Poznámka k ceně
info v RK, včetně DPH, včetně poplatků, včetně provize, včetně právního servisu
Aktualizováno
28. 10. 2025
Adresa
Nové Mitrovice, Mítov
ID
00103
Stavba
Smíšená
Stav objektu
Velmi dobrý
Vybaveno
Částečně
Druh objektu
Samostatný
Lokalita objektu
Polosamota
Užitná plocha
101 m2
Plocha pozemku
1750 m2
Třída energetické náročnosti
G - Mimořádně nehospodárná
Elektřina
230V, 400V
Odpad
Jímka
Voda
Studna
Topné těleso
Krbová kamna
Zdroj teplé vody
Jiné

Kontaktovat makléře

Realitní kancelář

Yetodoma

Veverkova 2707/1, Plzeň

Chystáte se prodat nemovitost?
Pomůžeme Vám!

Máte zájem o tento dům?

Tímto, v souladu s nařízením Evropského parlamentu a Rady (EU) 2016/679, v platném znění, prohlašuji, že mi je alespoň 16 let a uděluji tak svůj souhlas se zpracováním zadaných údajů (jméno, telefon, e-mail, ip adresa) společnosti B3 Technology, s.r.o., IČ: 07330600, se sídlem Novostavby 126/23, 435 11 Lom (správce dat), za účelem předání dotazu z tohoto formuláře Vámi vybranému inzerentovi a zpětného kontaktování mé osoby. Osobní údaje bude správce zpracovávat manuálně i automaticky přímo prostřednictvím svých zaměstnanců. Informace předané tímto formulářem budou uloženy v databázi správce maximálně po dobu 10 let. Odvolání souhlasu s uložením a zpracováním poskytnutých dat lze e-mailem na info@videobydleni.cz. V případě podezření na neoprávněné použití Vámi poskytnutých údajů máte právo předat podnět k šetření Úřadu pro ochranu osobních údajů. Více informací
Chystáte se prodat nemovitost?
Pomůžeme Vám!

Inzerát si prohlédlo 2 lidí

Prodejce

Ondřej Brožík

Ondřej Brožík

Hlídací pes

Chcete dostávat emailem podobné nabídky prodeje rodinných domů v Nových Mitrovicích?

Podobné nemovitosti


Nevyhovuje Vám typ domu? Podívejte se na jiné kategorie domů.


Vybrané články z našeho blogu