Jiráskova, Soběslav II
Výkup a prodej starého nábytku
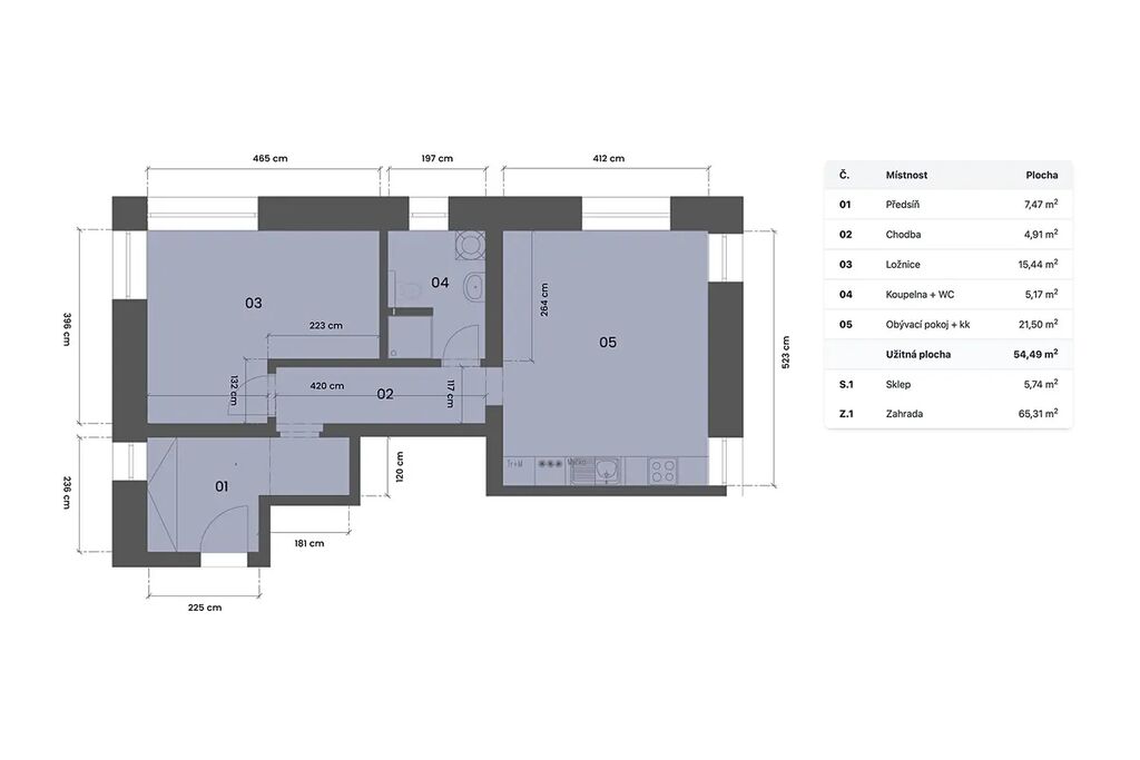
Exkluzivní nabídka prodeje bytové jednotky o užitné ploše 54,49 m², která se nachází v 1. NP ze tří, v cihlovém domě v ulici Jiráskova, č. p. 72, ve městě Soběslav, v Jihočeském kraji.
Bytová jednotka je dispozičně řešena jako 2+kk. Za vstupními dveřmi se nachází prostorná předsíň, na kterou navazuje chodba, ze které je přístupný obývací pokoj s kuchyňským koutem, samostatná ložnice a koupelna se sprchovým koutem a toaletou.
Bytová jednotka je ve stavu před dokončením, jedná se tedy o novostavbu. Topení je zajištěno elektrokotlem. Internet a kabelová televize je samozřejmostí, do domu je zaveden datový kabel.
K jednotce náleží sklep o ploše 5,74 m2, zahrada 65,31 m2 a dvě parkovací stání.
Soběslav je malebné jihočeské město s bohatou historií, které se rozkládá na soutoku řeky Lužnice a Černovického potoka. Jeho půvabné centrum s renesančními a gotickými památkami vytváří jedinečnou atmosféru, jež láká nejen návštěvníky, ale i nové obyvatele. Město nabízí klidné prostředí, kvalitní občanskou vybavenost a výbornou dostupnost do okolních regionů.
Občanská vybavenost je výborná: základní a mateřská škola se nachází 250 m od domu, k dispozici jsou supermarkety Lidl, Tesco nebo Penny. Přímo v ulici má ordinaci praktický lékař, nedaleko se nachází Všeobecná interní ambulance. V okolí je také dostatek sportovních a dětských hřišť, in-line dráha, zimní stadion, fotbalové hřiště, koupaliště, přírodní rezervace Nový rybník apod.
Dopravní dostupnost je velmi dobrá. Podél východního okraje města vede dálnice D3 s dobrou dostupností Prahy. Samotné město stojí na křižovatce silnic II/3 a II/135. Městem vede železniční trať Praha – České Budějovice. Na jihozápadním okraji města je veřejné vnitrostátní letiště.
Pražská 1616, Mníšek pod Brdy
Máte zájem o tento byt?
Inzerát si prohlédlo 7 lidí
 
                                Robert Macho
Chcete dostávat emailem podobné nabídky prodeje bytů 2+kk v Soběslavi?