Prodej bytu 3+kk, Praha - Radlice, Na Farkáně III, 60 m2

Na Farkáně III, Praha 5 - Radlice

6 900 000 Kč HYPOTÉKA od 30 839 Kč /za měsíc

(včetně provize RK)

Prémioví partneři v Praze 5

Stěhovací služby

Výkup a prodej starého nábytku

Informace k bytu

Prodej půdy 2-3+kk, 60 m² - Praha - Radlice

Chcete parádní výhled do Radlického údolí a jistotu, že před Vámi nevyroste developerský projekt? Máme.

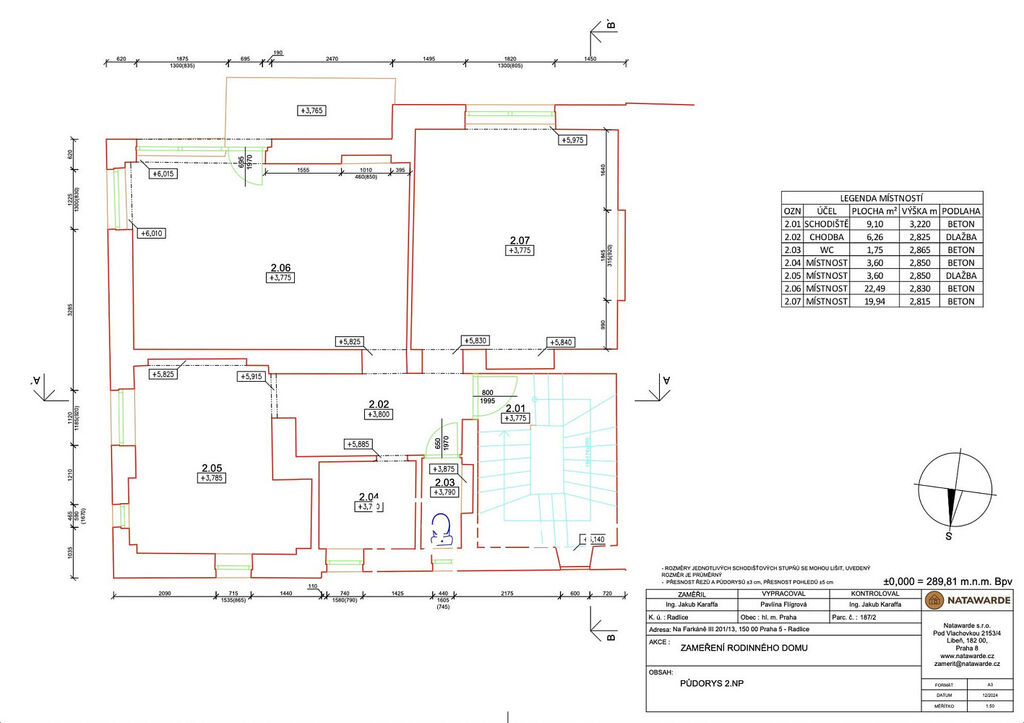
Exkluzivně nabízíme v předprodeji půdní prostor, v současnosti vedený jako "jiný nebytový prostor", čekáme na stavební úřad pro přepis na byt. Prostor je v současné době úplně otevřený a je možno dispozici libovolně upravit. V náhledu je náš návrh vnitřního prostoru na 3+kk. Všechny velké stavební úpravy půdy jsou již hotové - nová střecha, izolace pod novým záklopem podlahy, vývod plynu, elektřiny, vody a odpadu jsou připraveny.

K půdě je možnost přikoupit garáž, která je součástí domu.

Veškerá občanská vybavenost po ruce, metro Radlická 5min. pěšky od domu. Velmi klidná ulice, kam zajíždí pouze residenti.

Neváhejte mne kontaktovat pro bližší detaily nebo prohlídku. Martin Kružlík

Parametry bytu

Cena
6 900 000 Kč Spočítat hypotéku
Poznámka k ceně
včetně provize RK
Aktualizováno
15. 12. 2025
Adresa
Na Farkáně III, Praha 5 - Radlice
ID
00104
Stavba
Cihlová
Stav objektu
Po rekonstrukci
Vybaveno
Ne
Lokalita objektu
Klidná část obce
Vlastnictví
Osobní
Užitná plocha
60 m2
Třída energetické náročnosti
G - Mimořádně nehospodárná

Kontaktovat makléře

Realitní kancelář

AIO Group, s.r.o.

Ostrovského 3167/36, Praha 5

Chystáte se prodat nemovitost?
Pomůžeme Vám!

Máte zájem o tento byt?

Tímto, v souladu s nařízením Evropského parlamentu a Rady (EU) 2016/679, v platném znění, prohlašuji, že mi je alespoň 16 let a uděluji tak svůj souhlas se zpracováním zadaných údajů (jméno, telefon, e-mail, ip adresa) společnosti B3 Technology, s.r.o., IČ: 07330600, se sídlem Novostavby 126/23, 435 11 Lom (správce dat), za účelem předání dotazu z tohoto formuláře Vámi vybranému inzerentovi a zpětného kontaktování mé osoby. Osobní údaje bude správce zpracovávat manuálně i automaticky přímo prostřednictvím svých zaměstnanců. Informace předané tímto formulářem budou uloženy v databázi správce maximálně po dobu 10 let. Odvolání souhlasu s uložením a zpracováním poskytnutých dat lze e-mailem na info@videobydleni.cz. V případě podezření na neoprávněné použití Vámi poskytnutých údajů máte právo předat podnět k šetření Úřadu pro ochranu osobních údajů. Více informací
Chystáte se prodat nemovitost?
Pomůžeme Vám!

Inzerát si prohlédlo 32 lidí

Prodejce

Martin Kružlík

Martin Kružlík

Hlídací pes

Chcete dostávat emailem podobné nabídky prodeje bytů 3+kk v Praze 5?

Podobné nemovitosti


Nevyhovuje Vám typ bytu? Podívejte se na jiné kategorie bytů.


Vybrané články z našeho blogu