Prodej pozemku pro bydlení, Poříčí nad Sázavou, Pyšelská, 1002 m2

Pyšelská, Poříčí nad Sázavou

2 505 000 Kč /za nemovitost HYPOTÉKA od 11 196 Kč /za měsíc
Prémioví partneři v Poříčí nad Sázavou

Informace k pozemku

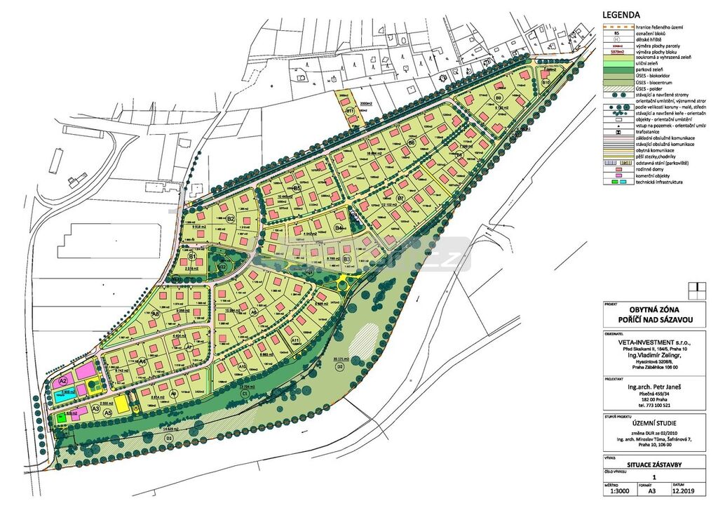
Prodej pozemku pro stavbu RD v Poříčí nad Sázavou. Máme pro vás exkluzivní příležitost – stavební pozemek v atraktivní a klidné lokalitě Poříčí nad Sázavou, která se právě mění v moderní čtvrť rodinných domů.
Pozemková parcela č. 193/56
•Výměra: 1.002 m²
•Cena: 2.505.000,- Kč
V ceně nejsou zahrnuty poplatky za připojení na inženýrské sítě.
V rámci rozvoje lokality je však plánována kompletní infrastruktura – elektřina, voda, plyn, kanalizace, komunikace i veřejná zeleň.
Celé území je dle územního plánu určeno k výstavbě rodinných domů – ideální volba pro ty, kteří hledají klidné a pohodové bydlení v zeleni, přitom s dobrou dostupností do Benešova či Prahy.

Parametry pozemku

Cena
2 505 000 Kč /za nemovitost Spočítat hypotéku
Aktualizováno
29. 10. 2025
Adresa
Pyšelská, Poříčí nad Sázavou
ID
987
Plocha pozemku
1002 m2

Kontaktovat makléře

Realitní kancelář

Logo Realitáři Plzeň SE

Realitáři Plzeň SE

Náměstí Republiky 28, Plzeň

Chystáte se prodat nemovitost?
Pomůžeme Vám!

Máte zájem o tento pozemek?

Tímto, v souladu s nařízením Evropského parlamentu a Rady (EU) 2016/679, v platném znění, prohlašuji, že mi je alespoň 16 let a uděluji tak svůj souhlas se zpracováním zadaných údajů (jméno, telefon, e-mail, ip adresa) společnosti B3 Technology, s.r.o., IČ: 07330600, se sídlem Novostavby 126/23, 435 11 Lom (správce dat), za účelem předání dotazu z tohoto formuláře Vámi vybranému inzerentovi a zpětného kontaktování mé osoby. Osobní údaje bude správce zpracovávat manuálně i automaticky přímo prostřednictvím svých zaměstnanců. Informace předané tímto formulářem budou uloženy v databázi správce maximálně po dobu 10 let. Odvolání souhlasu s uložením a zpracováním poskytnutých dat lze e-mailem na info@videobydleni.cz. V případě podezření na neoprávněné použití Vámi poskytnutých údajů máte právo předat podnět k šetření Úřadu pro ochranu osobních údajů. Více informací
Chystáte se prodat nemovitost?
Pomůžeme Vám!

Inzerát si prohlédlo 2 lidí

Prodejce

Martina Dlouhá

Martina Dlouhá

Hlídací pes

Chcete dostávat emailem podobné nabídky prodeje pozemků pro bydlení v Poříčí nad Sázavou?

Podobné nemovitosti


Nevyhovuje Vám typ pozemku? Podívejte se na jiné kategorie pozemků.


Vybrané články z našeho blogu