Prodej bytu 2+kk, Praha - Vinohrady, Libická, 57 m2 (ID: 4092851)

Libická, Praha, Vinohrady

9 900 000 Kč /za nemovitost HYPOTÉKA od 44 247 Kč /za měsíc

(Včetně provize RK. Hypotéka možná.)

Prémioví partneři v Praze 3

Stěhovací služby

Výkup a prodej starého nábytku

Informace k bytu

Nabízíme k prodeji luxusní byt ve zrekonstruovaném cihlovém domě na Vinohradech, ul. Libická. 400 m od náměstí Jiřího z Poděbrad.

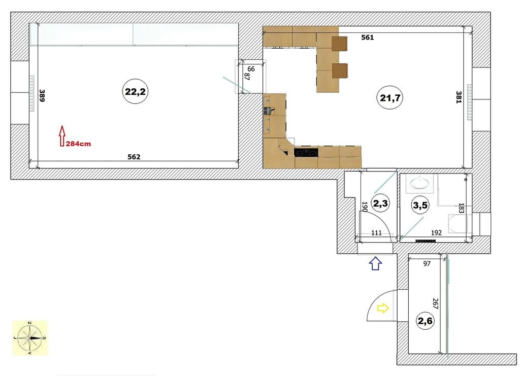
Dispozice 2+kk, 50,5 m2 + 6 m2 skllep + společný balkon 2,6 m2 hned vedle bytu, 4. patro z 5 s výtahem. Výborná dostupnost MHD (5 min. chůze na |M| Flora nebo Jiřího z Poděbrad).

Betonový dvorek ve vnitrobloku.

Orientace oken na jih a sever.

Vysoké stropy (284 cm) se sádrokartonovými podhledy s bodovým osvětlením a s dálkově ovládaným barevným led podsvícením.

Kuchyňská linka se všemi spotřebiči. Na podlahách vinyl a dlažba. Koupelna s oknem, sprchovým koutem a s WC. Byt je kompletně zařízen nábytkem včetně obrovské vestavěné skříně v ložnici.

Vytápění novým plynovým kotlem JUNKERS. Plastová okna i stoupačky.

Velký zděný (6 m2) sklep. Kabelová televize a internet optickým kabelem (2 Gb/s). Parkování před domem – modrá zóna Praha 3. Veškerá občanská vybavenost v okruhu 300 m.

Velmi nízké zálohy na služby ve výši 2.068,- Kč včetně fondu oprav ve výši 1.010,-Kč.

Skvělá investice! Byt je v současné době obsazen řádně platícím nájemcem za 26.000,-Kč + poplatky. Nájemní smlouva končí za 3 měsíce. Pokud bude mít nový majitel zájem o prodloužení, nájemce toto uvítá.

Více fotografií (33) na stránkách blanikreality pod ID: 25293.

Parametry bytu

Cena
9 900 000 Kč /za nemovitost Spočítat hypotéku
Poznámka k ceně
Včetně provize RK. Hypotéka možná.
Aktualizováno
29. 10. 2025
Adresa
Libická, Praha, Vinohrady
ID
25293
Stavba
Cihlová
Stav objektu
Po rekonstrukci
Patro
5. z 6
Vybaveno
Ano
Lokalita objektu
Centrum obce
Vlastnictví
Osobní
Užitná plocha
57 m2
Podlahová plocha
57 m2
Třída energetické náročnosti
E - Nehospodárná
Elektřina
230V, 400V
Plyn
Individuální
Topení
Ústřední plynové
Telekomunikace
Telefon, Internet, Kabelová televize, Kabelové rozvody
Doprava
MHD
Voda
Vodovod
Topné těleso
Radiátory
Zdroj topení
Plynový kondenzační kotel
Zdroj teplé vody
Plynový kondenzační kotel
Balkon
Sklep
Výtah
Bezbarierový přístup

Kontaktovat makléře

Máte zájem o tento byt?

Tímto, v souladu s nařízením Evropského parlamentu a Rady (EU) 2016/679, v platném znění, prohlašuji, že mi je alespoň 16 let a uděluji tak svůj souhlas se zpracováním zadaných údajů (jméno, telefon, e-mail, ip adresa) společnosti B3 Technology, s.r.o., IČ: 07330600, se sídlem Novostavby 126/23, 435 11 Lom (správce dat), za účelem předání dotazu z tohoto formuláře Vámi vybranému inzerentovi a zpětného kontaktování mé osoby. Osobní údaje bude správce zpracovávat manuálně i automaticky přímo prostřednictvím svých zaměstnanců. Informace předané tímto formulářem budou uloženy v databázi správce maximálně po dobu 10 let. Odvolání souhlasu s uložením a zpracováním poskytnutých dat lze e-mailem na info@videobydleni.cz. V případě podezření na neoprávněné použití Vámi poskytnutých údajů máte právo předat podnět k šetření Úřadu pro ochranu osobních údajů. Více informací
Chystáte se prodat nemovitost?
Pomůžeme Vám!

Inzerát si prohlédlo 4 lidí

Prodejce

Mgr. Bohuslav Papírník

Mgr. Bohuslav Papírník

Hlídací pes

Chcete dostávat emailem podobné nabídky prodeje bytů 2+kk v Praze 3?

Podobné nemovitosti


Nevyhovuje Vám typ bytu? Podívejte se na jiné kategorie bytů.


Vybrané články z našeho blogu