Prodej bytu 4+kk, Praha - Michle, Sedlčanská, 115 m2 (ID: 4092983)

Sedlčanská, Praha, Michle

14 900 000 Kč /za nemovitost HYPOTÉKA od 66 594 Kč /za měsíc
Prémioví partneři v Praze

Stěhovací služby

Výkup a prodej starého nábytku

Informace k bytu

Evidenční číslo / ID zakázky: VS243

Byt, který nabízí příjemné ranní světlo díky východní orientaci lodžií a výhled, který si budete chtít užívat každý den.

Střešní terasa s výhledem na město je skutečnou perlou tohoto bytu – z této výšky v 11. nadzemním podlaží se otevírá vzácný panoramatický výhled na celou Prahu. Toto výjimečné místo vytváří jedinečnou atmosféru a výrazně zvyšuje atraktivitu pobytu.

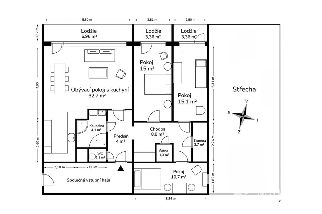
Prostorný a stylově zrekonstruovaný byt 4+kk s úchvatným výhledem na město. Tento nadstandardní byt v revitalizovaném domě přímo u stanice metra Kačerov (linka C) nabízí výbornou dostupnost do centra i na pražský okruh, tři lodžie, praktickou sklepní kóji a možnost parkování přímo pod domem.

Byt o celkové ploše 115,38 m2 (podlahová 101,7 m2 + lodžie 6,96 m2, 3,36 m2 a 3,36 m2, nezapočítávají se sklep 1 m2 a zádveří 4,30 m2) prošel kompletní a velmi vkusnou rekonstrukcí, která klade důraz na kvalitu i estetiku. Interiér se pyšní prostorným obývacím pokojem s kuchyňským koutem, odkud je vstup na prostornou první lodžii o výměře 6,96 m2. Dvě ze tří neprůchozích ložnic mají rovněž lodžii o výměře 3,36 m2 a orientaci na východ, takže je byt plný ranního slunce. Zbývající ložnice je vybavena francouzským oknem s přístupem na střešní terasu – ideální pro ty, kdo si chtějí užít soukromí a výhled na město. Díky francouzskému oknu je ložnice příjemně prosvětlená a vytváří útulnou atmosféru, zatímco výhled na okolní město dodává interiéru vzdušnost a zajímavou perspektivu. Elegantní koupelna se sprchovým koutem, toaletou a praktickými úložnými prostory s designovým LED podsvícením je skutečnou ozdobou tohoto bytu. V bytě se nachází i samostatné WC.

Přímo před domem se nachází prostorné parkoviště, což je další výhodou této nabídky. Součástí domu je zázemí se sklepy a revitalizované společné prostory, vše podpořeno kvalitní správou SVJ. Dům prošel rozsáhlou rekonstrukcí včetně výtahů, střechy, fasády, elektroinstalace i optických sítí.

Tato žádaná čtvrť nabízí kompletní občanskou vybavenost v bezprostřední blízkosti – restaurace, supermarkety, kavárny i sportovní centra. Nákupní centra Arkády Pankrác a DBK Budějovická jsou vzdálena jen pár minut metrem. Četné autobusové linky, vlaková stanice i výjezd na dálnici D1 zajišťují bezproblémové dopravní spojení do centra i mimo Prahu. Kunratický les leží jen několik minut autem pro příjemné procházky v přírodě.

Pokud toužíte po výjimečném bydlení na výšinách, a přitom v těsné blízkosti metra, je tento nově a velmi zdařile zrekonstruovaný byt připraven k prohlídce. Přijďte se sami přesvědčit o jeho kvalitách — rádi vám ukážeme každý detail osobně.

Energetická třída PENB C — úsporná.
Pro více informací a sjednání prohlídky kontaktujte prosím realitního makléře.

Parametry bytu

Cena
14 900 000 Kč /za nemovitost Spočítat hypotéku
Aktualizováno
29. 10. 2025
Adresa
Sedlčanská, Praha, Michle
ID
VS243-1
Stavba
Panelová
Stav objektu
Novostavba
Patro
11. z 11
Vybaveno
Ano
Vlastnictví
Osobní
Užitná plocha
115 m2
Třída energetické náročnosti
C - Úsporná
Ukazatel energetické náročnosti
67 kWh/m2 za rok
Sklep
Lodžie
Výtah

Kontaktovat makléře

Realitní kancelář

Logo Makers Reality

Makers Reality

Vinohradská 2133/138, Praha

Chystáte se prodat nemovitost?
Pomůžeme Vám!

Máte zájem o tento byt?

Tímto, v souladu s nařízením Evropského parlamentu a Rady (EU) 2016/679, v platném znění, prohlašuji, že mi je alespoň 16 let a uděluji tak svůj souhlas se zpracováním zadaných údajů (jméno, telefon, e-mail, ip adresa) společnosti B3 Technology, s.r.o., IČ: 07330600, se sídlem Novostavby 126/23, 435 11 Lom (správce dat), za účelem předání dotazu z tohoto formuláře Vámi vybranému inzerentovi a zpětného kontaktování mé osoby. Osobní údaje bude správce zpracovávat manuálně i automaticky přímo prostřednictvím svých zaměstnanců. Informace předané tímto formulářem budou uloženy v databázi správce maximálně po dobu 10 let. Odvolání souhlasu s uložením a zpracováním poskytnutých dat lze e-mailem na info@videobydleni.cz. V případě podezření na neoprávněné použití Vámi poskytnutých údajů máte právo předat podnět k šetření Úřadu pro ochranu osobních údajů. Více informací
Chystáte se prodat nemovitost?
Pomůžeme Vám!

Inzerát si prohlédlo 31 lidí

Prodejce

Makers Reality

Makers Reality

Hlídací pes

Chcete dostávat emailem podobné nabídky prodeje bytů 4+kk v Praze?

Podobné nemovitosti


Nevyhovuje Vám typ bytu? Podívejte se na jiné kategorie bytů.


Vybrané články z našeho blogu