Prodej bytu 1+kk, Židlochovice, Komenského, 30 m2

Komenského, Židlochovice

3 408 600 Kč HYPOTÉKA od 15 234 Kč /za měsíc

(včetně provize RK)

Prémioví partneři v Židlochovicích

Informace k bytu

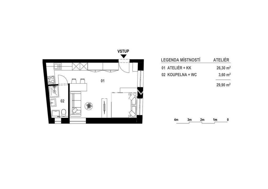
Prodej ateliéru 1+kk, 30 m², Židlochovice

Nabízíme k prodeji novou jednotku (ateliér) ve 2. nadzemním podlaží moderního bytového domu s celkem 8 jednotkami. Dům má 3 podlaží a nachází se v klidné lokalitě s výbornou dostupností do centra. Dispozice je 1+kk, užitná plocha 30 m².

Ateliér bude dokončen v kvalitním standardu – ve spolupráci s investorem si můžete vybrat typ, dekor podlah, dveří i obkladů podle vlastního vkusu.

Standard zahrnuje:

- skládané vinylové podlahy od společnosti Supellex

- interiérové dveře a vstupní bezpečnostní dveře z DKP Market

- koupelnu s obklady a sanitou od studia Ptáček

Na bytě jsou již hotové přípravy k předokením žaluziím.

Nemovitost je nabízena do osobního vlastnictví. K jednotce je možné přikoupit výhradní parkovací stání, které je umístěno v dvorním uzavřeném traktu.

Projekt je vhodný jak pro vlastní bydlení, tak na investici. K financování nemovitosti lze využít našeho kolegu ze společnosti Partners.

Předpokládaný termín stěhování je 2. čtvrtletí 2026.

V případě zájmu o prohlídku nebo konzultaci mne prosím kontaktujte na uvedeném telefoním čísle nebo e-mailu.

-------------------------------

Průkaz energetické náročnosti budovy nebyl doložen, proto je objekt automaticky zařazen do energetické třídy G – mimořádně nehospodárná.

Parametry bytu

Cena
3 408 600 Kč Spočítat hypotéku
Poznámka k ceně
včetně provize RK
Aktualizováno
15. 12. 2025
Adresa
Komenského, Židlochovice
ID
0347
Stavba
Cihlová
Stav objektu
Dobrý
Vybaveno
Ne
Vlastnictví
Osobní
Užitná plocha
30 m2
Třída energetické náročnosti
G - Mimořádně nehospodárná

Kontaktovat makléře

Realitní kancelář

bytnej.cz

Wolkerova 1210/27, Olomouc

Chystáte se prodat nemovitost?
Pomůžeme Vám!

Máte zájem o tento byt?

Tímto, v souladu s nařízením Evropského parlamentu a Rady (EU) 2016/679, v platném znění, prohlašuji, že mi je alespoň 16 let a uděluji tak svůj souhlas se zpracováním zadaných údajů (jméno, telefon, e-mail, ip adresa) společnosti B3 Technology, s.r.o., IČ: 07330600, se sídlem Novostavby 126/23, 435 11 Lom (správce dat), za účelem předání dotazu z tohoto formuláře Vámi vybranému inzerentovi a zpětného kontaktování mé osoby. Osobní údaje bude správce zpracovávat manuálně i automaticky přímo prostřednictvím svých zaměstnanců. Informace předané tímto formulářem budou uloženy v databázi správce maximálně po dobu 10 let. Odvolání souhlasu s uložením a zpracováním poskytnutých dat lze e-mailem na info@videobydleni.cz. V případě podezření na neoprávněné použití Vámi poskytnutých údajů máte právo předat podnět k šetření Úřadu pro ochranu osobních údajů. Více informací
Chystáte se prodat nemovitost?
Pomůžeme Vám!

Inzerát si prohlédlo 11 lidí

Prodejce

Ing. Filip Hylák

Ing. Filip Hylák

Hlídací pes

Chcete dostávat emailem podobné nabídky prodeje bytů 1+kk v Židlochovicích?

Podobné nemovitosti


Nevyhovuje Vám typ bytu? Podívejte se na jiné kategorie bytů.


Vybrané články z našeho blogu