Pronájem bytu 3+1, Rosice, Komenského náměstí, 82 m2

Komenského náměstí, Rosice

22 000 Kč /za měsíc Získejte výhodnou HYPOTÉKU

(+ 5000,- inkaso)

Prémioví partneři v Rosicích

Informace k bytu

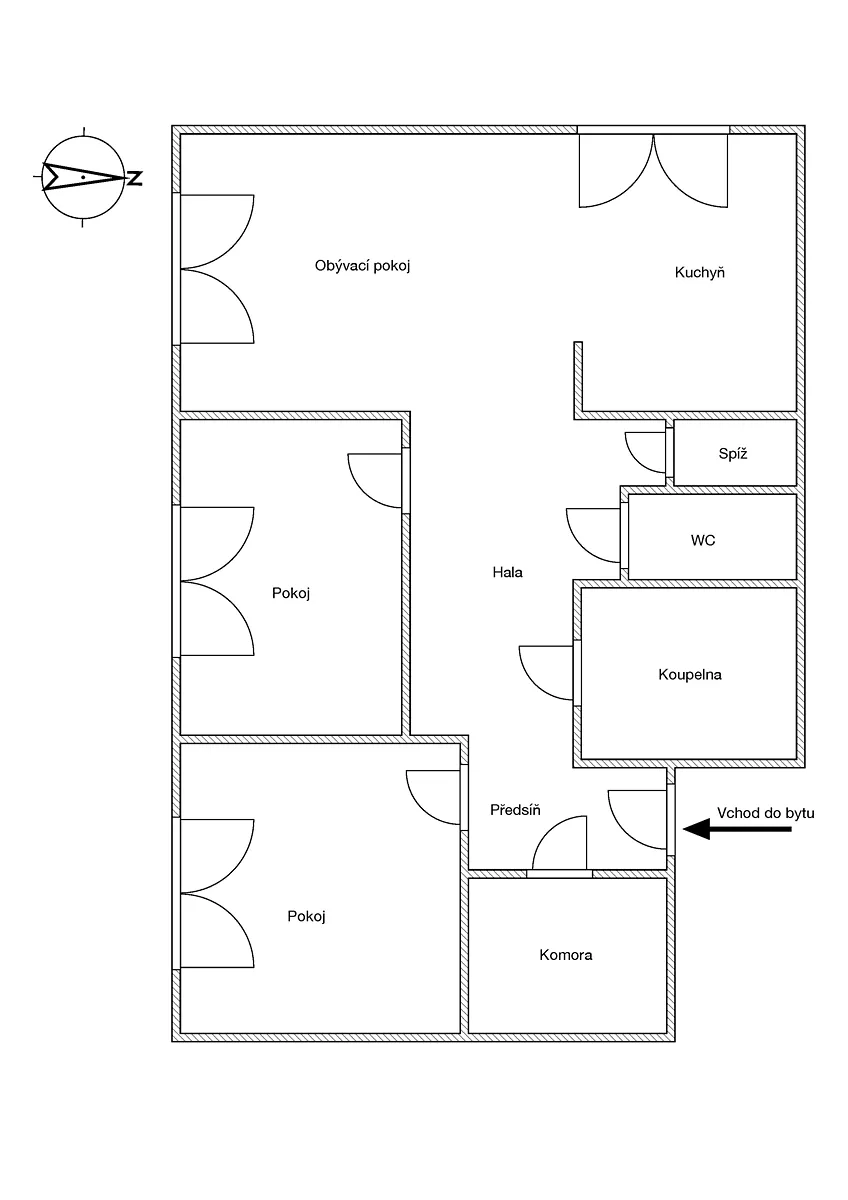
Nadstandardně prostorný bezbariérový byt 3+1 (82,25 m²) k pronájmu v srdci Rosic – klid, světlo a pohodlí na dosah

Hledáte byt k pronájmu, kde se budete cítit opravdu doma? Nabízíme vám výjimečně světlý a vzdušný byt o dispozici 3+1 a výměře 82,25 m², umístěný v přízemí pečlivě udržovaného bytového domu jen pár kroků od rosického náměstí. Tento byt je ideální volbou pro rodinu, seniory i osoby se sníženou pohyblivostí – díky zcela bezbariérovému přístupu nejen do domu, ale i v celém bytě samotném.

Dispozičně je byt řešen s důrazem na soukromí a funkčnost. Po vstupu do předsíně vás přivítá příjemný pocit prostoru. Odtud vedou samostatné vstupy do prostorného dětského pokoje a šikovné komory. Následuje útulná centrální hala, která je rozcestníkem do všech klíčových místností – ložnice, koupelny, samostatného WC, spižírny a velkorysého obývacího pokoje. Z něj pak plynule vstoupíte do oddělené kuchyně, která nabízí dostatek místa pro vaření i rodinné stolování.

Všechny pokoje jsou neprůchozí, vzdušné a krásně prosvětlené díky velkým oknům, která propouští dostatek denního světla po celý den. Celý byt působí klidně a harmonicky – ideální prostředí pro pohodové bydlení.

Byt se pronajímá částečně zařízený – v obývacím pokoji zůstává sedačka a kuchyňská linka se spotřebiči.

K bytu náleží i sklep, který nabízí praktický úložný prostor. Bytový dům má dva vstupy, z nichž jeden je plně bezbariérový, což ještě více zvyšuje komfort přístupu.

Lokalita je skutečně výjimečná – klidná ulice v těsné blízkosti rosického náměstí, s výbornou dostupností veškeré občanské vybavenosti: obchody, školky, školy, lékaři, pošta, úřady i kulturní vyžití. Vše máte doslova pár kroků od domovních dveří.

Tento byt nabízí dokonalé spojení praktičnosti, pohodlí a skvělé polohy. Pokud hledáte pronájem, kde se budete cítit opravdu dobře, je to právě tady. Doporučujeme osobní prohlídku – atmosféra bytu vás příjemně překvapí.

Parametry bytu

Cena
22 000 Kč /za měsíc
Poznámka k ceně
+ 5000,- inkaso
Aktualizováno
30. 10. 2025
Adresa
Komenského náměstí, Rosice
ID
25102901
Stavba
Cihlová
Stav objektu
Velmi dobrý
Patro
1.
Vlastnictví
Osobní
Užitná plocha
82 m2
Sklep

Kontaktovat makléře

Realitní kancelář

VIP reality

Červený kopec 824/24, Brno, Štýřice

Chystáte se prodat nemovitost?
Pomůžeme Vám!

Máte zájem o tento byt?

Tímto, v souladu s nařízením Evropského parlamentu a Rady (EU) 2016/679, v platném znění, prohlašuji, že mi je alespoň 16 let a uděluji tak svůj souhlas se zpracováním zadaných údajů (jméno, telefon, e-mail, ip adresa) společnosti B3 Technology, s.r.o., IČ: 07330600, se sídlem Novostavby 126/23, 435 11 Lom (správce dat), za účelem předání dotazu z tohoto formuláře Vámi vybranému inzerentovi a zpětného kontaktování mé osoby. Osobní údaje bude správce zpracovávat manuálně i automaticky přímo prostřednictvím svých zaměstnanců. Informace předané tímto formulářem budou uloženy v databázi správce maximálně po dobu 10 let. Odvolání souhlasu s uložením a zpracováním poskytnutých dat lze e-mailem na info@videobydleni.cz. V případě podezření na neoprávněné použití Vámi poskytnutých údajů máte právo předat podnět k šetření Úřadu pro ochranu osobních údajů. Více informací
Chystáte se prodat nemovitost?
Pomůžeme Vám!

Inzerát si prohlédlo 2 lidí

Prodejce

Ilona Peňázová

Ilona Peňázová

Hlídací pes

Chcete dostávat emailem podobné nabídky pronájmu bytů 3+1 v Rosicích (okr. Brno-venkov)?

Podobné nemovitosti


Nevyhovuje Vám typ bytu? Podívejte se na jiné kategorie bytů.


Vybrané články z našeho blogu