Prodej rodinného domu, Bezděkov, 156 m2 (ID: 4093723)

Bezděkov

2 490 000 Kč /za nemovitost HYPOTÉKA od 11 129 Kč /za měsíc

(včetně DPH, včetně poplatků, včetně provize, včetně právního servisu)

Prémioví partneři v Bezděkově

Informace k domu

Nabízíme k prodeji rekreační nemovitost s možností trvalého bydlení v CHKO Železné hory v malebné obci Bezděkov, okres Havlíčkův Brod, kraj Vysočina.

Tento půvabný dům se nachází v klidné, okrajové části obce na pozemku o výměře 402 m². K nemovitosti náleží sousední zahrada o velikosti 147 m² se vzrostlými ovocnými stromy, které každoročně přinášejí bohatou úrodu.

Dům je postaven z tradičních materiálů – kombinace cihel, kamene a tvárnic.
V roce 2009 započala rekonstrukce, jejíž součástí byla kompletní výměna střešní krytiny za plechovou včetně nových krovů a instalace stropních infrapanelů ve všech obytných místnostech.
V roce 2020 se pokračovalo v rekonstrukci v rámci které se dělaly nové elektrické rozvody v celém domě, instaloval centrální elektrokotel, bojler na ohřev vody a v každé místnosti byly namontovány tepelné radiátory.

Dostatečné teplo vám zajistí jak moderní stropní infrapanely, které poskytují příjemné sálavé teplo, tak alternativně můžete využít radiátory nebo krbová kamna – ideální pro romantické večery u ohně.

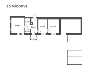
Dispozice:
Přes prosklenou verandu vstoupíte do prostorné chodby, odkud můžete pokračovat do obytné kuchyně, nebo do zděného sklípku s krásným klenutým cihlovým stropem.
Kuchyň je vybavena linkou s plynovou troubou a plotýnkou, dřezem, lednicí a kamny na tuhá paliva s možností vaření. Z kuchyně se vstupuje do ložnice s manželskou postelí.
Z chodby je přístupná také samostatná toaleta a koupelna se sprchovým koutem a umyvadlem.

Nejhezčí místností je slunný obývací pokoj s krbovými kamny a výhledem do zahrady.

Velkým bonusem této nemovitosti je prostorná půda, kterou lze dle vlastních představ přestavět na obytný prostor a výrazně tak rozšířit užitnou plochu domu.
Pro vaši lepší představivost jsme s pomocí architekta připravili vizualizace možného budoucího řešení.

Lokalita:
Tato nemovitost je ideální pro ty, kdo hledají únik z města, chalupu s duší nebo klidné místo k trvalému bydlení v blízkosti přírody.
V okolí najdete mnoho turistických tras, lesů, přírodní rezervaci, koupaliště, tenisové kurty, stezku v údolí řeky Doubravky, vyhlídku Čertův stolek a mnoho dalších zajímavostí.

Přímá autobusová zastávka se nachází jen 20 metrů od domu, odkud jezdí pravidelné spoje do Ždírce nad Doubravou a Chotěboře.
Veškerá občanská vybavenost - zdravotní zařízení, mateřská školka, základní škola, pošta, obchody, restaurace,… je dostupná v Libici nad Doubravou (2 km), Chotěboři (6 km) nebo v Havlíčkově Brodě (18 km).

V případě, že vás tato nabídka zaujala, neváhejte mne kdykoli kontaktovat, ráda se s vámi setkám na nezávazné prohlídce.

Parametry domu

Cena
2 490 000 Kč /za nemovitost Spočítat hypotéku
Poznámka k ceně
včetně DPH, včetně poplatků, včetně provize, včetně právního servisu
Aktualizováno
30. 10. 2025
Adresa
Bezděkov
ID
00601
Stavba
Smíšená
Stav objektu
Dobrý
Vybaveno
Částečně
Typ objektu
Přízemní
Druh objektu
Samostatný
Lokalita objektu
Klidná část obce
Užitná plocha
156 m2
Plocha pozemku
549 m2
Třída energetické náročnosti
G - Mimořádně nehospodárná
Elektřina
230V, 400V
Odpad
Veřejná kanalizace
Topení
Lokální tuhá paliva, Lokální elektrické, Ústřední elektrické
Komunikace
Asfaltová
Doprava
Silnice, Autobus
Voda
Vodovod
Garáž
Sklep
Výtah
Parkování

Kontaktovat makléře

Máte zájem o tento dům?

Tímto, v souladu s nařízením Evropského parlamentu a Rady (EU) 2016/679, v platném znění, prohlašuji, že mi je alespoň 16 let a uděluji tak svůj souhlas se zpracováním zadaných údajů (jméno, telefon, e-mail, ip adresa) společnosti B3 Technology, s.r.o., IČ: 07330600, se sídlem Novostavby 126/23, 435 11 Lom (správce dat), za účelem předání dotazu z tohoto formuláře Vámi vybranému inzerentovi a zpětného kontaktování mé osoby. Osobní údaje bude správce zpracovávat manuálně i automaticky přímo prostřednictvím svých zaměstnanců. Informace předané tímto formulářem budou uloženy v databázi správce maximálně po dobu 10 let. Odvolání souhlasu s uložením a zpracováním poskytnutých dat lze e-mailem na info@videobydleni.cz. V případě podezření na neoprávněné použití Vámi poskytnutých údajů máte právo předat podnět k šetření Úřadu pro ochranu osobních údajů. Více informací
Chystáte se prodat nemovitost?
Pomůžeme Vám!

Inzerát si prohlédlo 1 lidí

Prodejce

Hana Zavadilová, Dis.

Hana Zavadilová, Dis.

Hlídací pes

Chcete dostávat emailem podobné nabídky prodeje rodinných domů v Bezděkově (okr. Havlíčkův Brod)?

Podobné nemovitosti


Nevyhovuje Vám typ domu? Podívejte se na jiné kategorie domů.


Vybrané články z našeho blogu