Hradec Králové
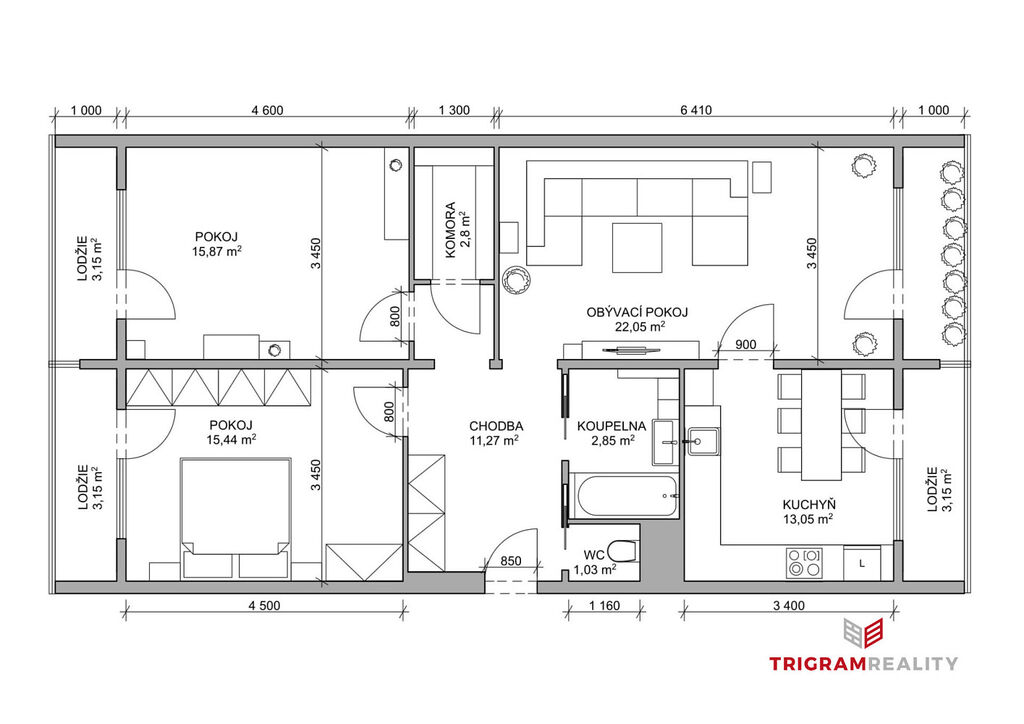
Zprostředkujeme prodej moderně zrekonstruovaného bytu 3+1 o velikosti 84,36 m² se čtyřmi lodžiemi. Byt je umístěn v 9. patře částečně zrevitalizovaného panelového domu na třídě Edvarda Beneše, v klidné části Moravského Předměstí. Orientace do dvou světových stran zajišťuje velmi dobré osvětlení a snadné větrání. Z dětského pokoje a ložnice se otevírá výhled do parku.
Rekonstrukce a vybavení bytu
Byt prošel v roce 2020 kompletní a rozsáhlou rekonstrukcí s nadstandardními prvky. Jádro bylo vyzděno z pórobetonu, původní kovové zárubně byly vyřezány a průchody mezi místnostmi rozšířeny. Realizovány byly kompletně nové rozvody elektřiny, vody i odpadů, celoplošné vystěrkování podlah do jedné roviny s následnou kombinací vinylové podlahy a koberce. V kuchyni a chodbě jsou instalovány SDK podhledy s vestavěným LED osvětlením a světelnými pásky. Interiér doplňují tři bezfalcové dveře se skrytými panty, dvě posuvné dveře do pouzdra a bezpečnostní vstupní dveře.
Vybavení v ceně
Veškeré současné vybavení bytu je zahrnuto v ceně: kompletní kuchyňská linka na míru se spotřebiči a lednicí, obývací pokoj vybavený nábytkem včetně nástěnné LED TV LG 75" a rozkládací sedací soupravy do U, ložnice s americkou postelí typu boxspring, žáruvzdorným trezorem a elektrickou předokenní roletou.
Dům a společenství
Dům je průběžně modernizován a je bez zadlužení. V roce 2025 byla na střeše instalována fotovoltaická elektrárna s bateriovým úložištěm (v letních měsících zajišťuje soběstačnost až 95 % spotřeby elektřiny), zároveň byly v roce 2025 vyměněny vodoměry a čidla topení s dálkovým odečtem a provedeny výměny stoupaček. Část domu byla zateplena v roce 2024 (štíty a krajní sekce). Dále dům disponuje kamerovým systémem ve společných prostorách a vysokorychlostním optickým internetem. 
K bytu náleží sklepní kóje v suterénu a sdílená komora na patře. V domě je také kolárna a vstup je řešen čipovým systémem. Veřejné parkování u domu nebo na pronajatých místech. 
Bytový dům má kladné hospodaření a vytváří stabilní rezervy. O konkrétních číslech vás rád informuji osobně. 
Měsíční poplatky činí přibližně 5 500 Kč. Vytápění a ohřev vody je dálkové. 
Byt představuje atraktivní volbu jak pro komfortní rodinné bydlení, tak jako investiční příležitost v jedné z nejžádanějších částí Hradce Králové. V těsné blízkosti najdete supermarkety (Billa, Albert), OC Futurum, dětská hřiště, školky, školy, polikliniku, lékárny a zastávky MHD. Vše na dosah několika minut chůze. 
Doporučuji osobní prohlídku, při které naplno oceníte kvalitu provedení i příjemnou atmosféru bytu.
Milady Horákové 1738/7, Hradec Králové
Máte zájem o tento byt?
Inzerát si prohlédlo 3 lidí
 
                                Bc. Jiří Hruška
Chcete dostávat emailem podobné nabídky prodeje bytů 3+1 v Hradci Králové?