Bořivojova, Praha, Žižkov
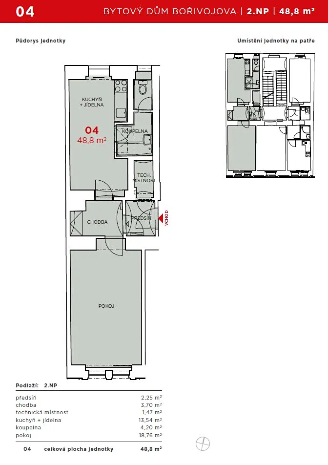
Nabízíme pronájem bytu 2+kk o výměře 48,8 m2 ve 3.NP po rekonstrukci. Byt je částečně vybaven, součástí je kuchyňská linka se spotřebiči, lednice s mrazákem. Nájemci mohou využít přístup na společný dvorek ve vnitrobloku. 
Topení je elektrické, byt má svůj elektrický kotel a bojler na ohřev vody. 
Byt je k nastěhování IHNED.
Provize činí 9 500 Kč, vratná kauce je ve výši 30 000 Kč.
Elektřina není součástí poplatků a převádí se na nájemce.
Poplatky bez elektřiny: 1 500 Kč.
Dům je situován v širším centru města. V okolí domu je veškerá občanská vybavenost. V blízkosti bytu je MHD (tram, BUS a metro), tramvajová zastávka Lipanská je vzdálena 150 m, metro Jiřího z Poděbrad na Lince A je pak vzdáleno cca 10 min pěšky. V blízkém okolí jsou obchody s potravinami, restaurace i oblíbené kavárny. 5 minut autem je dostupné obchodní centrum Atrium Flora. V okolí domu je veškerá občanská vybavenost. Školy, školky dětská hřiště i oblíbená pražská divadla – Divadlo na Vinohradech a Žižkovské divadlo. V docházkové vzdálenosti se nachází oblíbené pražské parky, jako Riegerovy a Mahlerovy sady, Parukářka nebo vrh Vítkov.
Walterovo náměstí 329/3, Praha
Máte zájem o tento byt?
Inzerát si prohlédlo 1 lidí
 
                                CREDITAS Real Estate
Chcete dostávat emailem podobné nabídky pronájmu bytů 2+kk v Praze 3?