Vrané nad Vltavou
(včetně DPH, včetně poplatků, včetně provize, včetně právního servisu)
Prodej rodinného domu ve Vraném nad Vltavou
Exkluzivně nabízíme prostorný rodinný dům o užitné ploše 241 m2  v klidné části Vraného nad Vltavou, který je připraven k dokončení dle představ nového majitele. Dům se nachází na pozemku o velikosti 905 m2, zastavěná plocha činí 111 m2. Díky své dispozici a možnostem úprav nabízí ideální řešení pro rodinné bydlení nebo dvougenerační uspořádání.
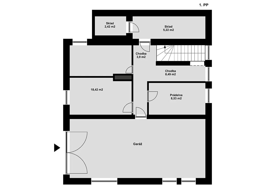
Dispozice domu:
	•	1. PP:  84 m2
	•	Prostorná garáž s možností rozdělení či jiného využití
	•	Dvě místnosti s okny
	•	Kotelna
	•	Dva skladovací prostory
	•	1. NP:  89,52 m2
	•	Vstupní hala
	•	Chodba vedoucí do:
	•	Koupelny se samostatným WC
	•	Kuchyně
	•	Ložnice
	•	Obývacího pokoje, ze kterého je vstup do dalšího pokoje s vlastní terasou
	•	2. NP:  67,46 m2
	•	Velký půdní prostor s lodžií (připravena elektřina, voda a odpady) – možnost úpravy na obytné místnosti.
Vstupy do jednotlivých podlaží jsou propojené tak, že lze dům snadno využít jako dvougenerační nebo rozdělit na dvě samostatné bytové jednotky.
Technické parametry a stav domu:
	•	Dům je zateplen, v dobrém technickém stavu, bez viditelných vad či prasklin.
	•	Vytápění: kotel na tuhá paliva.
	•	Voda: vlastní studna na pozemku, přípojka obecního vodovodu je na hranici pozemku.
Lokalita:
Vrané nad Vltavou je vyhledávanou lokalitou s kompletní občanskou vybaveností: škola, školka, zdravotní středisko, lékárna, restaurace a pošta jsou přímo v obci.
Výborné spojení do Prahy:
	•	Vlak na Hlavní nádraží Praha 37 minut (jezdí každých cca 30 minut)
	•	Autem na Pražský okruh 10 minut
Pro milovníky přírody a sportu je zde oblíbená cyklostezka podél Vltavy, která vede až do centra Prahy (Náplavka na Rašínově nábřeží).
Neváhejte nás kontaktovat pro prohlídku této nemovitosti. Dům je prázdný, připraven k okamžitému převzetí!
Evropská 1973/56, Praha
Máte zájem o tento dům?
Inzerát si prohlédlo 1 lidí
 
                                Jakub Honka
Chcete dostávat emailem podobné nabídky prodeje rodinných domů v Vraném nad Vltavou?