Pronájem skladu, Moravany, 533 m2 (ID: 4094159)

Moravany, Platěnice

30 000 Kč /za měsíc Získejte výhodnou HYPOTÉKU
Prémioví partneři v Moravanech

Informace k nemovitosti

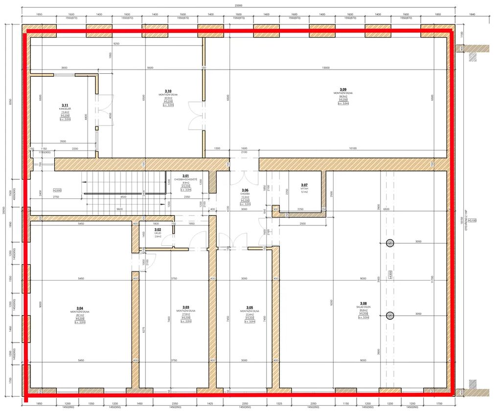
Nabízíme k pronájmu prostory pro výrobu nebo skladování včetně kanceláří v obci Moravany u Pardubic.

Prostory jsou rozloženy ve třech patrech zděné budovy, zásobování je možné nákladním výtahem.
V přízemí se nachází čistě kancelářské prostory, v 2. NP prostory, které lze využít jako kanceláře či sklady, v 3. NP pak prostory vhodné pro výrobu či skladování. Tyto jsou vybaveny dostatečným rezervovaným příkonem elektrické energie, rozvody vzduchu i nosností podlahových konstrukcí. Využít lze i portálový jeřáb.
K této části areálu bude zřízen samostatný přístup z komunikace, sama budova má dva vchody – k administrativní části a nákladový.
Celková plocha včetně příslušenství 533 m2, z toho
- čistá plocha kanceláří 94 m2
- výrobní a skladovacích prostor 317 m2

Vytápění kancelářských a skladovacích prostor je zajištěno soustavou ústředního topení s kotlem na zemní plyn, výroba pak lokálně.
Veškeré energie jsou samostatně měřeny. Možné úpravy prostor dle potřeb nájemce.

Moravany nabízí výbornou dopravní dostupnost
- Pardubice cca 15 km
- nájezd na D35 - 5 km
- zastávka železničního koridoru Praha – Olomouc (Brno) přímo v obci

Cena 30.000 Kč/měsíc bez DPH a energií

Pro více informací nebo prohlídku nás neváhejte kontaktovat.

Parametry nemovitosti

Cena
30 000 Kč /za měsíc
Aktualizováno
2. 11. 2025
Adresa
Moravany, Platěnice
ID
329
Stavba
Cihlová
Stav objektu
Dobrý
Patro
1. z 3
Lokalita objektu
Okraj obce
Užitná plocha
533 m2
Odpad
Veřejná kanalizace
Komunikace
Asfaltová
Doprava
Vlak, Dálnice, Silnice, Autobus
Zdroj topení
WAW, Plynový kotel
Výtah
Parkování

Kontaktovat makléře

Máte zájem o tuto nemovistost?

Tímto, v souladu s nařízením Evropského parlamentu a Rady (EU) 2016/679, v platném znění, prohlašuji, že mi je alespoň 16 let a uděluji tak svůj souhlas se zpracováním zadaných údajů (jméno, telefon, e-mail, ip adresa) společnosti B3 Technology, s.r.o., IČ: 07330600, se sídlem Novostavby 126/23, 435 11 Lom (správce dat), za účelem předání dotazu z tohoto formuláře Vámi vybranému inzerentovi a zpětného kontaktování mé osoby. Osobní údaje bude správce zpracovávat manuálně i automaticky přímo prostřednictvím svých zaměstnanců. Informace předané tímto formulářem budou uloženy v databázi správce maximálně po dobu 10 let. Odvolání souhlasu s uložením a zpracováním poskytnutých dat lze e-mailem na info@videobydleni.cz. V případě podezření na neoprávněné použití Vámi poskytnutých údajů máte právo předat podnět k šetření Úřadu pro ochranu osobních údajů. Více informací
Chystáte se prodat nemovitost?
Pomůžeme Vám!

Inzerát si prohlédlo 0 lidí

Prodejce

Lukáš Horský

Lukáš Horský

Hlídací pes

Chcete dostávat emailem podobné nabídky pronájmu skladů v Moravanech (okr. Pardubice)?

Podobné nemovitosti


Nevyhovuje Vám typ nemovitosti? Podívejte se na jiné kategorie komerčních.


Vybrané články z našeho blogu